highlight_off
Riferimento annuncio 241274 info

Terreno agricolo Località Focolì, 89026 San Ferdinando (RC)

€ 44.707
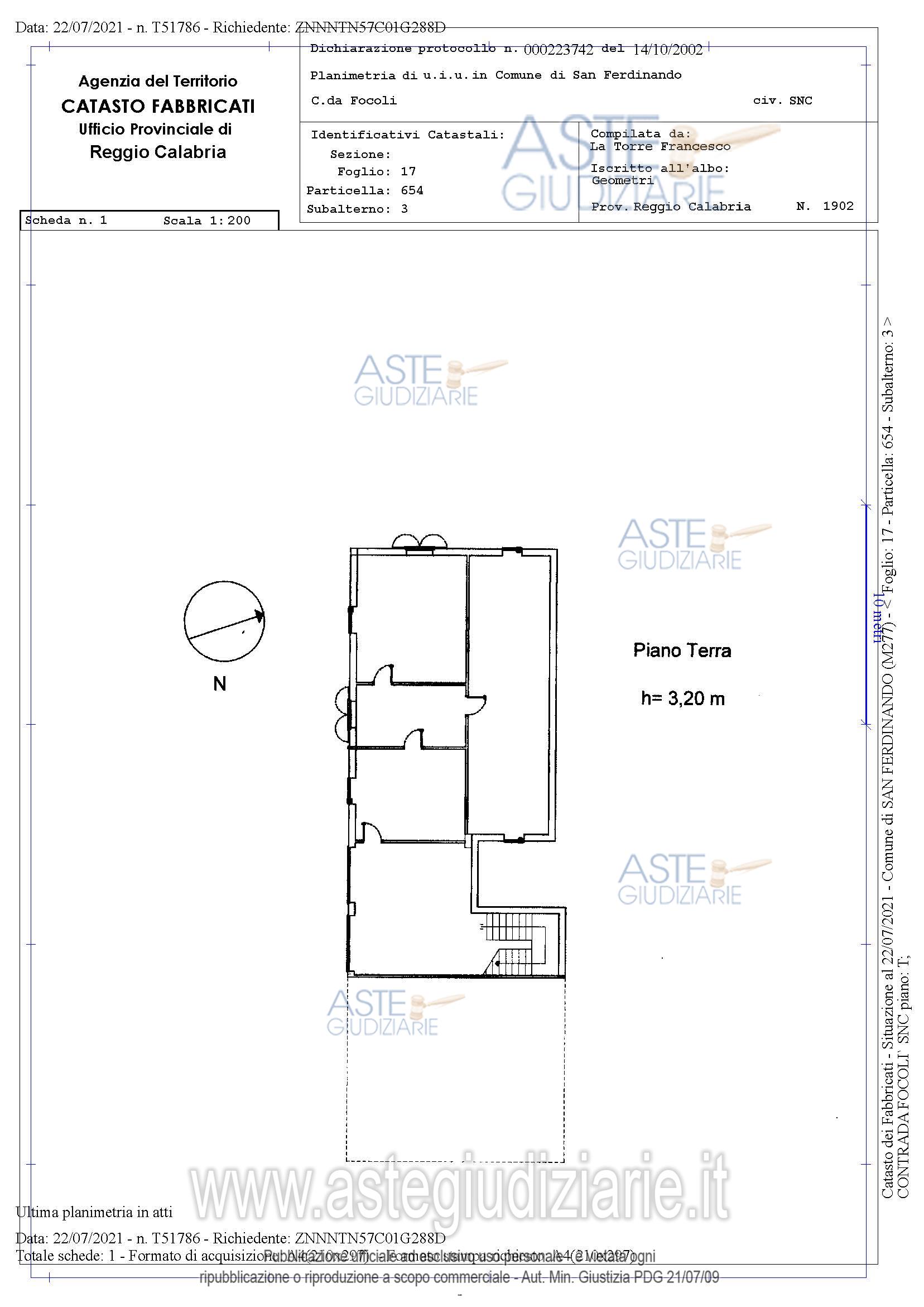
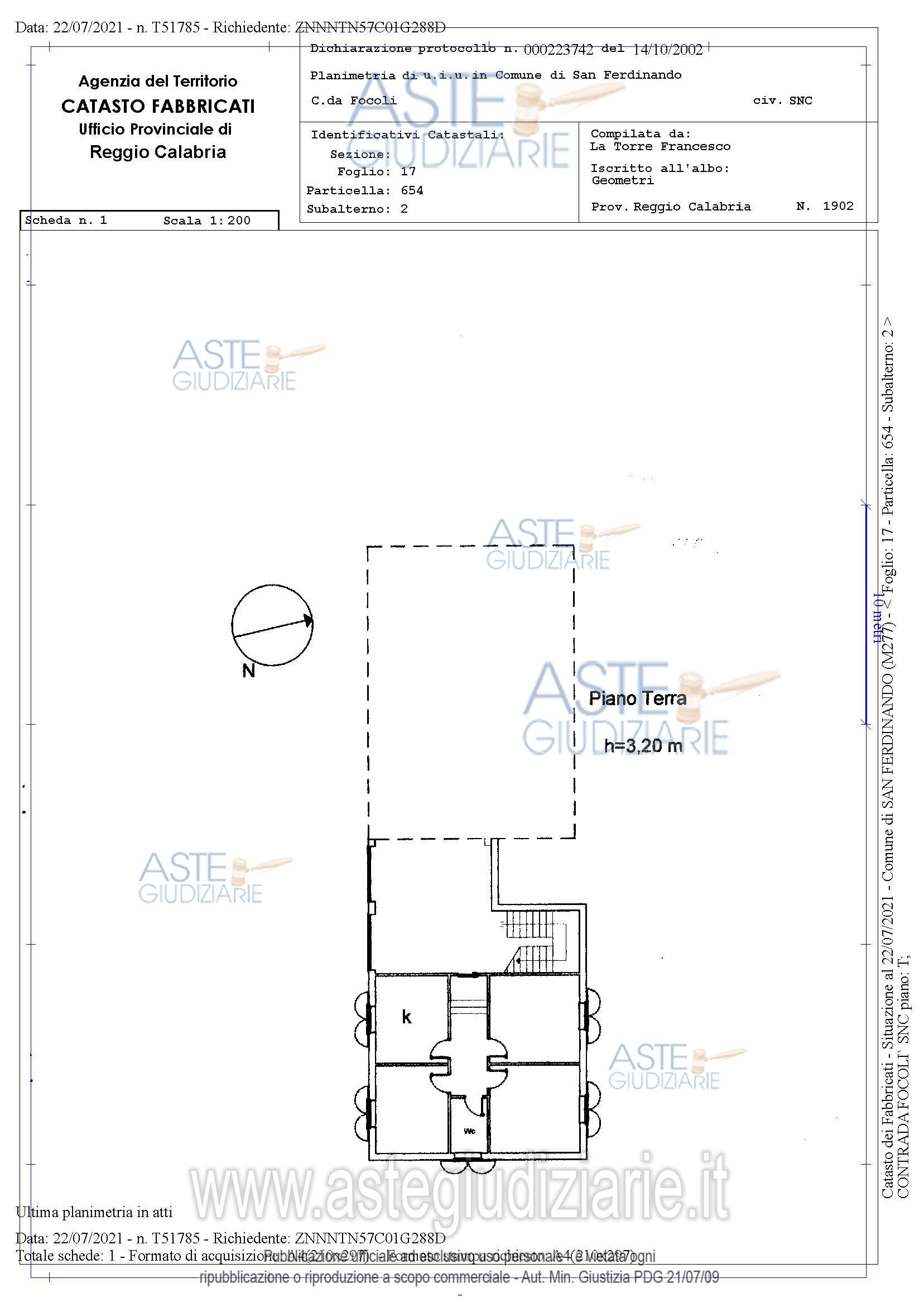
Vendita all'asta Senza incanto, con gara telematica asincrona - LOTTO 10: quota 1/2 della piena proprietà fondo rustico, con sovrastanti 2 fabbricati rurali, della sup. cat. di ha 2.89.44. Il terreno, coltivato ad agrumi, è in discrete condizioni con impianto di irrigazione. Il primo fabbricato, ad un piano f.t. della sup. lorda di circa 129 mq, è adibito a deposito. Il secondo fabbricato è formato da: un’abitazione al PT della sup. cat. di 84 mq, composta da 4 vani ed un wc; un deposito al PT della sup. cat. di 113 mq, costituito da 2 corpi di fabbrica; il lastrico solare al P1. Prezzo base € 44.707,20 (offerta minima € 33.530,40). Data inizio operazioni di vendita: 23/01/2026 ore 11:00. Giudice Dott. Marta Caineri. Professionista delegato alla vendita Dott. Roberto Franchetti - Email "robertofranchetti@hotmail.com"; Tel. 0966645074. Custode Giudiziario Dott. Roberto Franchetti - Email "robertofranchetti@hotmail.com"; Tel. 0966645074. Rif. Tribunale di Palmi - Esecuzione immobiliare post legge 80 n. 35/2000

Tipologia di vendita Giudiziaria
Modalità di vendita Asincrona telematica
Termine presentazione offerte 01/01/1900 ore 00:00
Data e ora inizio gara 23/01/2026 ore 11:00
Codice ID astegiudiziarie.it 4278031
€ 44.707

Ti interessa questa vendita?

north_east

Clicca qui per essere indirizzato alla scheda sul sito di provenienza

Bene di astegiudiziarie.it