highlight_off
Riferimento annuncio 310356 info

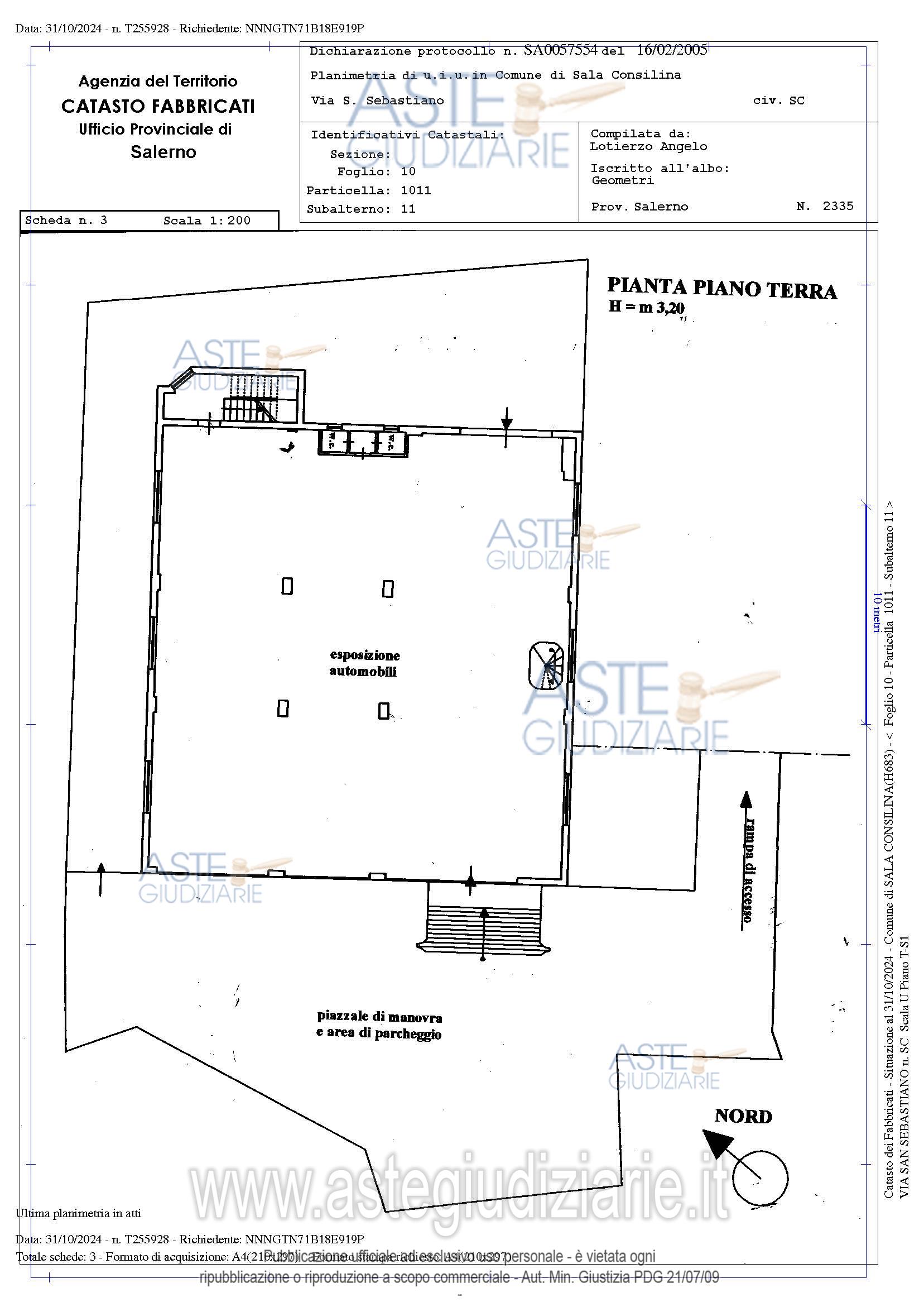
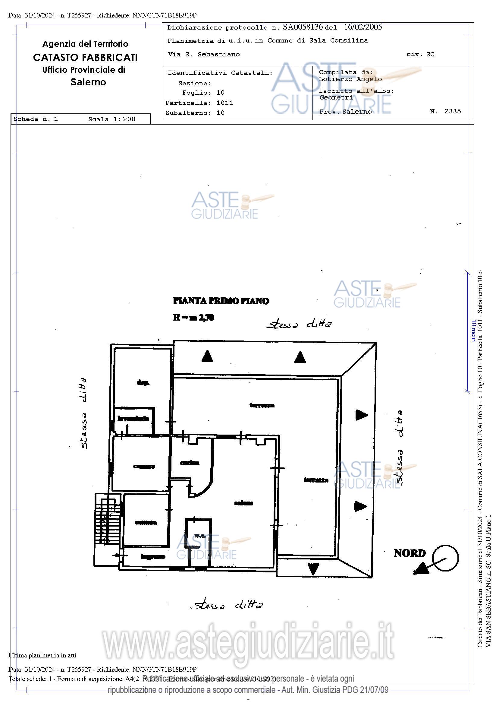
Terreno agricolo Via San Sebastiano, 84036 Sala Consilina (SA)

€ 1.860
Vendita all'asta Senza incanto, con gara telematica asincrona - LOTTO 3: Area urbana. Prezzo base € 1.860,00 (offerta minima € 1.395,00). Data inizio operazioni di vendita: 14/10/2025 ore 18:00. Professionista delegato alla vendita Avv. Igino Cappelli. Custode Giudiziario Avv. Igino Cappelli - Email "info@avvocatoiginocappelli.it"; Cell. 3403958748. Rif. Tribunale di Lagonegro - Esecuzione immobiliare post legge 80 n. 86/2013

Tipologia di vendita Giudiziaria
Modalità di vendita Asincrona telematica
Termine presentazione offerte 13/10/2025 ore 13:00
Data e ora inizio gara 14/10/2025 ore 18:00
Codice ID astegiudiziarie.it 4332058
€ 1.860

Ti interessa questa vendita?

north_east

Clicca qui per essere indirizzato alla scheda sul sito di provenienza

Bene di astegiudiziarie.it