highlight_off
Riferimento annuncio 243239 info

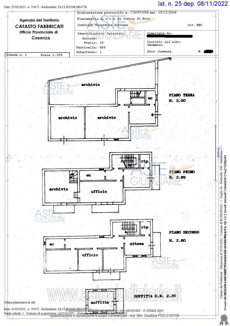
Terreno agricolo Contrada Sovarette Sottane, 87040 Rose (CS)

€ 139.233
Vendita all'asta Senza incanto, con gara telematica sincrona mista - LOTTO UNICO: 1/1 di Bene A: terreno agricolo di mq. complessivi di 84.283. Suddiviso in molteplici particelle e classi, (dettagli in perizia). Prezzo base € 139.233,09 (offerta minima € 103.674,82). Data vendita 07/05/2026 ore 09:45. Giudice Dott. Giuseppe Sicilia. Professionista delegato alla vendita Avv. Stefano Gargano - Email "stefano.gargano@libero.it"; Tel. 098429161. Custode Giudiziario Avv. Stefano Gargano - Email "stefano.gargano@libero.it"; Tel. 098429161. Rif. Tribunale di Cosenza - Esecuzione immobiliare post legge 80 n. 148/2015

Tipologia di vendita Giudiziaria
Modalità di vendita Sincrona mista
Termine presentazione offerte 01/01/1900 ore 00:00
Data e ora inizio gara 07/05/2026 ore 09:45
Codice ID astegiudiziarie.it 4279705
€ 139.233

Ti interessa questa vendita?

north_east

Clicca qui per essere indirizzato alla scheda sul sito di provenienza

Bene di astegiudiziarie.it