highlight_off
Riferimento annuncio 38324 info

Terreno agricolo Località Burgianico, 51100 Pistoia (PT)

€ 495.500
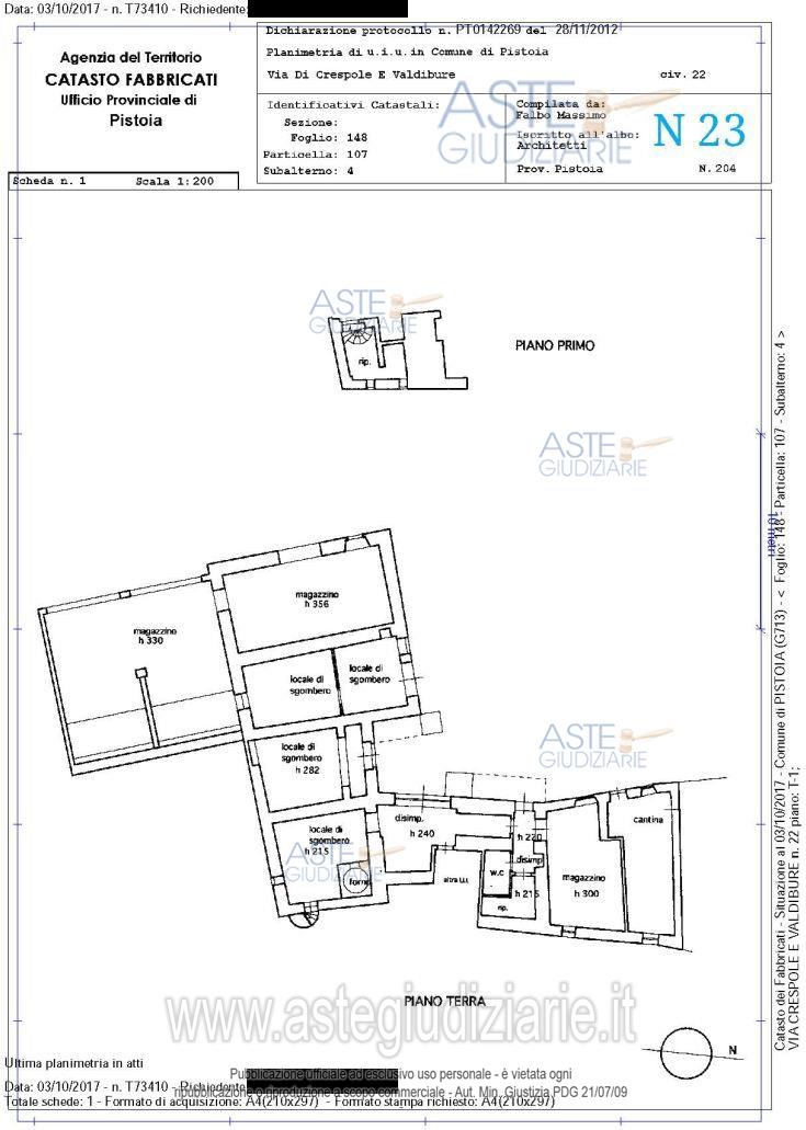
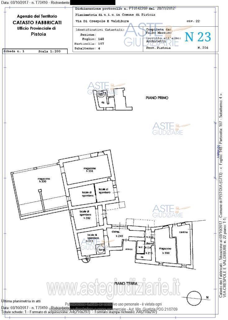
Vendita all'asta Senza incanto, con gara telematica asincrona - LOTTO 5: Terreni, ruderi, pollai, stalla, magazzini, frantoio, appartamenti, tettoia ed un cantiere edile. Prezzo base € 495.500,00 (offerta minima € 371.650,00). Data inizio operazioni di vendita: 22/04/2026 ore 09:30. Professionista delegato alla vendita Avv. Mario Ferreri. Custode Giudiziario Isveg - Email "prenota.pt@isveg.it"; Tel. 0573-3571532. Rif. Tribunale di Pistoia - Esecuzione immobiliare post legge 80 n. 381/2011

Tipologia di vendita Giudiziaria
Modalità di vendita Asincrona telematica
Termine presentazione offerte 21/04/2026 ore 12:00
Data e ora inizio gara 22/04/2026 ore 09:30
Codice ID astegiudiziarie.it 4167384
€ 495.500

Ti interessa questa vendita?

north_east

Clicca qui per essere indirizzato alla scheda sul sito di provenienza

Bene di astegiudiziarie.it