highlight_off
Riferimento annuncio 309470 info

Terreno agricolo Contrada Santa Croce, 64024 Notaresco (TE)

€ 309.120
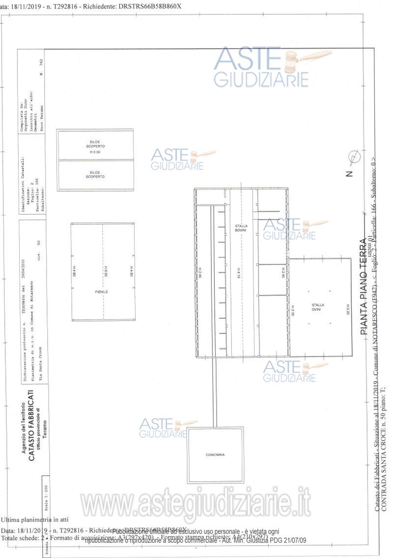
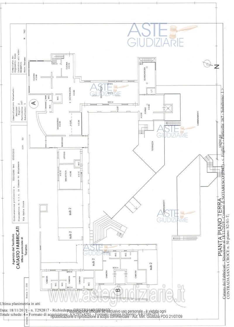
Vendita all'asta Senza incanto - LOTTO UNICO: Diritti indivisi pari al 50% dell’intera proprietà del complesso immobiliare sito in agro di Notaresco Contrada Santa Croce, costituito da terreno della estensione catastale complessiva, coperta e scoperta, di Ha 11.79.70 il tutto al catasto terreni Fg. 1, p.lle 351 e 353 e Fg. 2 p.lle 9 - 12 - 25 - 65 – 66 - 67- 68 – 69 -70 – 86 -103 -105 -110 -138 -139 e sovrastanti fabbricati rurali distinti al catasto fabbricati Fg. 2 p.lla 166 categoria D/10 rendita euro 2.416,00 p.lla 167 sub 1 categoria D/10 rendita euro 7.244,00 e p.lla 167 sub 2 categoria D/10 rendita euro 874,00. Prezzo base € 309.120,00 (offerta minima € 309.120,00). Data vendita 28/04/2026 ore 10:30. Rif. Ente Ministero delle Imprese e del Made in Italy - Scioglimento per atto d'autorità n. 161/2018

Tipologia di vendita Giudiziaria
Modalità di vendita Presso il venditore
Termine presentazione offerte 01/01/1900 ore 00:00
Data e ora inizio gara 28/04/2026 ore 10:30
Codice ID astegiudiziarie.it 4330738
€ 309.120

Ti interessa questa vendita?

north_east

Clicca qui per essere indirizzato alla scheda sul sito di provenienza

Bene di astegiudiziarie.it