highlight_off
Riferimento annuncio 126877 info

Terreno agricolo Fraz. Matonti - Loc. Vetrali, 84050 Laureana Cilento (SA)

€ 51.445
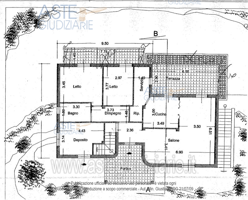
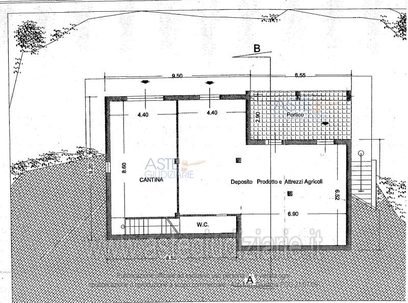
Vendita all'asta Senza incanto - LOTTO UNICO: Fabbricato rurale ubicato nel Comune di Laureana Cilento (SA) - Fraz. Matonti -Loc. Vetrali, identificato in catasto al Foglio 14 particella n.724 e terreno ubicato nelComune di Laureana Cilento (Sa) - Fraz. Matonti - Loc. Vetrali -, identificato incatasto al Foglio 14 particelle nn.704-707 e 723. Prezzo base € 51.445,00 (offerta minima € 38.583,82). Data vendita 19/12/2025 ore 11:00. Giudice Dott. Roberta Giglio. Professionista delegato alla vendita Dott. Giovanni Guzzo. Custode Giudiziario Dott. Giovanni Guzzo - Email "giovanni.guzzo.info@gmail.com"; Cell. 3497936722; Tel. 097472972. Rif. Tribunale di Vallo della Lucania - Esecuzione immobiliare post legge 80 n. 26/2019

Tipologia di vendita Giudiziaria
Modalità di vendita Presso il venditore
Termine presentazione offerte 01/01/1900 ore 00:00
Data e ora inizio gara 19/12/2025 ore 11:00
Codice ID astegiudiziarie.it 4235936
€ 51.445

Ti interessa questa vendita?

north_east

Clicca qui per essere indirizzato alla scheda sul sito di provenienza

Bene di astegiudiziarie.it