highlight_off
Riferimento annuncio 246876 info

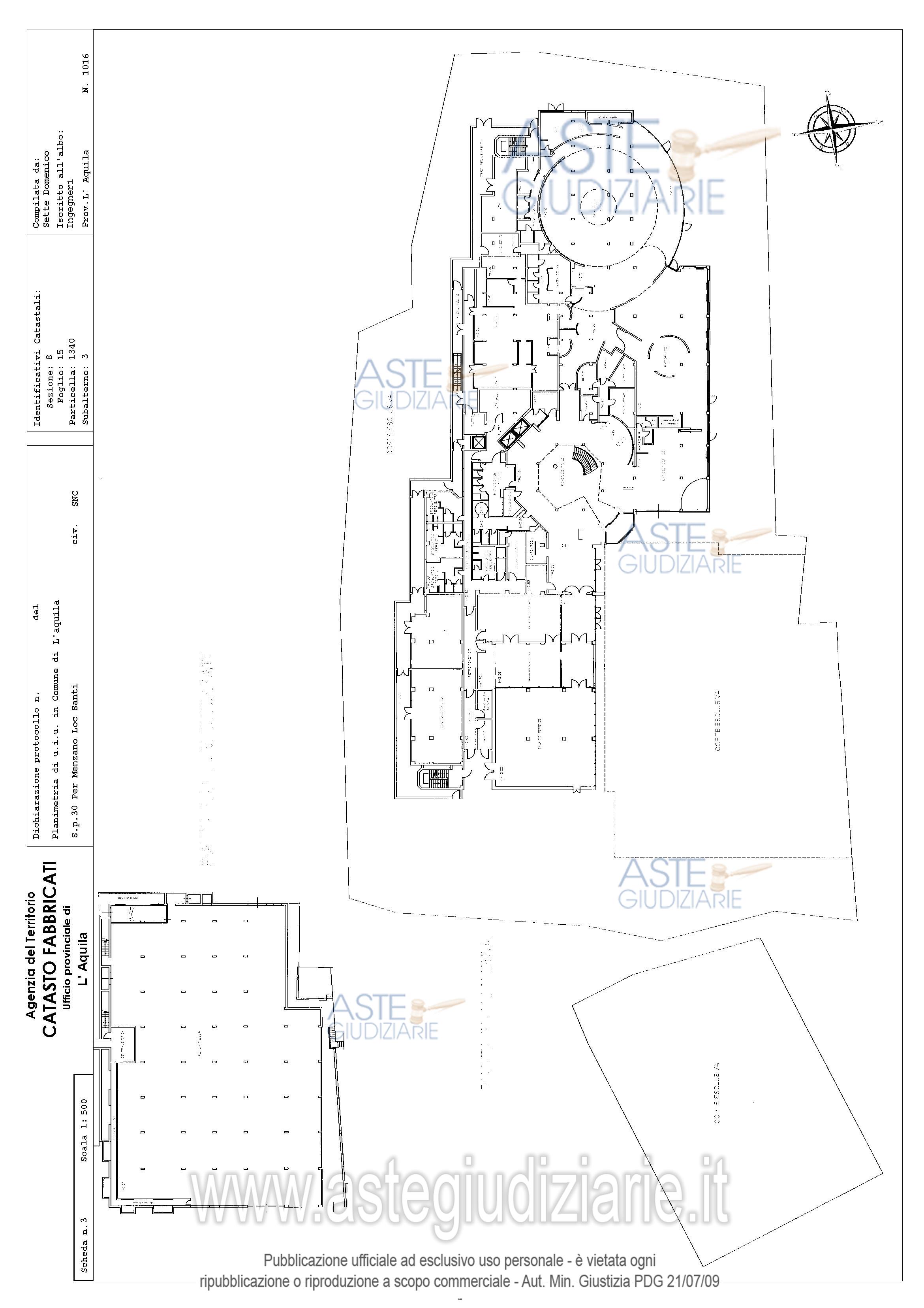
Terreno agricolo Fraz. Santi di Preturo, 67100 L'Aquila (AQ)

€ 745.740
Vendita all'asta Senza incanto, con gara telematica asincrona - LOTTO 4: Terreni adibiti a campo da golf. (LOTTO D). Prezzo base € 745.740,00 (offerta minima € 559.305,00). Data inizio operazioni di vendita: 14/04/2026 ore 09:30. Giudice Dott. Maura Manzi. Professionista delegato alla vendita Dott. Gianni Leonio - Email "giannileonio@gmail.com"; Tel. 0862-028360. Custode Giudiziario Dott. Istituto Vendite Giudiziarie Abruzzo - Email "ivgavezzano@gmail.com"; Cell. 366-4670370; Tel. 0863-1940168. Rif. Tribunale di L'Aquila - Esecuzione immobiliare post legge 80 n. 12/2016

Tipologia di vendita Giudiziaria
Modalità di vendita Asincrona telematica
Termine presentazione offerte 01/01/1900 ore 00:00
Data e ora inizio gara 14/04/2026 ore 09:30
Codice ID astegiudiziarie.it 4282427
€ 745.740

Ti interessa questa vendita?

north_east

Clicca qui per essere indirizzato alla scheda sul sito di provenienza

Bene di astegiudiziarie.it