highlight_off
Riferimento annuncio 314938 info

Terreno agricolo Str. Antica Dogana, 58100 Grosseto GR, Italia, 58100 Grosseto (GR)

€ 245.760
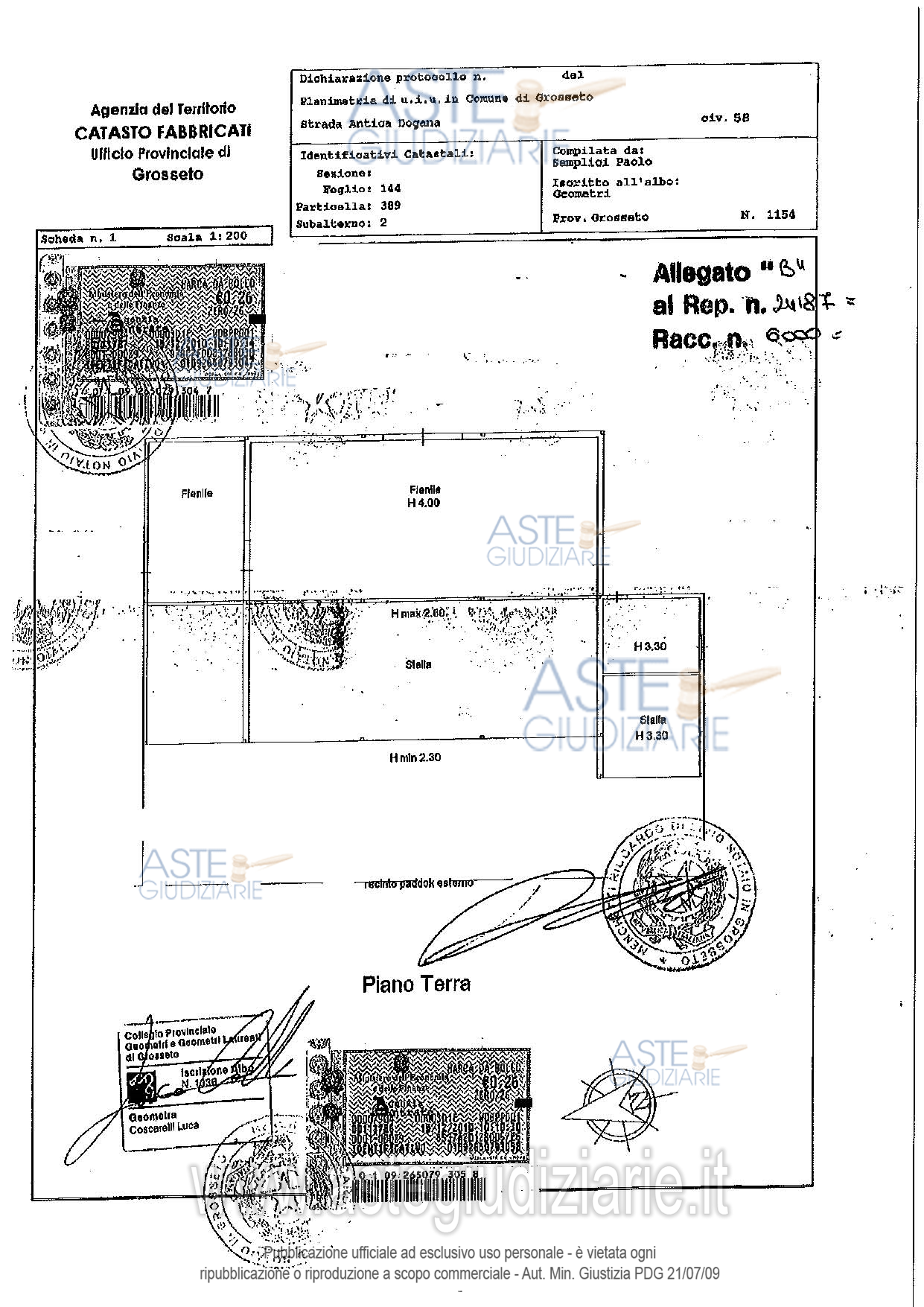
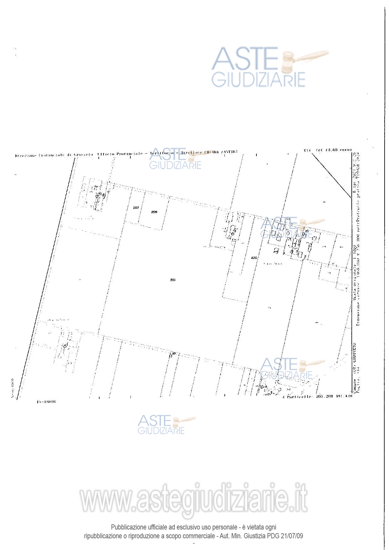
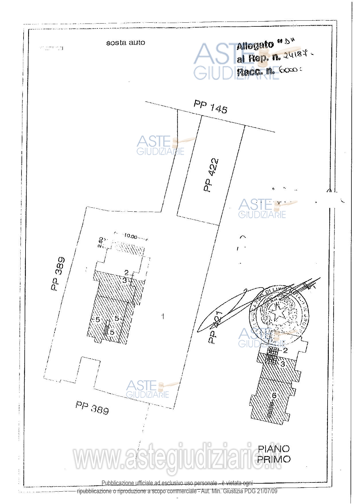
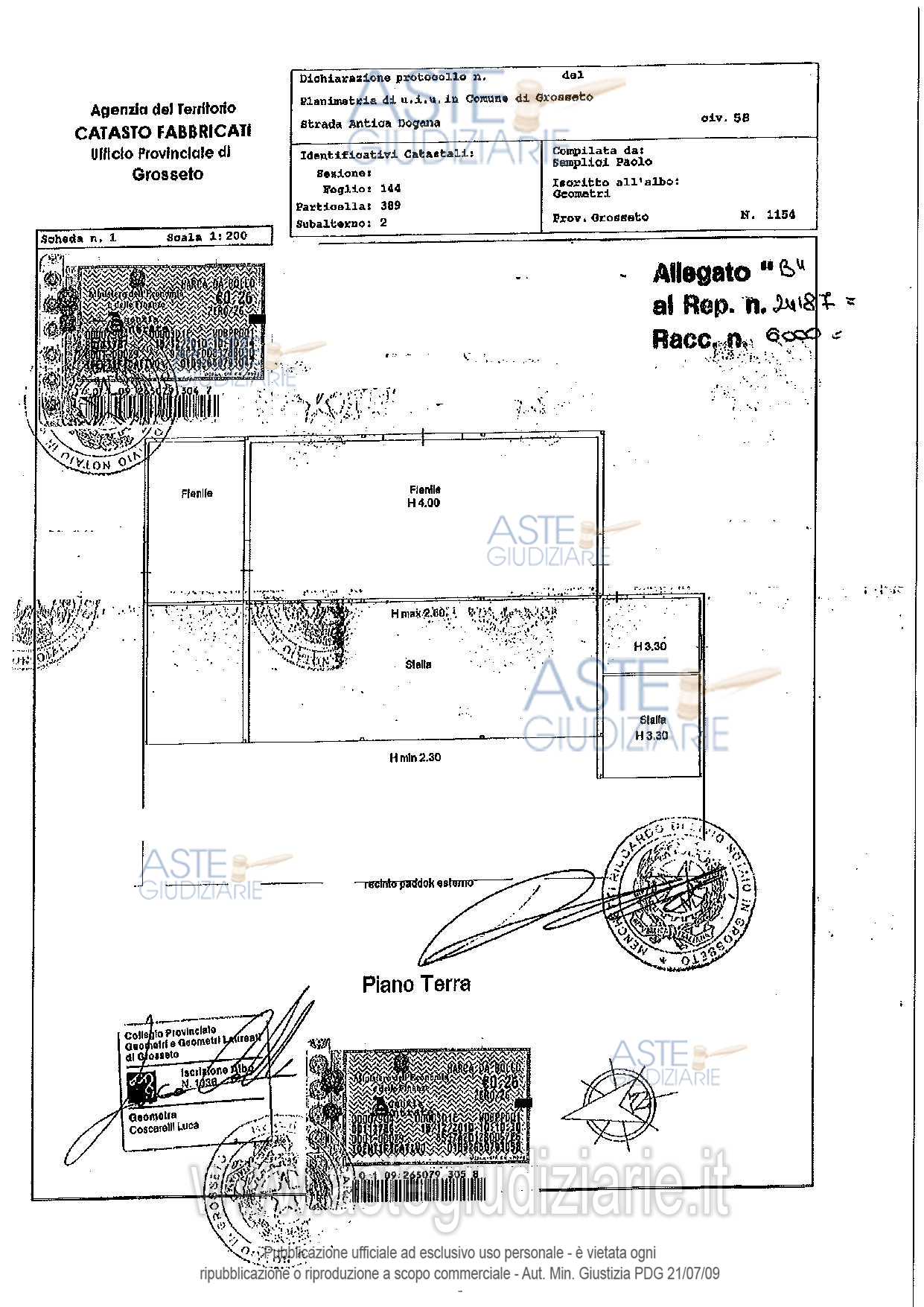
Vendita all'asta Senza incanto, con gara telematica asincrona - LOTTO 6: Piena proprietà di terreno a confine con il resede deei fabbricati dell’azienda agricola . Censito al catasto terreni del Comune di GR foglio 144, part. 391, seminativo irriguo classe U, sup. 161.677 reddito domin. € 1.043,74, agrario € 918,49. confini come da ctu allegata alla quale integralmente si rimanda. Si invita a prendere visione della CDU allegata. Terreno totalmente pianeggiante e facilmente accessibile. E'presente un pozzo per irrigazione. Libero. Prezzo base € 245.760,00 (offerta minima € 184.320,00). Data inizio operazioni di vendita: 10/03/2026 ore 09:00. Professionista delegato alla vendita Avv. Daniela Giogli - Email "danielagiogli@gmail.com"; Cell. 3382253993; Tel. 3382253993. Custode Giudiziario Avv. Daniela Giogli - Email "danielagiogli@gmail.com"; Cell. 3382253993; Tel. 3382253993. Rif. Tribunale di Grosseto - Esecuzione immobiliare post legge 80 n. 125/2020

Tipologia di vendita Giudiziaria
Modalità di vendita Asincrona telematica
Termine presentazione offerte 05/03/2026 ore 23:59
Data e ora inizio gara 10/03/2026 ore 09:00
Codice ID astegiudiziarie.it 4336118
€ 245.760

Ti interessa questa vendita?

north_east

Clicca qui per essere indirizzato alla scheda sul sito di provenienza

Bene di astegiudiziarie.it