highlight_off
Riferimento annuncio 321279 info

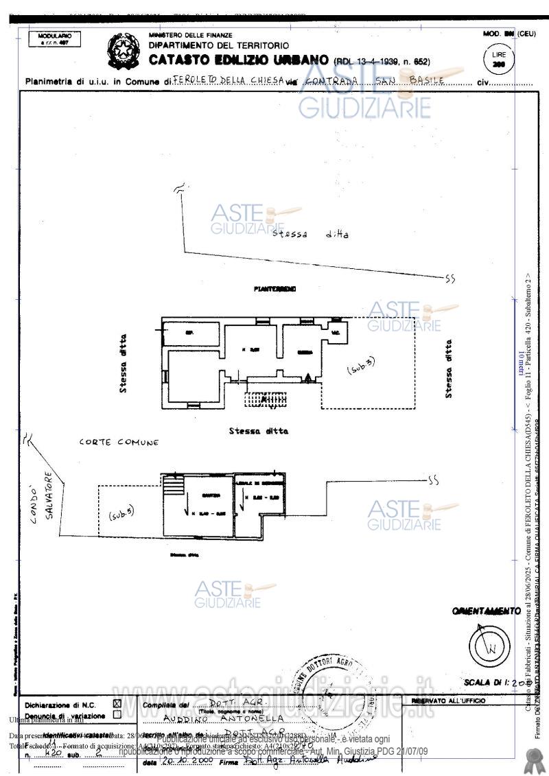
Terreno agricolo contrada San Basilio, 89050 Feroleto della Chiesa (RC)

€ 112.557
Vendita all'asta Senza incanto, con gara telematica asincrona - LOTTO UNICO: fondo rustico in due corpi, della sup. di ettari 3.95.83, con annesso gruppo di fabbricati realizzati su un’area di circa 400,00 mq. I due corpi aziendali, coltivati in parte ad olivo ed in parte ad agrumi più varie zone prive di coltivazione. Catasto Terreni al foglio 10 con le particelle 96 e 97, al foglio 11 con le particelle 54, 57, 58, 70, 156, 202, 203, 273, 274, 275, 417, 419 e 421 e nel Catasto Fabbricati al foglio 11 con la particella 420 sub 2, 4, 5 e 6. Prezzo base € 112.557,00 (offerta minima € 84.418,00). Data inizio operazioni di vendita: 29/01/2026 ore 15:00. Giudice Dott. Marta Caineri. Professionista delegato alla vendita Avv. Maria Vittoria Calle - Email "mavinac@yahoo.it"; Tel. 3456158029. Custode Giudiziario Avv. Maria Vittoria Calle - Email "mavinac@yahoo.it"; Tel. 3456158029. Rif. Tribunale di Palmi - Espropriazione immobiliare (cartabia) n. 16/2025

Tipologia di vendita Giudiziaria
Modalità di vendita Asincrona telematica
Termine presentazione offerte 01/01/1900 ore 00:00
Data e ora inizio gara 29/01/2026 ore 15:00
Codice ID astegiudiziarie.it 4340938
€ 112.557

Ti interessa questa vendita?

north_east

Clicca qui per essere indirizzato alla scheda sul sito di provenienza

Bene di astegiudiziarie.it