highlight_off
Riferimento annuncio 305531 info

Terreno agricolo Via Prime Case, 02032 Primecase RI, Italia, 02032 Fara in Sabina (RI)

€ 121.176
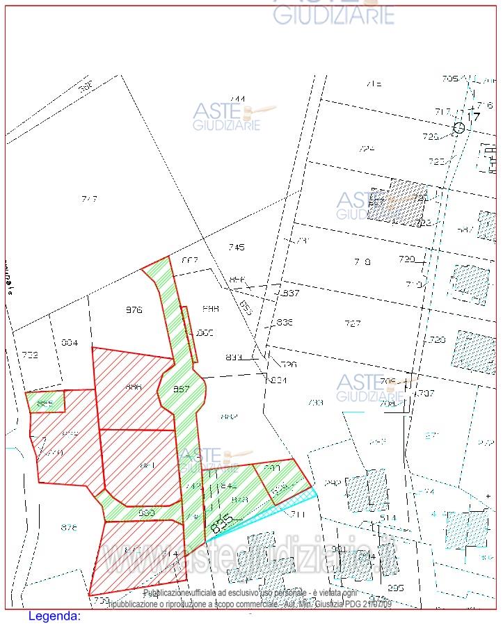
Vendita all'asta Senza incanto, con gara telematica asincrona - LOTTO UNICO: Piena proprietà di terreni lottizzati con Piano di Lottizzazione Convenzionata del 2007 e successiva variante del 2012, per la costruzione di n° 4 unità immobiliari. L'area risulta completa per quanto riguarda le opere di urbanizzazione primaria (rete fognaria, idrica e illuminazione). Il terreno sviluppa una superficie complessiva di circa 5.000 mq. con una potenzialità edificatoria di circa 891 mc (dati di progetto), convenzioni stipulate con il Comune di Fara in Sabina sono ad oggi scadute. Prezzo base € 121.176,00 (offerta minima € 90.882,00). Data inizio operazioni di vendita: 29/10/2025 ore 11:00. Giudice Dott. Barbara Vicario. Professionista delegato alla vendita Avv. Cristiano Figorilli - Email "cristianofigorilli@gmail.com". Custode Giudiziario Avv. Cristiano Figorilli - Email "cristianofigorilli@gmail.com". Rif. Tribunale di Rieti - Esecuzione immobiliare post legge 80 n. 18/2021

Tipologia di vendita Giudiziaria
Modalità di vendita Asincrona telematica
Termine presentazione offerte 01/01/1900 ore 00:00
Data e ora inizio gara 29/10/2025 ore 11:00
Codice ID astegiudiziarie.it 4328184
€ 121.176

Ti interessa questa vendita?

north_east

Clicca qui per essere indirizzato alla scheda sul sito di provenienza

Bene di astegiudiziarie.it