highlight_off
Riferimento annuncio 141777 info

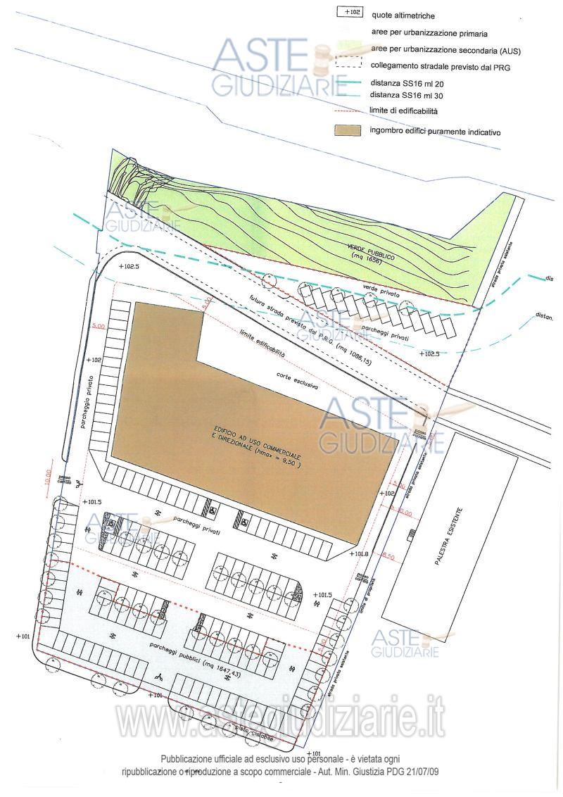
Terreno agricolo Via Marconi, 86, 60015 Falconara Marittima (AN)

€ 5.905
Vendita all'asta Senza incanto, con gara telematica asincrona - LOTTO 5: Quota del 31,30% di aree cortilizie condominiali con destinazione a parcheggio privato di uso pubblico e a viabilità interna. Prezzo base € 5.904,90 (offerta minima € 4.428,67). Data inizio operazioni di vendita: 10/06/2026 ore 10:00. In caso di più offerte valide si procederà a gara che inizierà il 10/06/2026 ore 10:00 e terminerà il 17/06/2026 ore 10:00. Giudice: Dott. Giuliana Filippello. Curatore: Dott. Camillo Catana Vallemani. Soggetto specializzato alla vendita: Aste Giudiziarie Inlinea S.P.A. - Email "vendite@astegiudiziarie.it". Rif. Tribunale di Ancona - Fallimentare (nuovo rito) n. 38/2019

Tipologia di vendita Giudiziaria
Modalità di vendita Asincrona telematica
Termine presentazione offerte 09/06/2026 ore 12:00
Data e ora inizio gara 10/06/2026 ore 10:00
Codice ID astegiudiziarie.it 4247677
€ 5.905

Ti interessa questa vendita?

north_east

Clicca qui per essere indirizzato alla scheda sul sito di provenienza

Bene di astegiudiziarie.it