highlight_off
Riferimento annuncio 298748 info

Terreno agricolo CONTRADA CONIGLIERA, 90030 Castronovo di Sicilia (PA)

€ 5.307
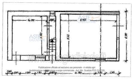
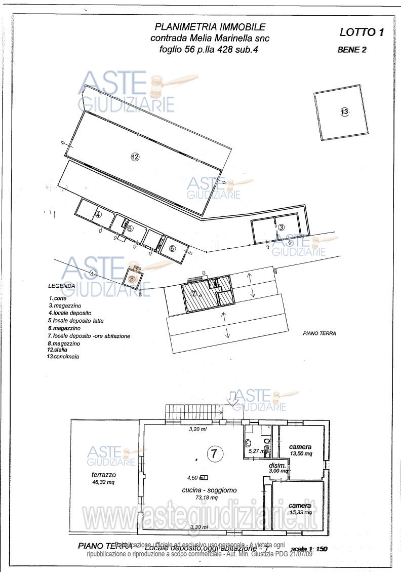
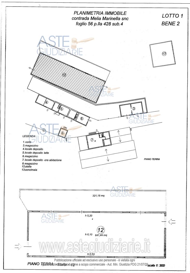
Vendita all'asta Senza incanto, con gara telematica sincrona - LOTTO 3: Il LOTTO 3 è formato dal BENE n. 6:Terreno, sito a Castronovo di Sicilia, in prossimità del Lego Fanaco, in contrada “ Conigliera ”, censito al N.C.T. al foglio 56, p.lla 194, Superficie 6.305 mq, reddito dominicale € 17,91, reddito agrario € 9,77; BENE n. 7: Terreno sito a Castronovo di Sicilia ( Pa ), in prossimità del Lago Fanaco, in contrada “ Conigliera”, censito al N.C.T. al foglio 56, p.lla 37, classe colturale catastale di tipo SEMINATIVO, Super. 957 mq, redd. dom. € 2,72, redd. agrario € 1,48. Prezzo base € 5.306,54 (offerta minima € 3.979,90). Data vendita 23/12/2025 ore 10:00. Giudice Debernardi. Professionista delegato alla vendita Avv. Luisa Centineo - Email "luisacentineo@gmail.com"; Cell. 3280241353; Tel. 3280241353. Custode Giudiziario Avv. Luisa Centineo - Email "luisacentineo@gmail.com"; Cell. 3280241353; Tel. 3280241353. Rif. Tribunale di Termini Imerese - Espropriazione immobiliare (cartabia) n. 75/2023

Tipologia di vendita Giudiziaria
Modalità di vendita Sincrona telematica
Termine presentazione offerte 01/01/1900 ore 00:00
Data e ora inizio gara 23/12/2025 ore 10:00
Codice ID astegiudiziarie.it 4322776
€ 5.307

Ti interessa questa vendita?

north_east

Clicca qui per essere indirizzato alla scheda sul sito di provenienza

Bene di astegiudiziarie.it