highlight_off
Riferimento annuncio 298747 info

Terreno agricolo CONTRADA CANNATELLA, 90030 Castronovo di Sicilia (PA)

€ 20.403
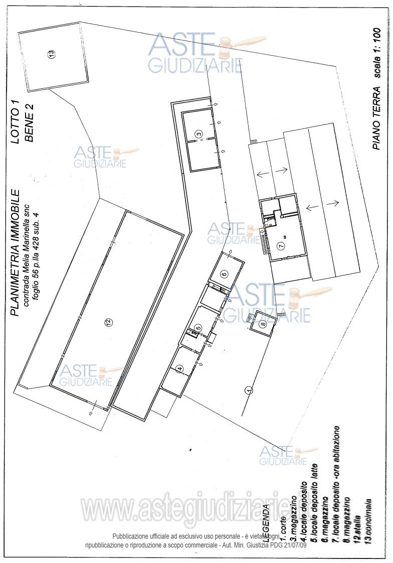
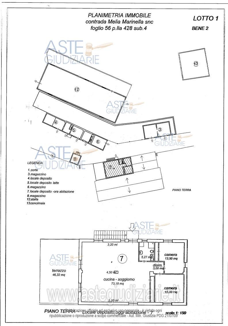
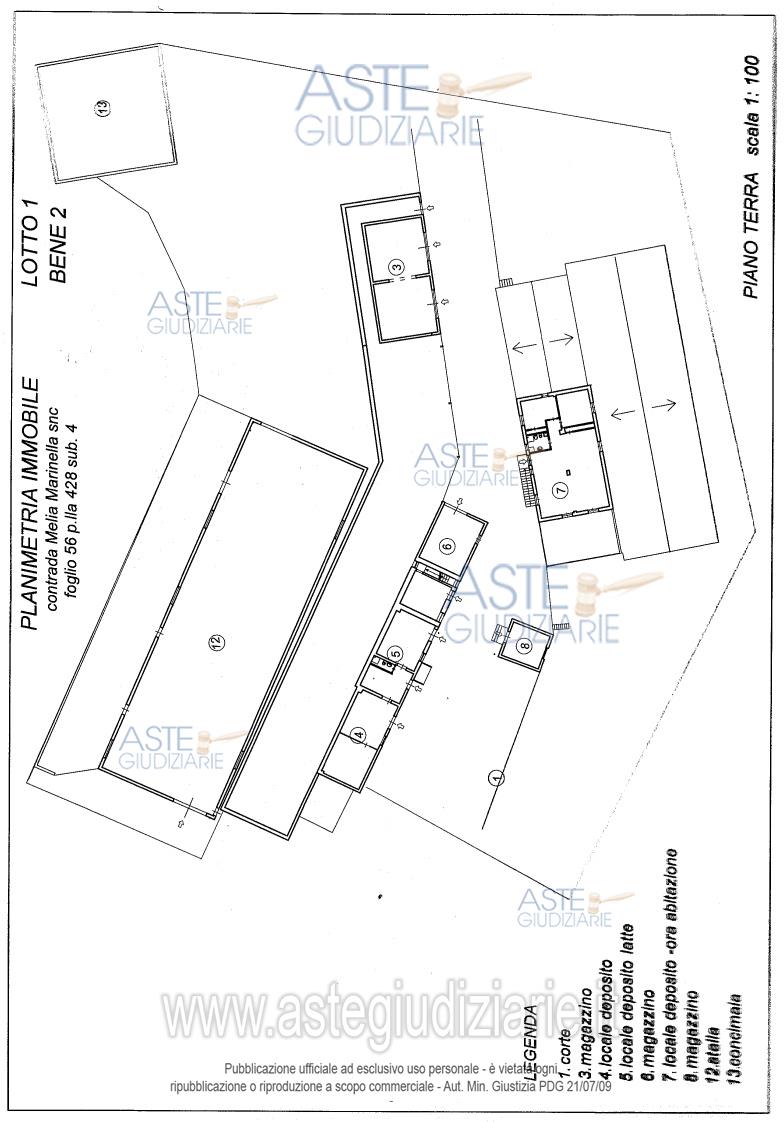
Vendita all'asta Senza incanto, con gara telematica sincrona - LOTTO UNICO: Il LOTTO 2 è formato dal BENE 5 costituito da Terreno ubicato a Castronovo di Sicilia ( Pa ), contrada Cannatella, censito al N.C.T. del Comune di Castronovo di Sicilia al foglio 56, p.lla 94, classe colturale catastale di tipo SEMINATIVO, così come allo stato attuale, ha una forma trapezoidale ed è parzialmente recintato, superficie 40.750,00 mq, reddito dominicale € 168,36, reddito agrario € 63,14.Si fa rinvio alla Perizia di Stima per eventuali oneri e pesi e per la regolarità edilizia/urbanistica. Prezzo base € 20.402,72 (offerta minima € 15.302,04). Data vendita 11/06/2026 ore 10:00. Giudice: Balsano. Professionista delegato alla vendita: Avv. Luisa Centineo - Email "luisacentineo@gmail.com"; Cell. 328/0241353. Custode Giudiziario: Avv. Luisa Centineo - Email "luisacentineo@gmail.com"; Cell. 328/0241353. Rif. Tribunale di Termini Imerese - Espropriazione immobiliare (cartabia) n. 75/2023

Tipologia di vendita Giudiziaria
Modalità di vendita Sincrona telematica
Termine presentazione offerte 01/01/1900 ore 00:00
Data e ora inizio gara 11/06/2026 ore 10:00
Codice ID astegiudiziarie.it 4322775
€ 20.403

Ti interessa questa vendita?

north_east

Clicca qui per essere indirizzato alla scheda sul sito di provenienza

Bene di astegiudiziarie.it