highlight_off
Riferimento annuncio 75133 info

Terreno agricolo Buggerru SU, Italia, 09010 Buggerru (SU)

€ 132.300
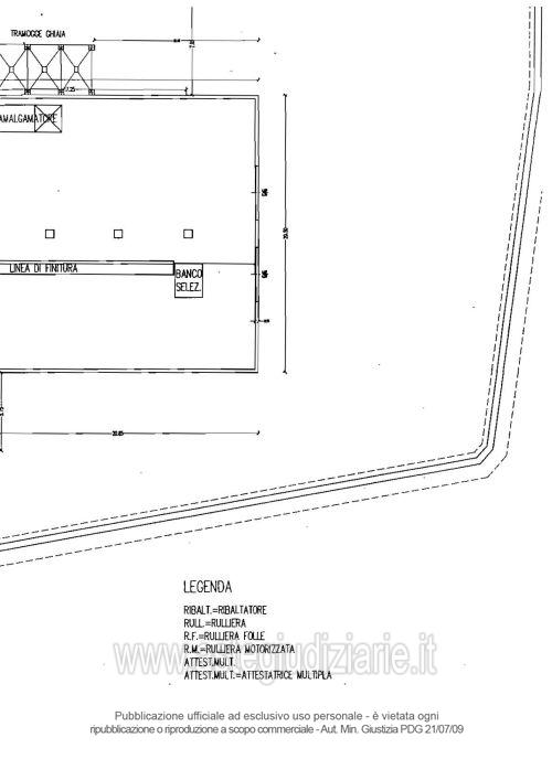
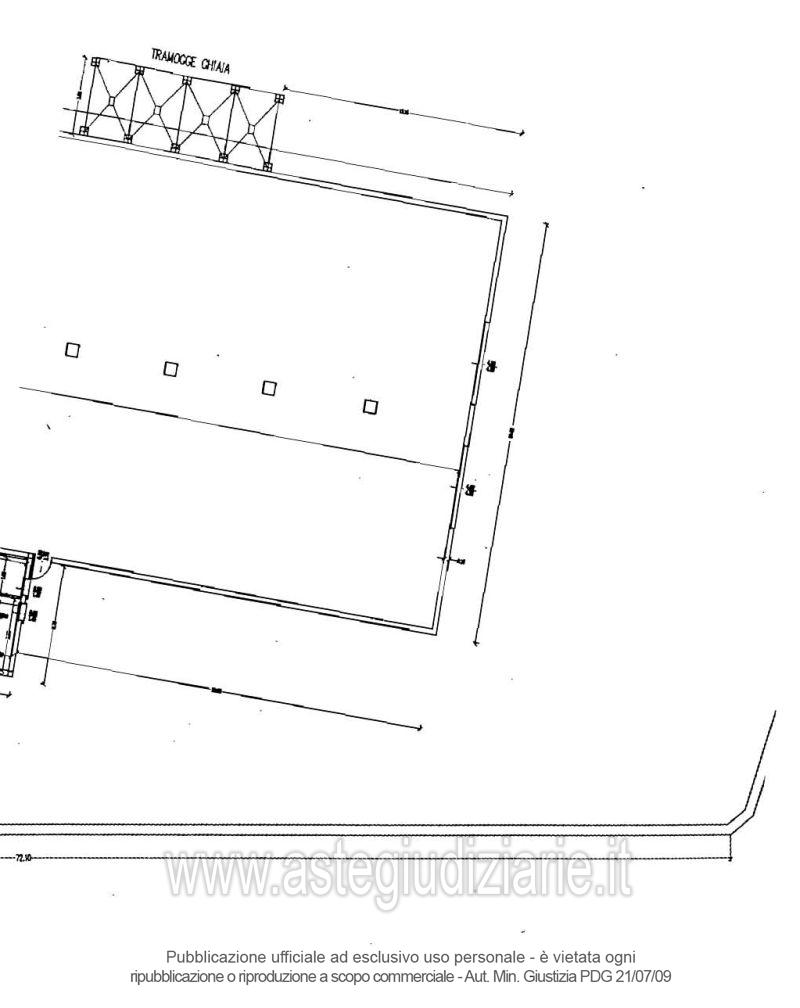
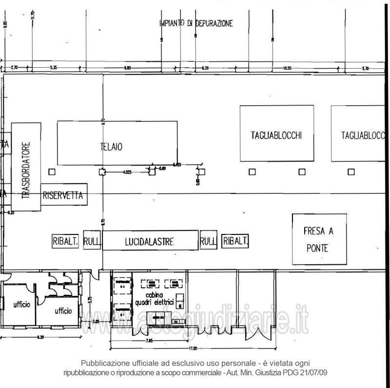
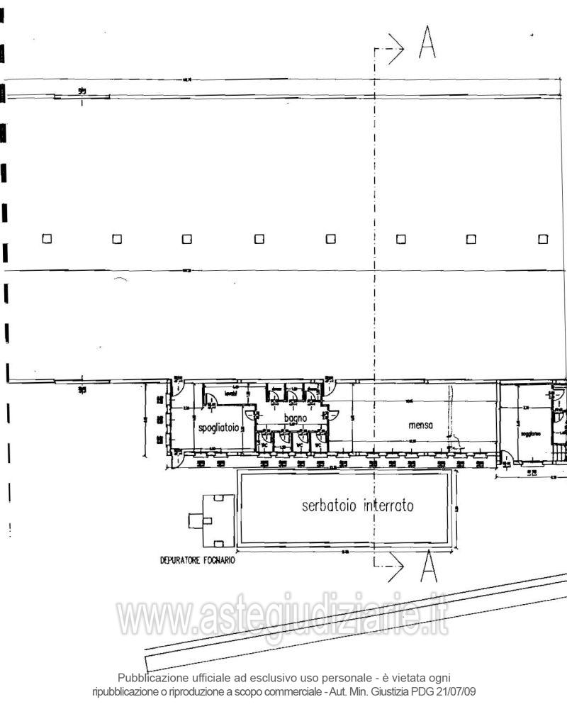
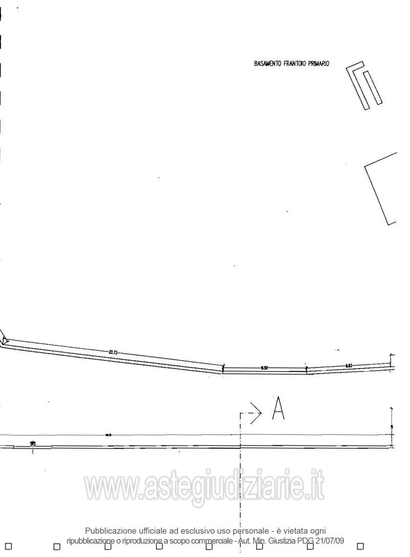
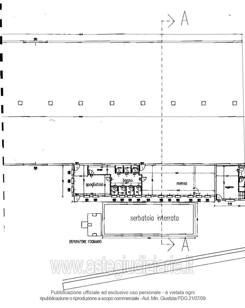
Vendita all'asta Senza incanto, con gara telematica asincrona - LOTTO UNICO: In Comune di Buggerru: piena proprietà del terreno sito in località “Sa Rocca Bianca”, con entrostanti le seguenti dotazioni fondiarie e precisamente: uno stabilimento per la lavorazione del marmo e due fabbricati rurali. Prezzo base € 132.300,00 (offerta minima € 99.225,00). Data inizio operazioni di vendita: 17/03/2026 ore 11:00. Giudice Silvia Cocco. Professionista delegato alla vendita Not. Stefano Casti - Email "ufficiouniconotai@pec.it"; Tel. 07060222574. Custode Giudiziario Ivg Cagliari - Email "ivg.visiteimmobili@tiscali.it"; Tel. 0702299036. Rif. Tribunale di Cagliari - Esecuzione immobiliari n. 304/2004

Tipologia di vendita Giudiziaria
Modalità di vendita Asincrona telematica
Termine presentazione offerte 01/01/1900 ore 00:00
Data e ora inizio gara 17/03/2026 ore 11:00
Codice ID astegiudiziarie.it 117570
€ 132.300

Ti interessa questa vendita?

north_east

Clicca qui per essere indirizzato alla scheda sul sito di provenienza

Bene di astegiudiziarie.it