highlight_off
Riferimento annuncio 271251 info

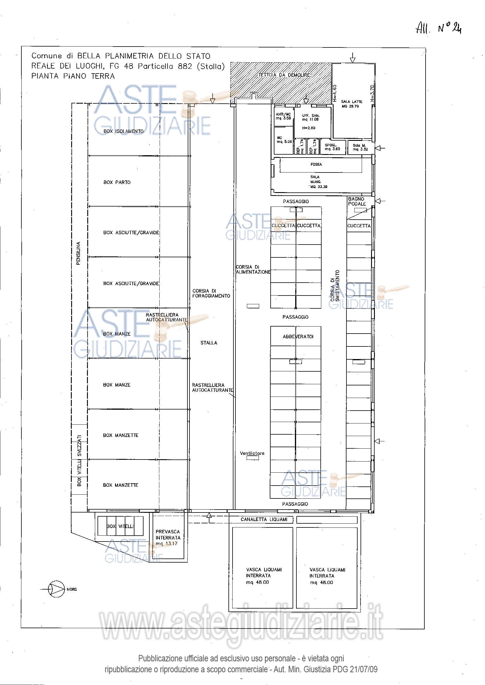
Terreno agricolo Contrada Pietra Scritta snc, 85051 Bella (PZ)

€ 160.527
Vendita all'asta Senza incanto, con gara telematica asincrona - LOTTO 3: proprietà 1/1 di terreni e fabbricati in agro di Bella (Pz) alla contrada Pietra Scritta. Prezzo base € 160.527,44 (offerta minima € 120.395,58). Data inizio operazioni di vendita: 14/05/2026 ore 11:30. Giudice: Davide Visconti. Professionista delegato alla vendita: Avv. Gabriele Messina - Email "studiolegalemessina@gmail.com". Rif. Tribunale di Potenza - Esecuzione immobiliare post legge 80 n. 144/2017

Tipologia di vendita Giudiziaria
Modalità di vendita Asincrona telematica
Termine presentazione offerte 01/01/1900 ore 00:00
Data e ora inizio gara 14/05/2026 ore 11:30
Codice ID astegiudiziarie.it 4301463
€ 160.527

Ti interessa questa vendita?

north_east

Clicca qui per essere indirizzato alla scheda sul sito di provenienza

Bene di astegiudiziarie.it