highlight_off
Riferimento annuncio 259915 info

Terreno agricolo Via Statale Oreto, 98051 Barcellona Pozzo di Gotto (ME)

€ 8.986
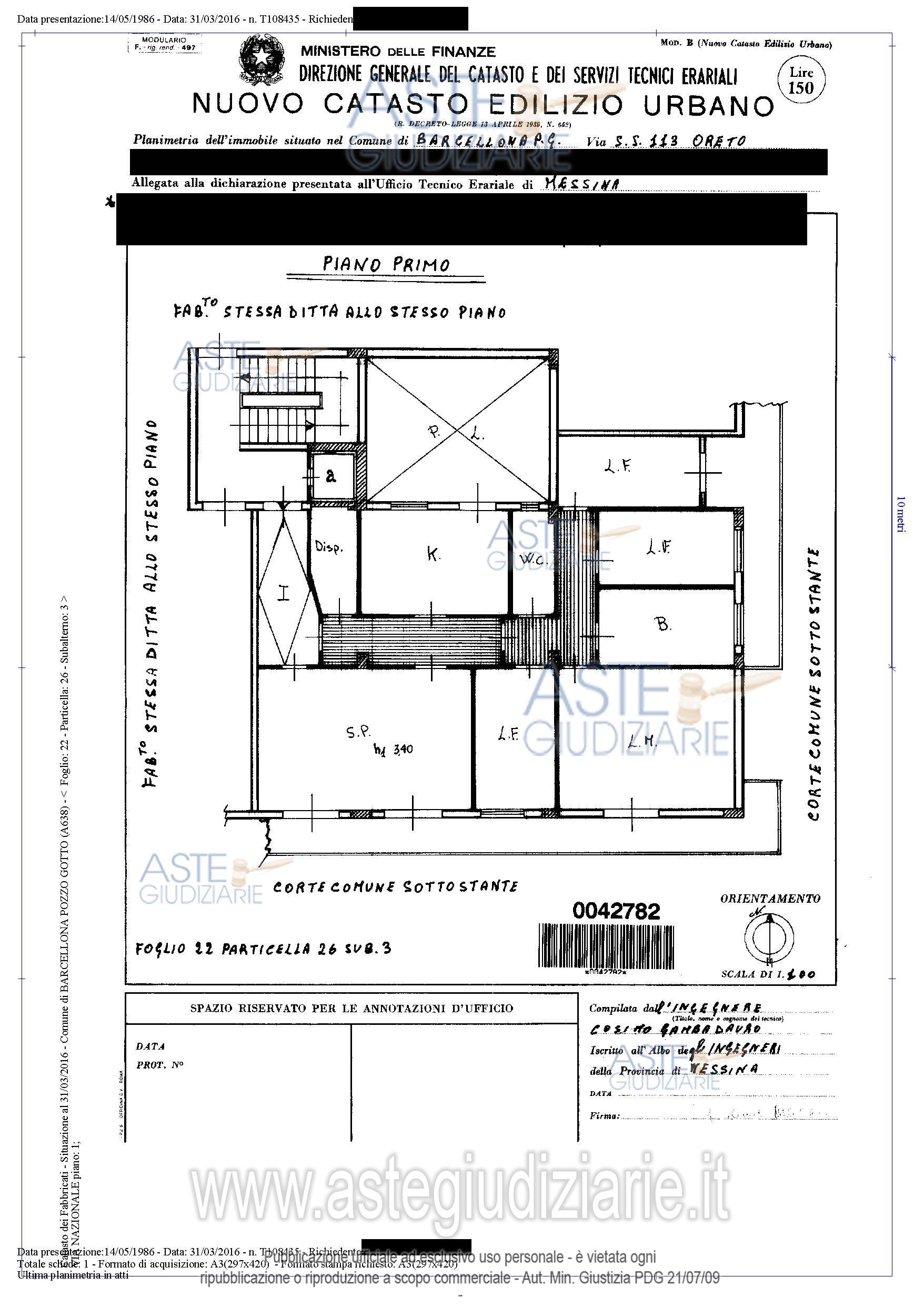
Vendita all'asta Senza incanto, con gara telematica sincrona - LOTTO 14: Piena ed esclusiva proprietà di un locale accessorio e lastrico solare, ubicato al quinto piano di un edificio a cinque elevazioni f.t. Prezzo base € 8.986,31 (offerta minima € 6.739,73). Data vendita 19/12/2025 ore 17:00. Giudice Giuseppe Lo Presti. Professionista delegato alla vendita Avv. Mario Andrea Antonio Scardino - Email "scardino.mario@tiscali.it". Custode Giudiziario Avv. Mario Scardino - Email "marioscardino@gmail.com"; Tel. 0909703648. Rif. Tribunale di Barcellona Pozzo di Gotto - Esecuzione immobiliare post legge 80 n. 24/2015

Tipologia di vendita Giudiziaria
Modalità di vendita Sincrona telematica
Termine presentazione offerte 01/01/1900 ore 00:00
Data e ora inizio gara 19/12/2025 ore 17:00
Codice ID astegiudiziarie.it 4293955
€ 8.986

Ti interessa questa vendita?

north_east

Clicca qui per essere indirizzato alla scheda sul sito di provenienza

Bene di astegiudiziarie.it