highlight_off
Riferimento annuncio 285539 info

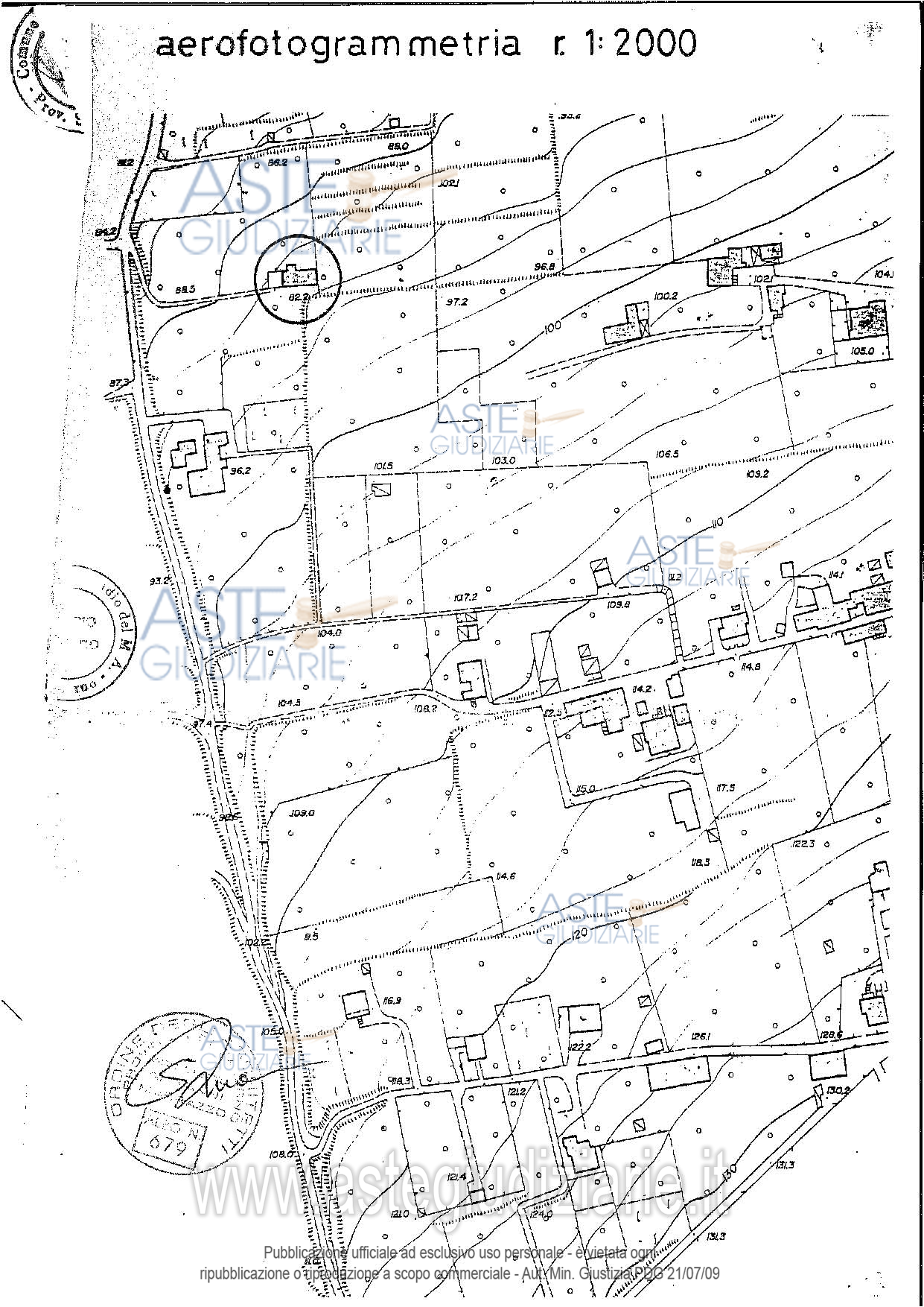
Terreno agricolo via Benedetto Croce snc, 84012 Angri (SA)

€ 73.215
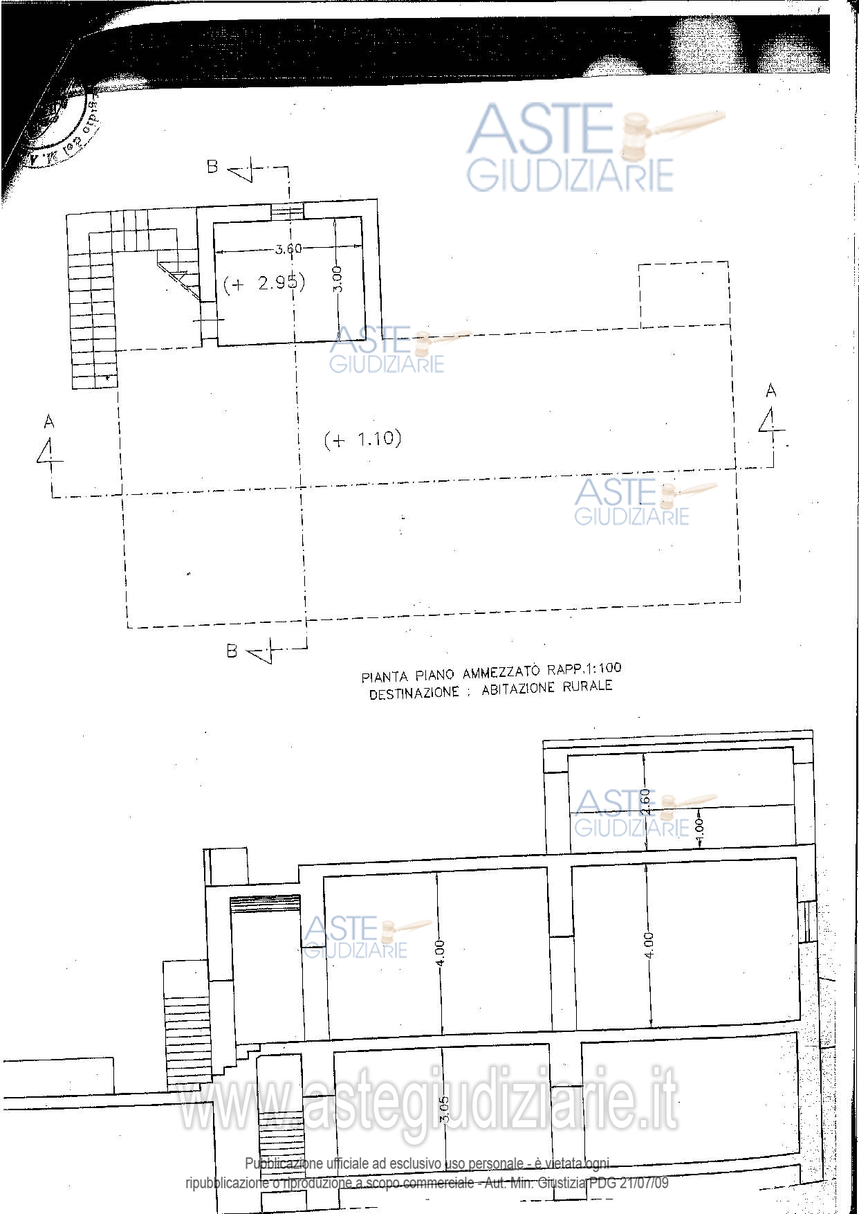
Vendita all'asta Senza incanto, con gara telematica asincrona - LOTTO 11: Per 1/2 dell’intera proprietà Terreno di circa 4100 mq, destinati a vigneto oltre a un fabbricato rurale in stato di abbandono.Il fabbricato ubicato in Via Benedetto Croce s.n.c. è composto da un piano interrato costituito da un garage e da una cantina, dalla quale si accede ad un piano ammezzato composto da tre vani. Prezzo base € 73.214,95 (offerta minima € 65.893,45). Data inizio operazioni di vendita: 25/11/2025 ore 10:00. Giudice Dott. Bianca Manuela Longo. Custode Giudiziario Aste Giudiziarie Inlinea Spa - Email "vendite@astegiudiziarie.it"; Tel. 0586 201480. Curatore Dott. Loredana Cioffi - Tel. 339 64 95 239. Rif. Tribunale di Nocera Inferiore - Fallimentare (nuovo rito) n. 51/2019
Vendita all'asta Senza incanto, con gara telematica asincrona - LOTTO 11: Für die Hälfte des gesamten Eigentums Ein Grundstück von etwa 4100 Quadratmetern, das für den Weinbau bestimmt ist, sowie ein ländliches Gebäude in einem Zustand der Vernachlässigung. Das Gebäude in der Via Benedetto Croce s.n.c. besteht aus einem Keller mit Garage und Weinkeller im Untergeschoss, von dem aus man über eine Zwischenebene mit drei Zimmern gelangt. Der Zugang erfolgt über das Erdgeschoss, das aus einem einzigen Raum und einem Badezimmer besteht. Draußen gibt es zwei überdachte Portiken, eine offene Terrasse und einen Heizraum. Vom Erdgeschoss aus gelangt man über eine Treppe in das erste Stockwerk mit acht Zimmern und zwei Außenterrassen. Die Gesamtnutzfläche beträgt etwa 397,93 Quadratmeter. Prezzo base € 73.214,95 (offerta minima € 65.893,45). Data inizio operazioni di vendita: 25/11/2025 ore 10:00. Giudice Dott. Bianca Manuela Longo. Custode Giudiziario Aste Giudiziarie Inlinea Spa - Email "vendite@astegiudiziarie.it"; Tel. 0586 201480. Curatore Dott. Loredana Cioffi - Tel. 339 64 95 239. Rif. Tribunale di Nocera Inferiore - Fallimentare (nuovo rito) n. 51/2019
Vendita all'asta Senza incanto, con gara telematica asincrona - LOTTO 11: For 1/2 of the entire property Land of about 4100 square meters, intended for a vineyard in addition to a rural building in a state of abandonment. The building located in Via Benedetto Croce s.n.c. consists of a basement with a garage and a cellar, from which you access a mezzanine floor with three rooms; access is from the ground floor with a single room and a bathroom; outside there are two covered porches, an uncovered terrace, and a boiler room; from the ground floor, a staircase leads to the first floor consisting of eight rooms and two external terraces. The commercial area is approximately 397.93 square meters. Prezzo base € 73.214,95 (offerta minima € 65.893,45). Data inizio operazioni di vendita: 25/11/2025 ore 10:00. Giudice Dott. Bianca Manuela Longo. Custode Giudiziario Aste Giudiziarie Inlinea Spa - Email "vendite@astegiudiziarie.it"; Tel. 0586 201480. Curatore Dott. Loredana Cioffi - Tel. 339 64 95 239. Rif. Tribunale di Nocera Inferiore - Fallimentare (nuovo rito) n. 51/2019
Vendita all'asta Senza incanto, con gara telematica asincrona - LOTTO 11: Pour la moitié de toute la propriété Terrain d'environ 4100 mètres carrés destiné à la vigne en plus d'un bâtiment rural à l'abandon. Le bâtiment situé Via Benedetto Croce snc se compose d'un sous-sol comprenant un garage et une cave, à partir de laquelle on accède à un entrepôt composé de trois pièces; l'accès se fait depuis le rez-de-chaussée composé d'une seule pièce et d'une salle de bains; à l'extérieur se trouvent deux porches couverts, une terrasse découverte et une chaufferie; depuis le rez-de-chaussée, un escalier mène au premier étage composé de huit pièces et deux terrasses extérieures. La surface commerciale est d'environ 397,93 mètres carrés. Prezzo base € 73.214,95 (offerta minima € 65.893,45). Data inizio operazioni di vendita: 25/11/2025 ore 10:00. Giudice Dott. Bianca Manuela Longo. Custode Giudiziario Aste Giudiziarie Inlinea Spa - Email "vendite@astegiudiziarie.it"; Tel. 0586 201480. Curatore Dott. Loredana Cioffi - Tel. 339 64 95 239. Rif. Tribunale di Nocera Inferiore - Fallimentare (nuovo rito) n. 51/2019
Vendita all'asta Senza incanto, con gara telematica asincrona - LOTTO 11: На 1/2 всех имуществ Земельный участок площадью около 4100 кв.м, предназначенный для виноградника, а также загородное здание в состоянии запустения. Здание, расположенное на улице Виа Бенедетто Кроче s.n.c., состоит из подземного этажа с гаражом и подвалом, из которого ведет проход на мезонин с тремя комнатами; доступ осуществляется с первого этажа, состоящего из одного помещения и ванной комнаты; снаружи есть два крытых крыльца, открытая терраса и котельная; с первого этажа по лестнице можно попасть на второй этаж с восемью комнатами и двумя внешними террасами. Коммерческая площадь составляет около 397,93 кв.м. Prezzo base € 73.214,95 (offerta minima € 65.893,45). Data inizio operazioni di vendita: 25/11/2025 ore 10:00. Giudice Dott. Bianca Manuela Longo. Custode Giudiziario Aste Giudiziarie Inlinea Spa - Email "vendite@astegiudiziarie.it"; Tel. 0586 201480. Curatore Dott. Loredana Cioffi - Tel. 339 64 95 239. Rif. Tribunale di Nocera Inferiore - Fallimentare (nuovo rito) n. 51/2019

Tipologia di vendita Giudiziaria
Modalità di vendita Asincrona telematica
Termine presentazione offerte 24/11/2025 ore 12:00
Data e ora inizio gara 25/11/2025 ore 10:00
Codice ID astegiudiziarie.it 4311872
€ 73.215

Ti interessa questa vendita?

north_east

Clicca qui per essere indirizzato alla scheda sul sito di provenienza

Bene di astegiudiziarie.it