highlight_off
Riferimento annuncio 294016 info

Ristorante Via Leopardi, 57023 Cecina (LI)

181,00
0
€ 252.540
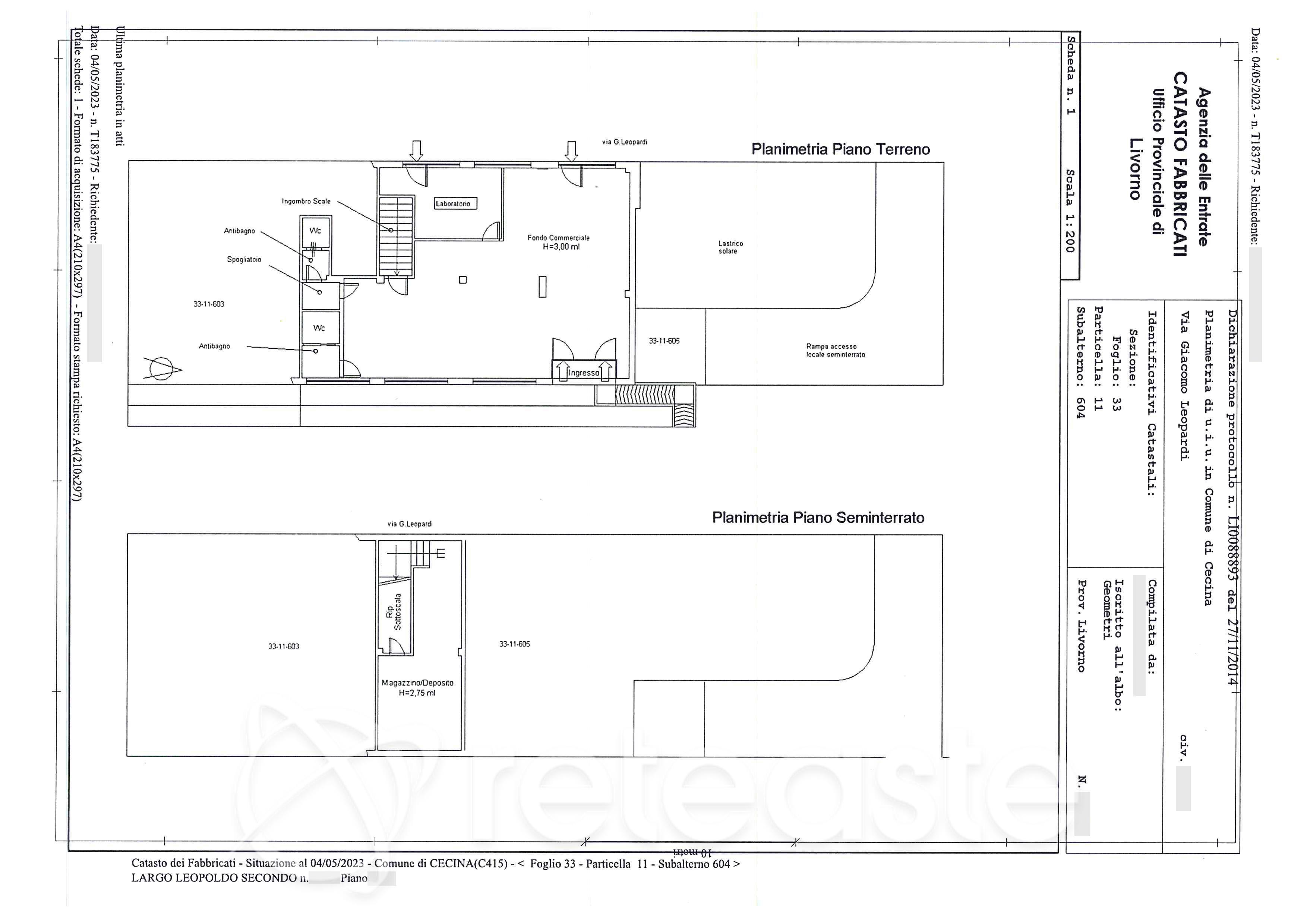
Vendita all'asta Invito a manifestare interesse - LOTTO 411: Fondo sviluppato su due livelli di mq. 181 (piano terreno e piano seminterrato) e composto da un locale adibito alla ristorazione, un locale laboratorio/confezionamento 6 prodotti e da un blocco servizi igienici e spogliatoio al piano terra, ampio magazzino al piano seminterrato. Le pavimentazioni sono in ceramica ad entrambi i piani. I rivestimenti dei servizi igienici sono in ceramica. Le porte interne sono in laminato plastico. Il locale è dotato di controsoffitto a pannelli removibili con illuminazione integrata. Prezzo base € 252.540,00. Data vendita 25/11/2025 ore 14:00. Rif. Tribunale di Livorno - Ricorso per omologazione piano di ristrutturazione n. 1/2024

Superficie 181,00 mq
Vani
Bagni
Piano 0

Tipologia di vendita Giudiziaria
Modalità di vendita Presso il venditore
Termine presentazione domande 01/01/1900 ore 00:00
Data e ora inizio gara 25/11/2025 ore 14:00
Codice ID astegiudiziarie.it 4302580
181,00
0
€ 252.540

Ti interessa questa vendita?

north_east

Clicca qui per essere indirizzato alla scheda sul sito di provenienza

Bene di astegiudiziarie.it