highlight_off
Riferimento annuncio 311842 info

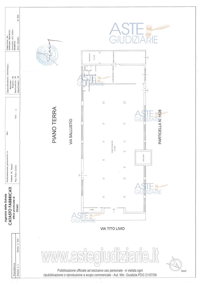
Negozio Via Tito Livio n. 1, 66054 Vasto (CH)

767,00
0
€ 1.072.800
Vendita all'asta Senza incanto, con gara telematica asincrona - LOTTO UNICO: unità immobiliare a destinazione commerciale di circa mq. 767,00 in Vasto alla via Tito Livio. Prezzo base € 1.072.800,00 (offerta minima € 804.600,00). Data inizio operazioni di vendita: 29/01/2026 ore 18:00. Giudice Stefania Izzi. Professionista delegato alla vendita Avv. Roberto Di Virgilio - Email "divirgilio.roberto@tiscali.it". Custode Giudiziario Avv. Roberto Di Virgilio - Email "divirgilio.roberto@tiscali.it"; Tel. 0873762002. Rif. Tribunale di Vasto - Contenzioso civile n. 1086/2021

Superficie 767,00 mq
Vani
Bagni
Piano 0

Tipologia di vendita Giudiziaria
Modalità di vendita Asincrona telematica
Termine presentazione offerte 28/01/2026 ore 23:59
Data e ora inizio gara 29/01/2026 ore 18:00
Codice ID astegiudiziarie.it 4333373
767,00
0
€ 1.072.800

Ti interessa questa vendita?

north_east

Clicca qui per essere indirizzato alla scheda sul sito di provenienza

Bene di astegiudiziarie.it