highlight_off
Riferimento annuncio 324331 info

Negozio Corso Cristoforo Colombo, 81, Lido Marini, 73059 Ugento (LE)

160,00
0
€ 68.219
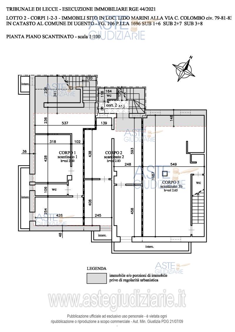
Vendita all'asta Senza incanto, con gara telematica asincrona - LOTTO 2: Corpo 2 - Piena proprietà per la quota di 1000/1000 di Locale Commerciale, sito in Ugento alla Via Cristoforo Colombo, n. 81. Posto al piano terra ed S. 1 sviluppa una superficie reale lorda di 160.00 mq. Identificazione catastale: - foglio 106, particella 1696, (Catasto Fabbricati), subalterno 7, categoria C/1, classe 3. Prezzo base € 68.218,50 (offerta minima € 51.163,88). Data inizio operazioni di vendita: 16/03/2026 ore 10:00. Professionista delegato alla vendita Avv. Adele Gaetana Lagna - Email "avvadelelagna@alice.it"; Cell. 3284427677; Tel. 0836569426. Custode Giudiziario Avv. Adele Gaetana Lagna - Email "avvadelelagna@alice.it"; Cell. 3284427677; Tel. 0836569426. Rif. Tribunale di Lecce - Esecuzione immobiliare post legge 80 n. 44/2021

Superficie 160,00 mq
Vani
Bagni
Piano 0

Tipologia di vendita Giudiziaria
Modalità di vendita Asincrona telematica
Termine presentazione offerte 01/01/1900 ore 00:00
Data e ora inizio gara 16/03/2026 ore 10:00
Codice ID astegiudiziarie.it 4343285
160,00
0
€ 68.219

Ti interessa questa vendita?

north_east

Clicca qui per essere indirizzato alla scheda sul sito di provenienza

Bene di astegiudiziarie.it