highlight_off
Riferimento annuncio 239365 info

Negozio Via Italo Svevo 14 - 16, 34100 Trieste (TS)

0
€ 19.293
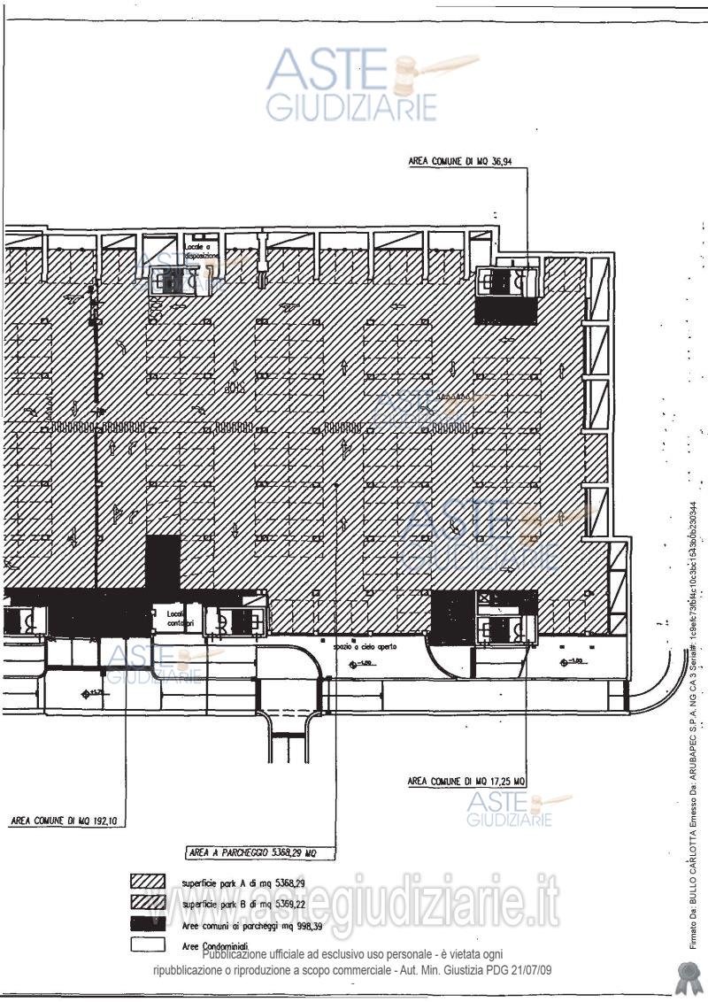
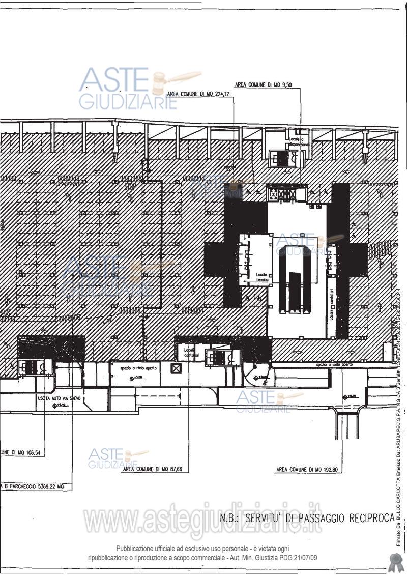
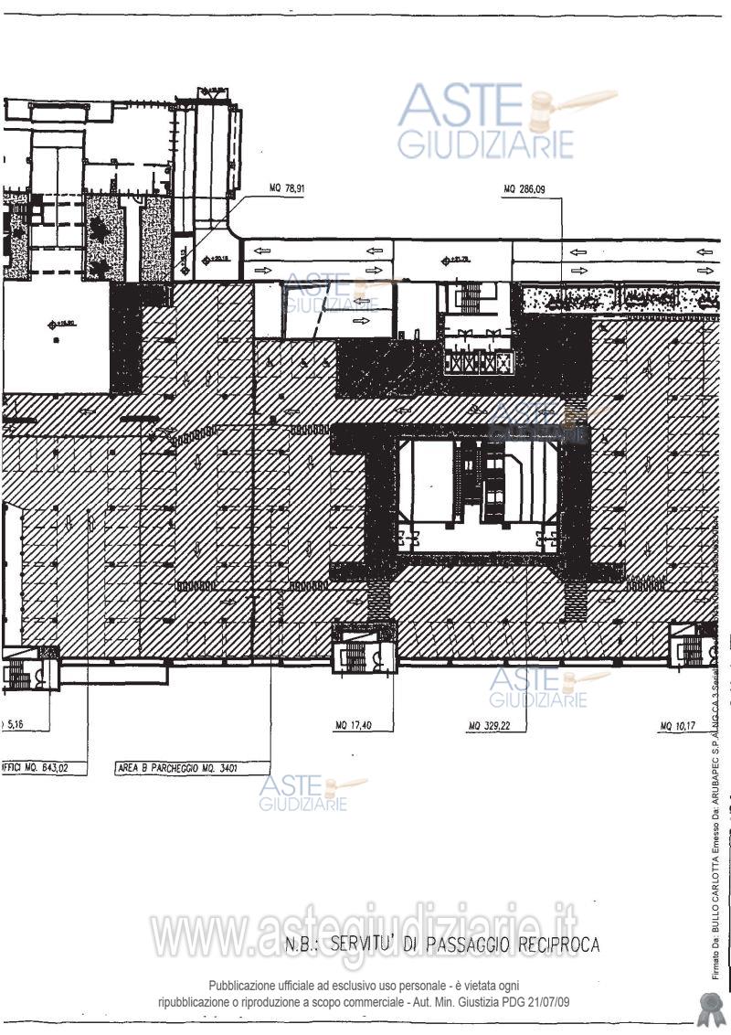
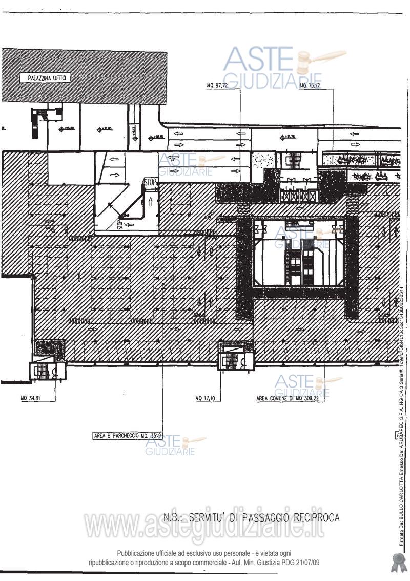
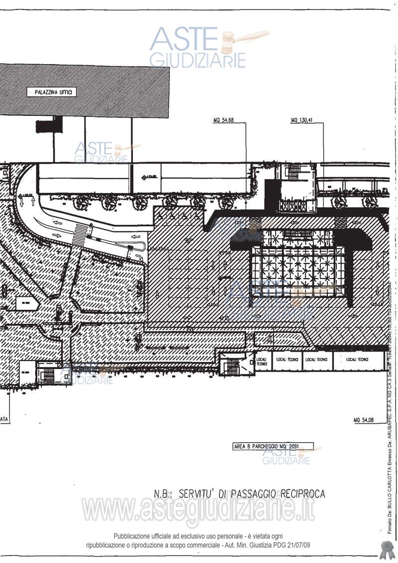
Vendita all'asta Senza incanto, con gara telematica sincrona mista - LOTTO UNICO: Locale a uso commerciale di superficie lorda mq 255 e relative pertinenze, sito all'interno del Centro commerciale polivalente denominato . Prezzo base € 19.292,87 (offerta minima € 14.469,65). Data vendita 06/02/2026 ore 13:00. Professionista delegato alla vendita Dott. Stefano Gropaiz - Email "gropaiz@stspartners.it"; Cell. 3357548525; Tel. 0400642870. Custode Giudiziario Dott. Stefano Gropaiz - Email "gropaiz@stspartners.it"; Cell. 3357548525; Tel. 0400642870. Rif. Tribunale di Trieste - Esecuzione immobiliare post legge 80 n. 184/2017

Superficie mq
Vani
Bagni
Piano 0

Tipologia di vendita Giudiziaria
Modalità di vendita Sincrona mista
Termine presentazione offerte 05/02/2026 ore 12:00
Data e ora inizio gara 06/02/2026 ore 13:00
Codice ID astegiudiziarie.it 1459649
0
€ 19.293

Ti interessa questa vendita?

north_east

Clicca qui per essere indirizzato alla scheda sul sito di provenienza

Bene di astegiudiziarie.it