highlight_off
Riferimento annuncio 282601 info

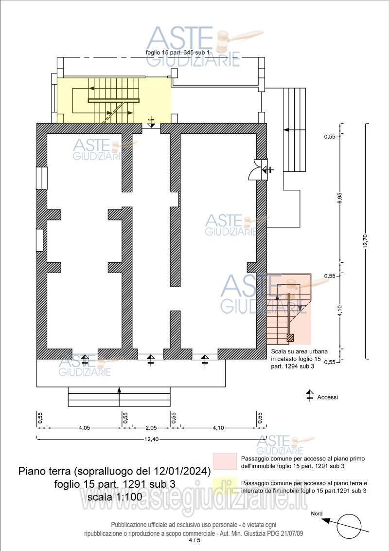
Negozio Via Cavour, 53, 67059 Trasacco AQ, Italia, 67059 Trasacco (AQ)

8,00
607,00
0
€ 85.000
Vendita all'asta Senza incanto, con gara telematica asincrona - LOTTO UNICO: Negozio. Prezzo base € 85.000,00 (offerta minima € 63.750,00). Data inizio operazioni di vendita: 04/06/2026 ore 12:00. Giudice: Gabriele Gatto. Professionista delegato alla vendita: Avv. Filippo Paolini - Email "f.paolini@studiolegalepaolini.it"; Tel. 0863/21387. Custode Giudiziario: Avv. Filippo Paolini - Email "f.paolini@studiolegalepaolini.it"; Tel. 0863/21387. Rif. Tribunale di Avezzano - Espropriazione immobiliare (cartabia) n. 47/2023

Superficie 607,00 mq
Vani 8,00
Bagni
Piano 0

Tipologia di vendita Giudiziaria
Modalità di vendita Asincrona telematica
Termine presentazione offerte 01/01/1900 ore 00:00
Data e ora inizio gara 04/06/2026 ore 12:00
Codice ID astegiudiziarie.it 4310439
8,00
607,00
0
€ 85.000

Ti interessa questa vendita?

north_east

Clicca qui per essere indirizzato alla scheda sul sito di provenienza

Bene di astegiudiziarie.it