highlight_off
Riferimento annuncio 321704 info

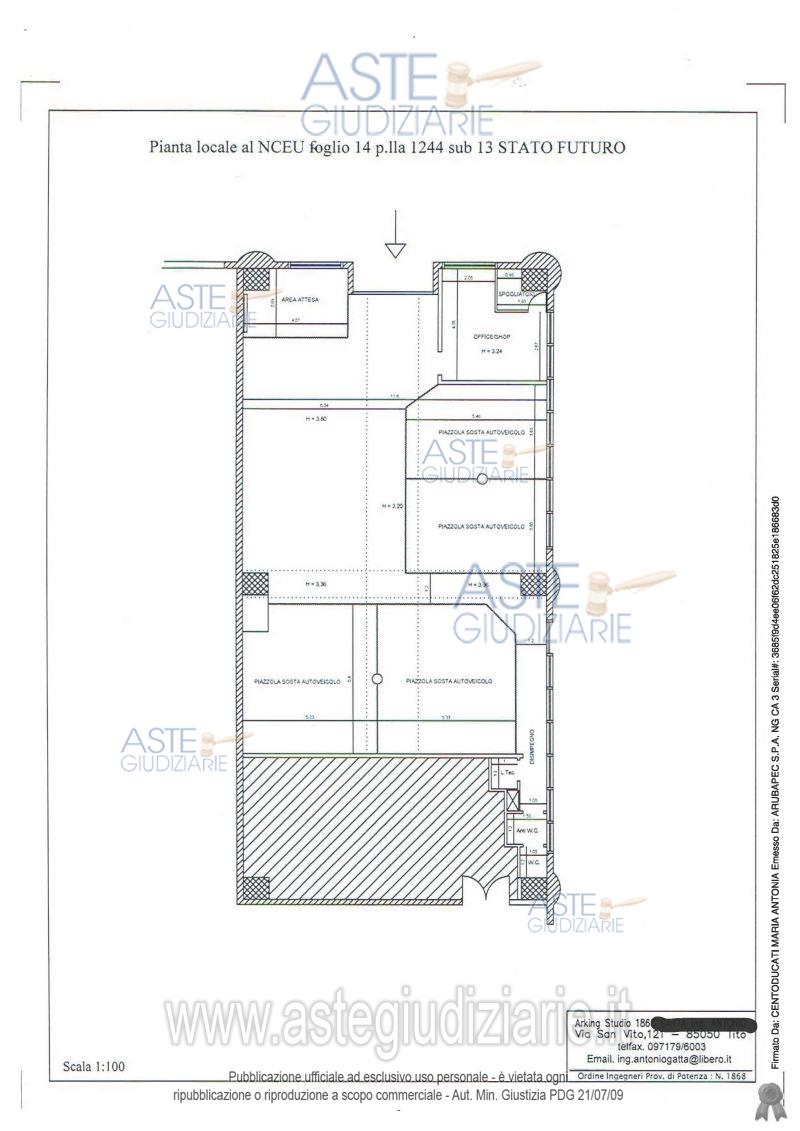
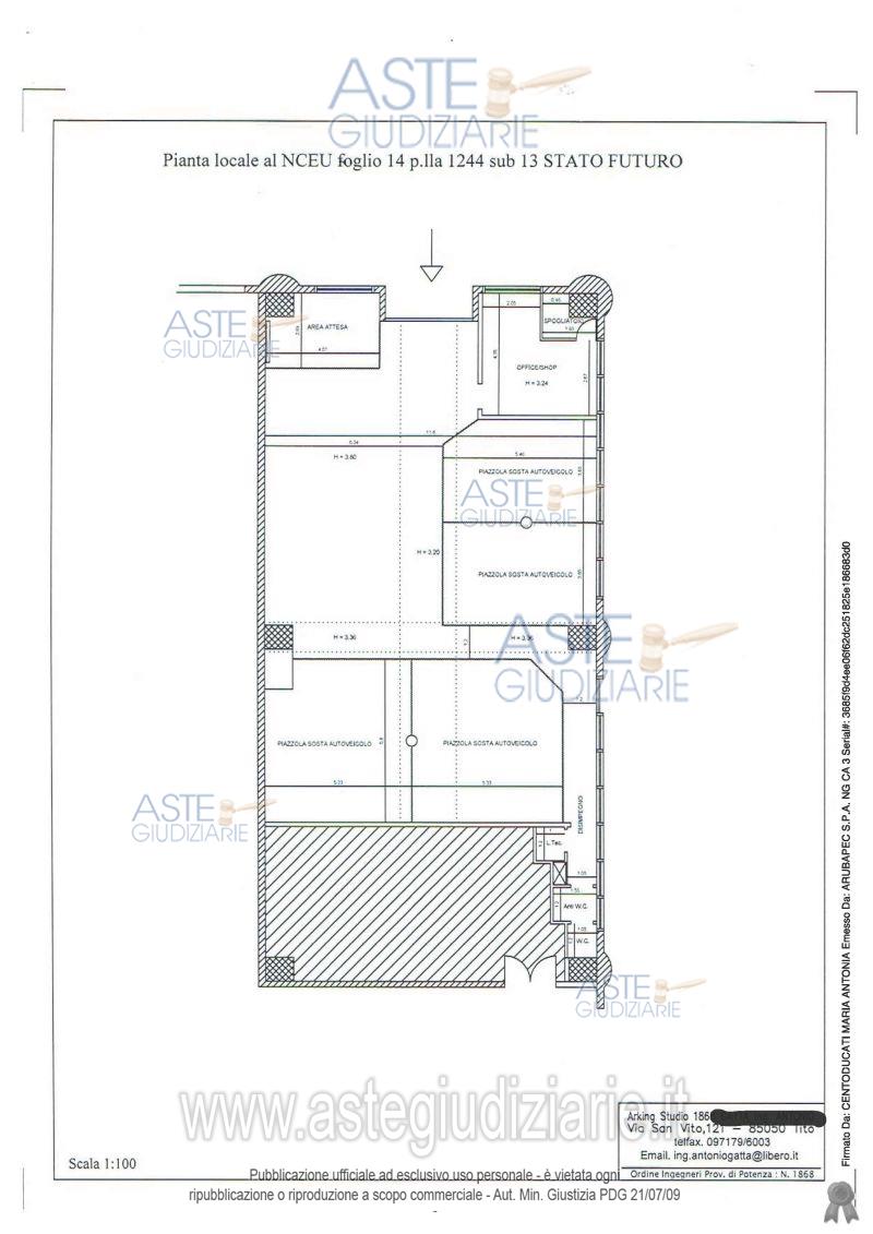
Negozio c.da Santa Loja, 85050 Tito (PZ)

220,00
0
€ 139.500
Vendita all'asta Senza incanto, con gara telematica asincrona - LOTTO 3: piena ed intera proprietà (1/1) di un locale commerciale di circa 220 mq., situato al piano seminterrato di un fabbricato adibito ad attività commerciale situato alla c.da Santa Loja del comune di TITO (PZ); . Prezzo base € 139.500,00 (offerta minima € 104.625,00). Data inizio operazioni di vendita: 25/06/2026 ore 11:00. Professionista delegato alla vendita: Avv. Francesco Missanelli - Email "francescomissanelli@gmail.com"; Tel. 0971/443116. Curatore: Avv. Monica Dea De Luca - Email "avv.monicadeadeluca@gmail.com"; Tel. 0971/287426. Custode Giudiziario: Avv. Monica Dea De Luca - Email "avv.monicadeadeluca@gmail.com"; Tel. 0971/287426. Rif. Tribunale di Potenza - Esecuzione immobiliare post legge 80 n. 19/2021

Superficie 220,00 mq
Vani
Bagni
Piano 0

Tipologia di vendita Giudiziaria
Modalità di vendita Asincrona telematica
Termine presentazione offerte 01/01/1900 ore 00:00
Data e ora inizio gara 25/06/2026 ore 11:00
Codice ID astegiudiziarie.it 4341477
220,00
0
€ 139.500

Ti interessa questa vendita?

north_east

Clicca qui per essere indirizzato alla scheda sul sito di provenienza

Bene di astegiudiziarie.it