highlight_off
Riferimento annuncio 321599 info

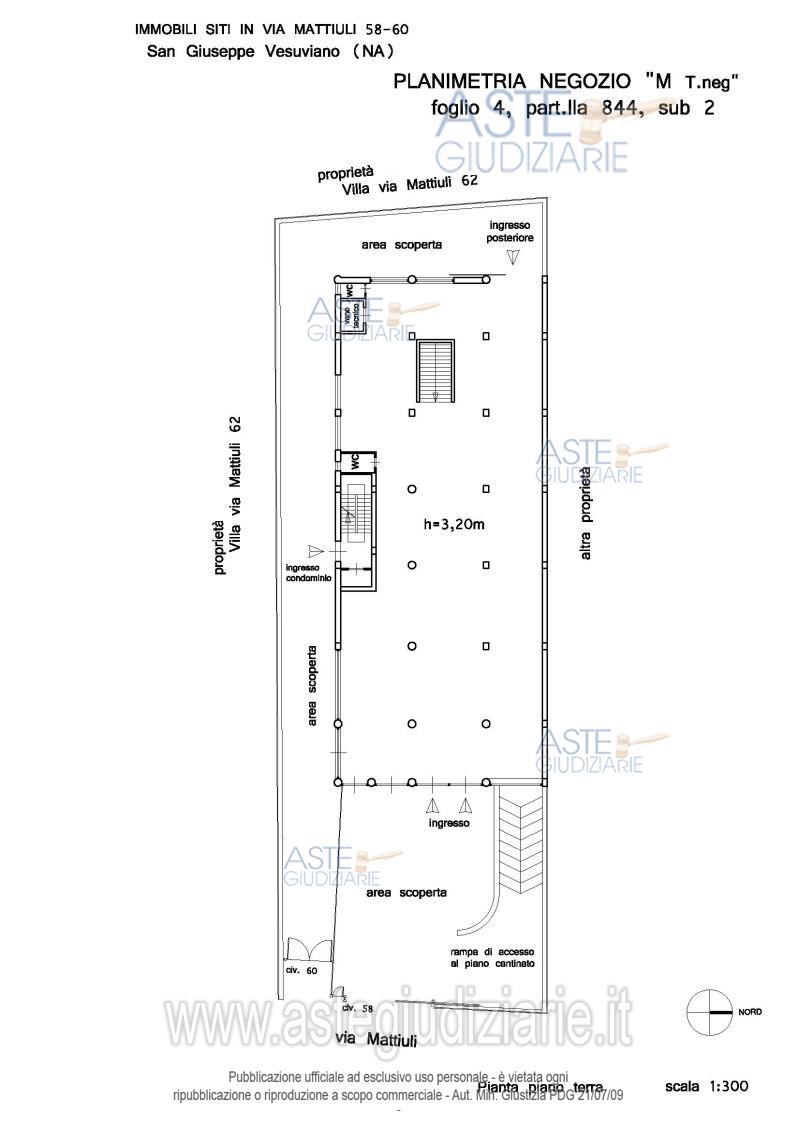
Negozio Via Mattiuli, 58/60, 80047 San Giuseppe NA, Italia, 80047 San Giuseppe Vesuviano (NA)

610,00
0
€ 556.420
Vendita all'asta Senza incanto - LOTTO 16: Piena proprietà di negozio al piano terra di mq. 610. Prezzo base € 556.420,00 (offerta minima € 417.315,00). Data vendita 03/02/2026 ore 16:00. Giudice Dott. Loredana Ferrara. Curatore Dott. Mario Botta - Email "m.botta@bottacommercialisti.it"; Cell. 3937764644; Tel. 0815628621. Rif. Tribunale di Napoli - Fallimentare (nuovo rito) n. 36/2011

Superficie 610,00 mq
Vani
Bagni
Piano 0

Tipologia di vendita Giudiziaria
Modalità di vendita Presso il venditore
Termine presentazione offerte 01/01/1900 ore 00:00
Data e ora inizio gara 03/02/2026 ore 16:00
Codice ID astegiudiziarie.it 4341031
610,00
0
€ 556.420

Ti interessa questa vendita?

north_east

Clicca qui per essere indirizzato alla scheda sul sito di provenienza

Bene di astegiudiziarie.it