highlight_off
Riferimento annuncio 304192 info

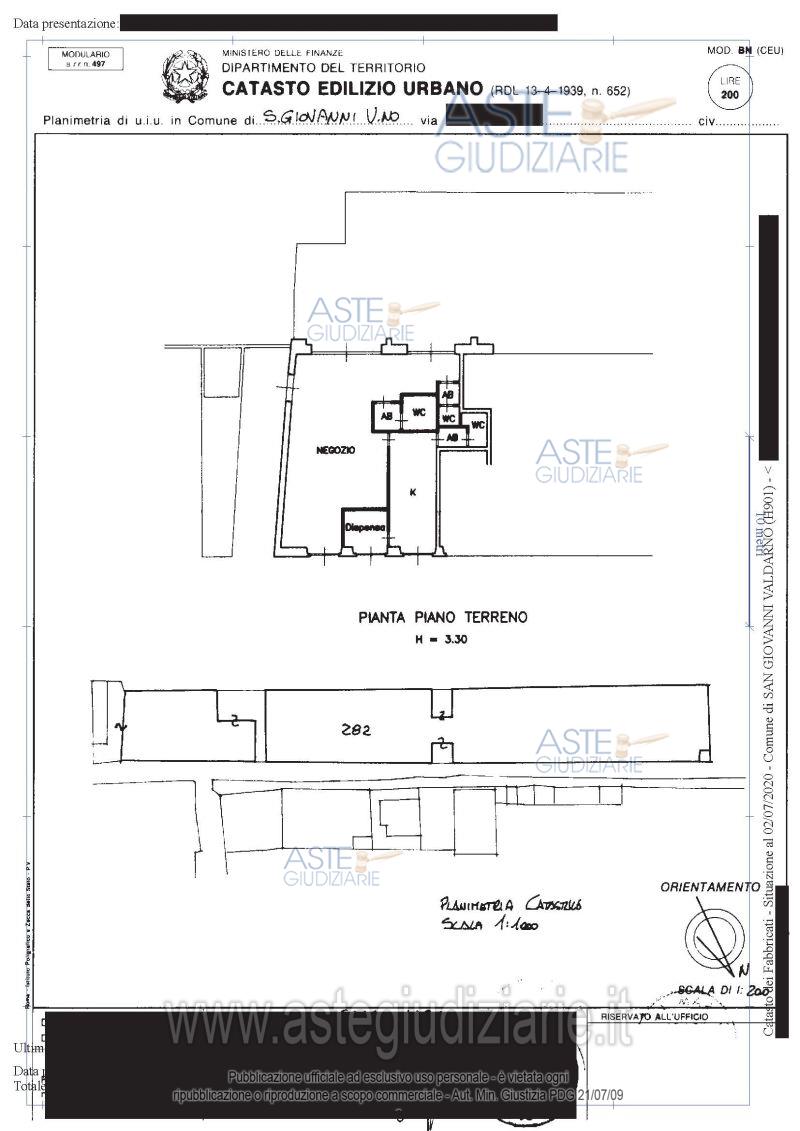
Negozio Via Mannozzi, 6, 52027 San Giovanni Valdarno AR, Italia, 52027 San Giovanni Valdarno (AR)

72,00
0
€ 124.000
Vendita all'asta Senza incanto, con gara telematica sincrona mista - LOTTO 1: Unità immobiliare ad uso commerciale (al tempo adibita a bar ristorante), posta al piano terreno di un fabbricato polivalente di maggiore consistenza ubicato nel Comune di San Giovanni Valdarno (AR) alla Via Mannozzi n. 6.L’u.i. è dislocata su un unico piano ed è composta da un locale bar/sala ristorante, cucina, dispensa, n. 3 antibagni e n. 3 locali w.c., con accesso da più lati. Prezzo base € 124.000,00 (offerta minima € 93.000,00). Data vendita 04/12/2025 ore 13:00. Giudice Andrea Turturro. Professionista delegato alla vendita Not. Piero Molinari - Email "pmolinari@notariato.it"; Tel. 055980977. Custode Giudiziario Avv. Istituto Vendite Giudiziarie Arezzo-Siena - Email "visite.ivg@gmail.com"; Cell. 3397337017. Rif. Tribunale di Arezzo - Esecuzione immobiliare post legge 80 n. 4/2020

Superficie 72,00 mq
Vani
Bagni
Piano 0

Tipologia di vendita Giudiziaria
Modalità di vendita Sincrona mista
Termine presentazione offerte 03/12/2025 ore 13:00
Data e ora inizio gara 04/12/2025 ore 13:00
Codice ID astegiudiziarie.it 4327184
72,00
0
€ 124.000

Ti interessa questa vendita?

north_east

Clicca qui per essere indirizzato alla scheda sul sito di provenienza

Bene di astegiudiziarie.it