highlight_off
Riferimento annuncio 310354 info

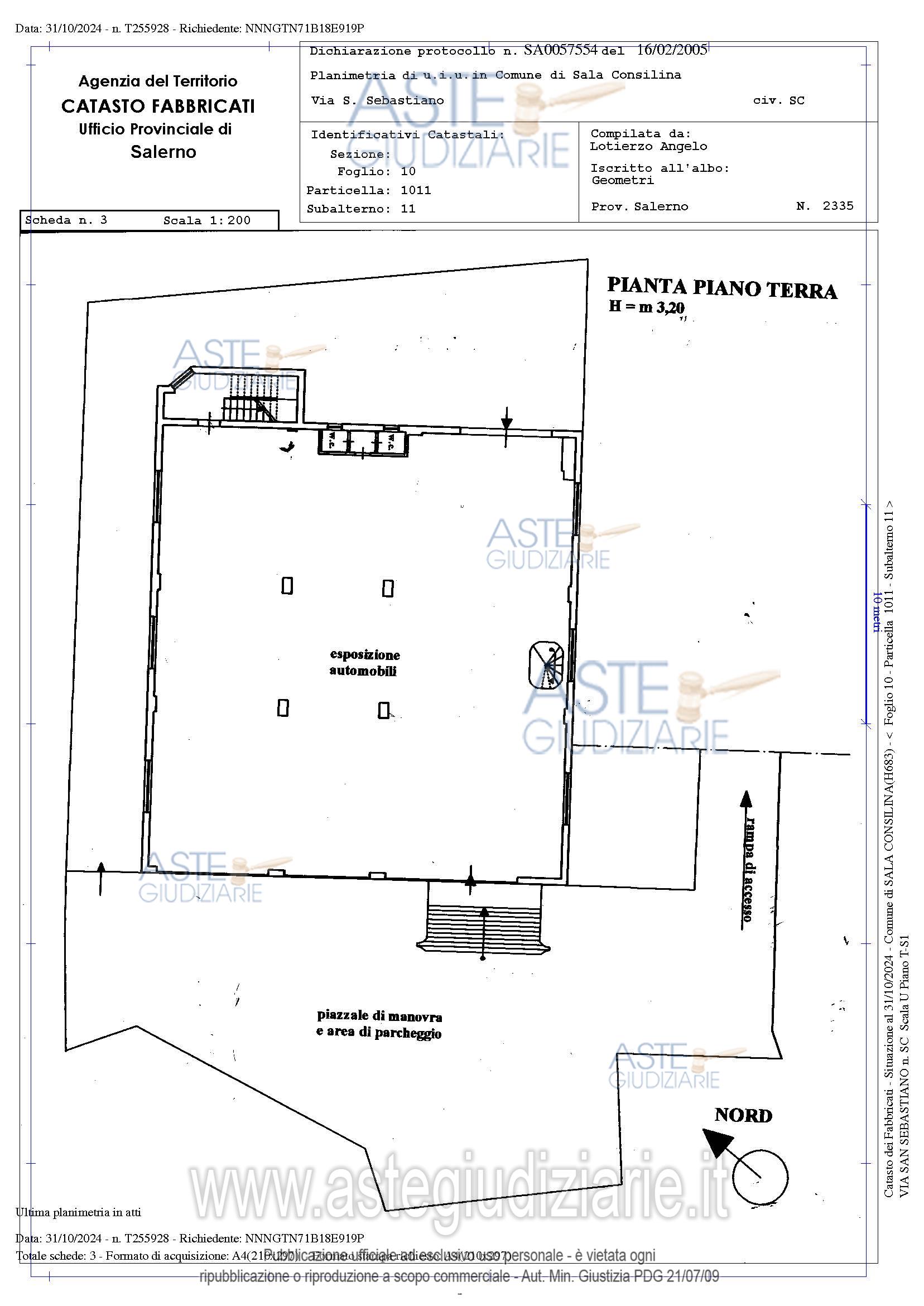
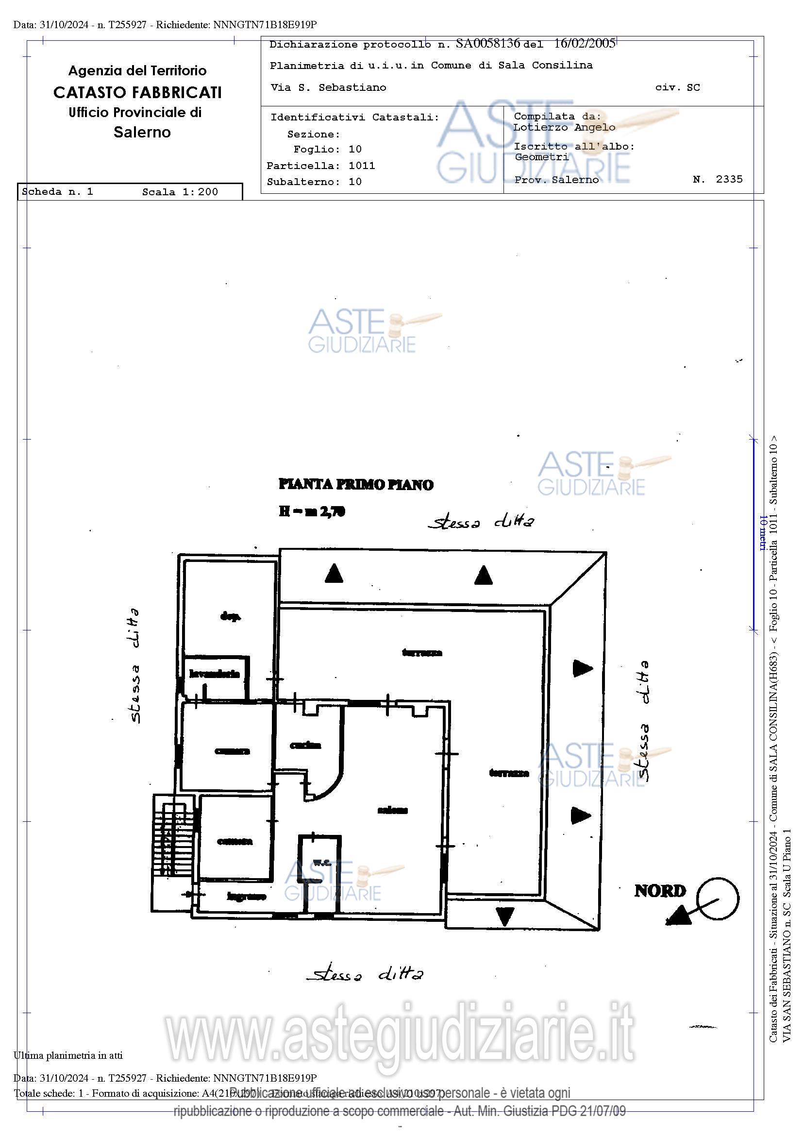
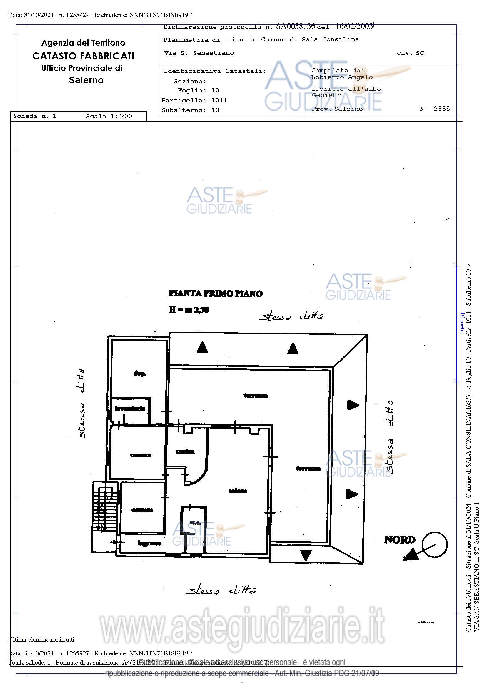
Negozio Via San Sebastiano, 84036 Sala Consilina (SA)

2357,44
0
€ 486.065
Vendita all'asta Senza incanto, con gara telematica asincrona - LOTTO 1: Locali commerciali. Prezzo base € 486.064,55 (offerta minima € 364.548,41). Data inizio operazioni di vendita: 28/07/2026 ore 18:00. Professionista delegato alla vendita: Avv. Igino Cappelli - Email "info@avvocatoiginocappelli.it". Custode Giudiziario: Dott. Giampiero Petracca - Email "studio.petracca@tiscali.it"; Cell. 380/3496331. Rif. Tribunale di Lagonegro - Esecuzione immobiliare post legge 80 n. 86/2013

Superficie 2357,44 mq
Vani
Bagni
Piano 0

Tipologia di vendita Giudiziaria
Modalità di vendita Asincrona telematica
Termine presentazione offerte 27/07/2026 ore 13:00
Data e ora inizio gara 28/07/2026 ore 18:00
Codice ID astegiudiziarie.it 4332056
2357,44
0
€ 486.065

Ti interessa questa vendita?

north_east

Clicca qui per essere indirizzato alla scheda sul sito di provenienza

Bene di astegiudiziarie.it