highlight_off
Riferimento annuncio 298819 info

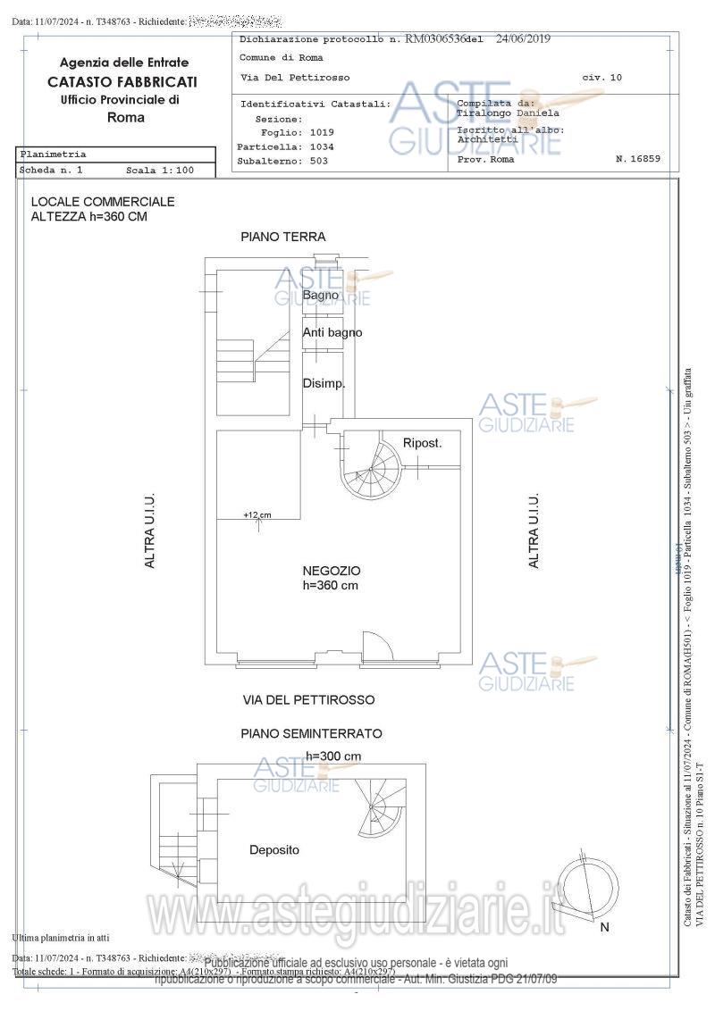
Negozio Via del Pettirosso, 10, 00169 Roma RM, Italia, 00100 Roma (RM)

1,00
58,00
1
0
€ 58.880
Vendita all'asta Senza incanto, con gara telematica asincrona - LOTTO UNICO: Quota pari a 100 / 100 del diritto di intera proprietà di locale ad uso negozio con annesso sottostante magazzino / deposito, sito in Roma alla via del Pettirosso n. 10, piano T - S1, identificato al Catasto Fabbricati del Comune di Roma al foglio n. 1019 p.lla 150 sub 502 graffato al foglio 1019 p.lla 1034 sub 503, Zona censuaria 6, categoria C/1, classe 8, piano S01-TE, consistenza di mq. 58, r.c. Euro 1.401,87. Prezzo base € 58.880,00 (offerta minima € 44.160,00). Data inizio operazioni di vendita: 11/02/2026 ore 10:00. Giudice Dott. Giuseppe Lauropoli. Professionista delegato alla vendita Dott. Gabriele Felici. Custode Giudiziario I.V.G Di Roma S.R.L. Istituto Vendite Giudiziarie - Email "pubblicita@ivgroma.it"; Tel. 06 83751500. Rif. Tribunale di Roma - Espropriazione immobiliare (cartabia) n. 1023/2023

Superficie 58,00 mq
Vani 1,00
Bagni 1
Piano 0

Tipologia di vendita Giudiziaria
Modalità di vendita Asincrona telematica
Termine presentazione offerte 01/01/1900 ore 00:00
Data e ora inizio gara 11/02/2026 ore 10:00
Codice ID astegiudiziarie.it 4322827
1,00
58,00
1
0
€ 58.880

Ti interessa questa vendita?

north_east

Clicca qui per essere indirizzato alla scheda sul sito di provenienza

Bene di astegiudiziarie.it