highlight_off
Riferimento annuncio 266392 info

Negozio C.da Santa Calcagna 30, 66020 Rocca San Giovanni (CH)

1562,00
0
€ 540.776
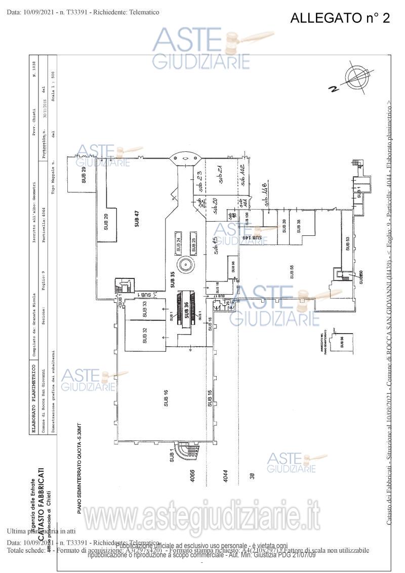
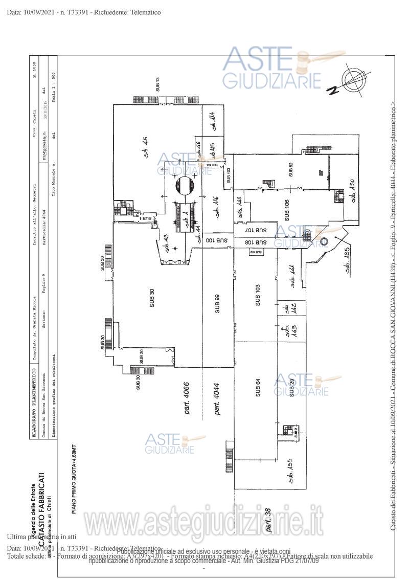
Vendita all'asta Senza incanto, con gara telematica asincrona - LOTTO 1: Piena proprietà, all'interno di Parco Commerciale in C.da Santa Calcagna n° 30 di Rocca San Giovanni (Ch), al piano S1, superficie netta di 1.484,8 mq e lorda di 1.562 mq, in C.F. al Fgl. 9, P.lla 4044 Sub 15, cat. C/1 e Sub 16 cat. C/1, P.lla 4066 Sub 16 cat. D/8. Prezzo base € 540.776,12 (offerta minima € 405.582,09). Data inizio operazioni di vendita: 12/11/2025 ore 11:00. Professionista delegato alla vendita Dott. Andrea Colantonio. Custode Giudiziario Antonello Ferroni - Email "ivglanciano@gmail.com". Rif. Tribunale di Lanciano - Esecuzione immobiliare post legge 80 n. 2/2021

Superficie 1562,00 mq
Vani
Bagni
Piano 0

Tipologia di vendita Giudiziaria
Modalità di vendita Asincrona telematica
Termine presentazione offerte 01/01/1900 ore 00:00
Data e ora inizio gara 12/11/2025 ore 11:00
Codice ID astegiudiziarie.it 4300004
1562,00
0
€ 540.776

Ti interessa questa vendita?

north_east

Clicca qui per essere indirizzato alla scheda sul sito di provenienza

Bene di astegiudiziarie.it