highlight_off
Riferimento annuncio 226478 info

Negozio via Comunaletto 23, 02100 Rieti (RI)

0
€ 230.305
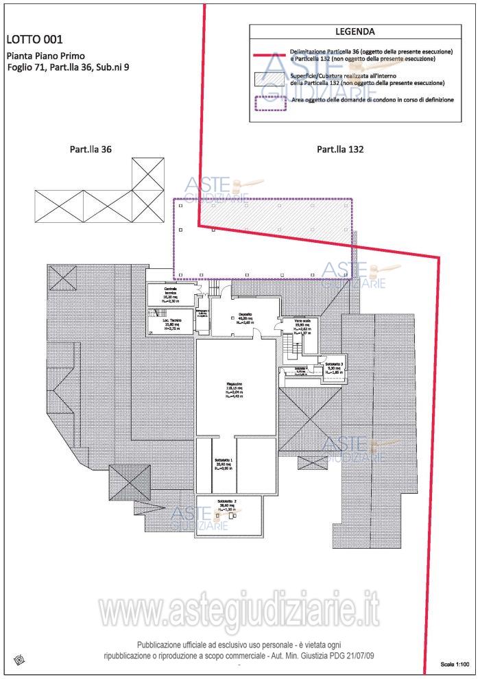
Vendita all'asta Senza incanto, con gara telematica asincrona - LOTTO UNICO: Piena proprietà quota 1000/1000 unità immobiliare composta da locale Commerciale adibito a ristorante/locale banchettistica con annessa corte pertinenziale comune, da separare a cura dell'acquirente dalla porzione immobiliare non venduta come da relazione integrativa. Prezzo base € 230.305,23 (offerta minima € 172.728,92). Data inizio operazioni di vendita: 08/10/2025 ore 13:30. Giudice Dott. Barbara Vicario. Professionista delegato alla vendita Avv. Simona Alfredini - Email "simona.alfredini@gmail.com"; Cell. 3281692203. Custode Giudiziario Avv. Simona Alfredini - Email "simona.alfredini@gmail.com"; Cell. 3281692203. Rif. Tribunale di Rieti - Esecuzione immobiliare post legge 80 n. 92/2019

Superficie mq
Vani
Bagni
Piano 0

Tipologia di vendita Giudiziaria
Modalità di vendita Asincrona telematica
Termine presentazione offerte 01/01/1900 ore 00:00
Data e ora inizio gara 08/10/2025 ore 13:30
Codice ID astegiudiziarie.it 4272309
0
€ 230.305

Ti interessa questa vendita?

north_east

Clicca qui per essere indirizzato alla scheda sul sito di provenienza

Bene di astegiudiziarie.it