highlight_off
Riferimento annuncio 79340 info

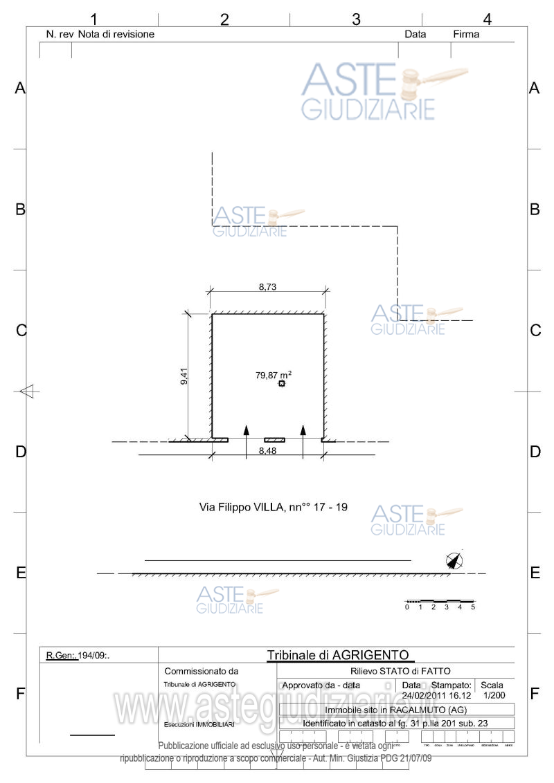
Negozio Via Filippo Villa, 17, 92020 Racalmuto AG, Italia, 92020 Racalmuto (AG)

84,00
0
€ 9.495
Vendita all'asta Senza incanto, con gara telematica sincrona mista - LOTTO 005: Lotto 5: Piena proprietà per la quota di 1000/1000 di immobile ad uso “negozio” sito in Racalmuto Via Filippo Villa n. 17, piano terra, identificato in N.C.E.U. al foglio 31 particella 201 sub 23. Occupato. Prezzo base € 9.495,00 (offerta minima € 7.121,25). Data vendita 02/07/2026 ore 16:00. Giudice: Vitalba Pipitone. Professionista delegato alla vendita: Avv. Calogero Orlando - Email "avv.lillorlando@virgilio.it". Custode Giudiziario: Avv. Calogero Orlando - Email "avv.lillorlando@virgilio.it". Rif. Tribunale di Agrigento - Esecuzione immobiliare post legge 80 n. 194/2009

Superficie 84,00 mq
Vani
Bagni
Piano 0

Tipologia di vendita Giudiziaria
Modalità di vendita Sincrona mista
Termine presentazione offerte 01/01/1900 ore 00:00
Data e ora inizio gara 02/07/2026 ore 16:00
Codice ID astegiudiziarie.it 4198849
84,00
0
€ 9.495

Ti interessa questa vendita?

north_east

Clicca qui per essere indirizzato alla scheda sul sito di provenienza

Bene di astegiudiziarie.it