highlight_off
Riferimento annuncio 331927 info

Negozio Via Monaco, 09045 Quartu Sant'Elena CA, Italia, 09045 Quartu Sant'Elena (CA)

3,00
138,00
2
0
€ 195.300
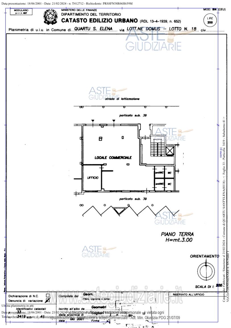
Vendita all'asta Senza incanto, con gara telematica asincrona - LOTTO 6: LOTTO 6 – quota pari a 1/1 del diritto di proprietà su Locale commerciale sito in Comune di QUARTUSANT’ELENA, via Monaco s.n., LOTTIZZAZIONE DOMUS, distinto al NCEU F. 33 part. 3419 sub. 41cat. C/1 cl. 7 piano T, consistenza mq. 139, superficie catastale mq. 138, R.C. 3.819,10, composto da vano di ingresso, due ambienti adibiti ad ufficio, disimpegno, zona lavorazione – magazzino, spogliatoio con servizio igienico e anti bagno, Occupato fino all’aggiudicazione del bene, presenti difformità sanabili. Prezzo base € 195.300,00 (offerta minima € 146.475,00). Data inizio operazioni di vendita: 24/06/2026 ore 16:00. Professionista delegato alla vendita: Dott. Elena Loddo - Email "studioelenaloddo@gmail.com"; Tel. 070/7967825. Custode Giudiziario: Ivg Sardegna Srl - Email "ivg.visiteimmobili@tiscali.it"; Tel. 070/2299036. Rif. Tribunale di Cagliari - Esecuzione immobiliare post legge 80 n. 15/2018

Superficie 138,00 mq
Vani 3,00
Bagni 2
Piano 0

Tipologia di vendita Giudiziaria
Modalità di vendita Asincrona telematica
Termine presentazione offerte 01/01/1900 ore 00:00
Data e ora inizio gara 24/06/2026 ore 16:00
Codice ID astegiudiziarie.it 4349612
3,00
138,00
2
0
€ 195.300

Ti interessa questa vendita?

north_east

Clicca qui per essere indirizzato alla scheda sul sito di provenienza

Bene di astegiudiziarie.it