highlight_off
Riferimento annuncio 227980 info

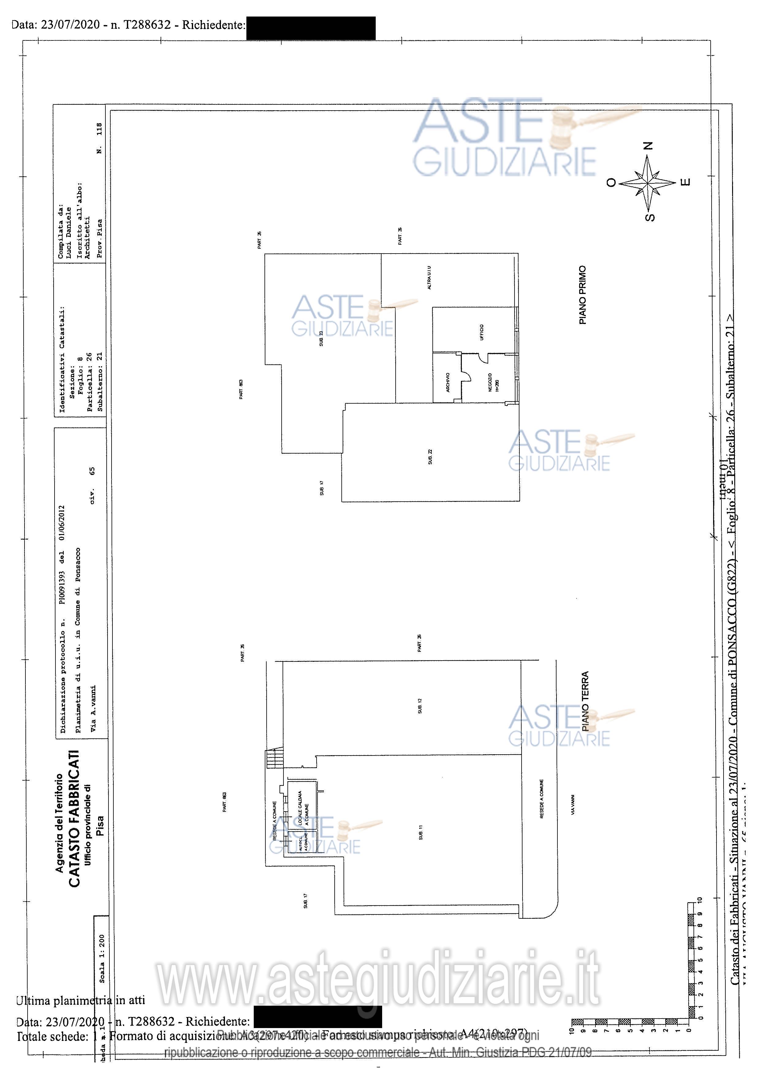
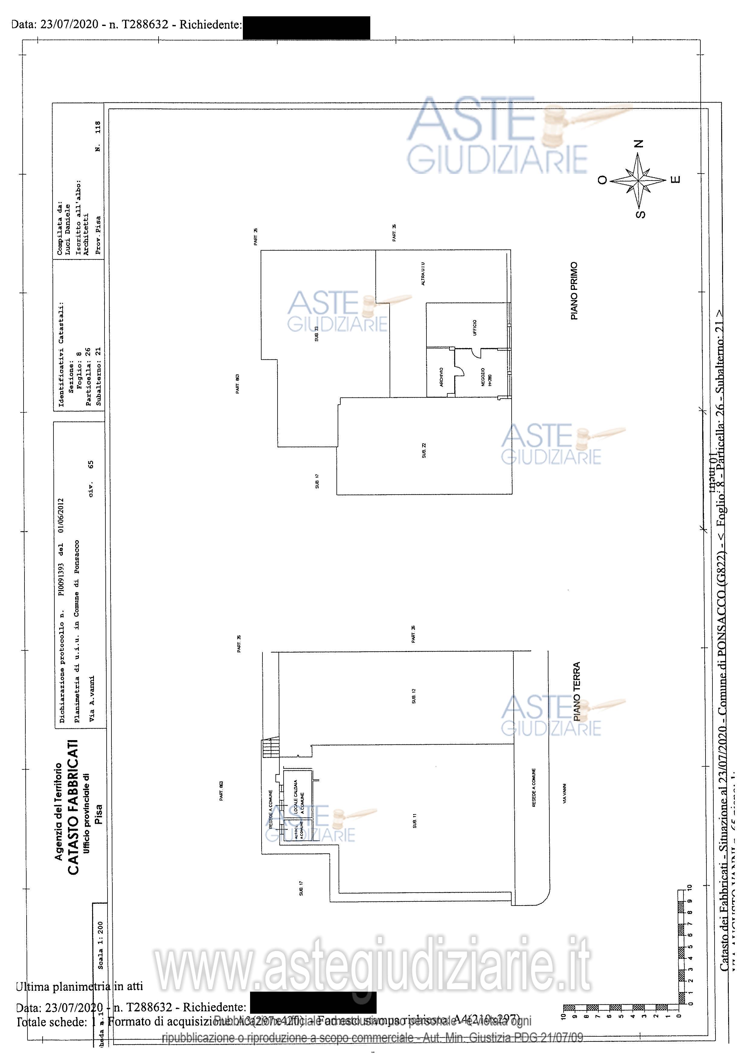
Negozio Via Augusto Vanni, 65, 56038 Ponsacco PI, Italia, 56038 Ponsacco (PI)

318,00
0
€ 122.500
Vendita all'asta Senza incanto, con gara telematica sincrona mista - LOTTO UNICO: Negozio mq.57 - magazzino mq.121 - magazzino mq.140. Prezzo base € 122.500,00 (offerta minima € 91.875,00). Data vendita 22/01/2026 ore 15:10. Professionista delegato alla vendita Avv. Federica Geri - Email "federica@barsottieustachi.it"; Cell. 3338046692; Tel. 050540234. Custode Giudiziario Cosimo Erriquez - Email "prenotazionipisa@astagiudiziaria.com"; Cell. 3468748140; Tel. 050554790. Rif. Tribunale di Pisa - Esecuzione immobiliare post legge 80 n. 42/2020

Superficie 318,00 mq
Vani
Bagni
Piano 0

Tipologia di vendita Giudiziaria
Modalità di vendita Sincrona mista
Termine presentazione offerte 01/01/1900 ore 00:00
Data e ora inizio gara 22/01/2026 ore 15:10
Codice ID astegiudiziarie.it 4273603
318,00
0
€ 122.500

Ti interessa questa vendita?

north_east

Clicca qui per essere indirizzato alla scheda sul sito di provenienza

Bene di astegiudiziarie.it