highlight_off
Riferimento annuncio 322207 info

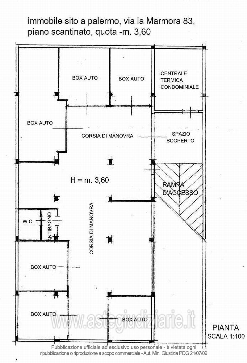
Negozio Via Alessandro La Marmora, 83/A e 83/B, 90100 Palermo (PA)

224,00
0
€ 358.700
Vendita all'asta Senza incanto, con gara telematica sincrona mista - LOTTO 2: Piena proprietà di un locale sito nel Comune di Palermo, Via Alessandro La Marmora n. 83/a e n. 83/b, piano terra, identificato in Catasto Fabbricati del detto Comune al foglio n. 31, particella 355 sub 7, zona censuaria 3, categoria C/1, classe 6, consistenza 216 mq., superficie totale 224 mq., rendita € 5.901,24. Via Alessandro La Marmora n. 83/A-83/B, piano T. Prezzo base € 358.700,00 (offerta minima € 269.025,00). Data vendita 10/07/2026 ore 11:00. Giudice: Grazia Giuffrida. Professionista delegato alla vendita: Avv. Marina Vajana - Email "avvmvajana.esecuzioni@gmail.com"; Tel. 091/300764. Custode Giudiziario: Avv. Marina Vajana - Email "avvmvajana.esecuzioni@gmail.com"; Tel. 091/300764. Rif. Tribunale di Palermo - Esecuzione immobiliare post legge 80 n. 454/2006

Superficie 224,00 mq
Vani
Bagni
Piano 0

Tipologia di vendita Giudiziaria
Modalità di vendita Sincrona mista
Termine presentazione offerte 09/07/2026 ore 13:00
Data e ora inizio gara 10/07/2026 ore 11:00
Codice ID astegiudiziarie.it 222126
224,00
0
€ 358.700

Ti interessa questa vendita?

north_east

Clicca qui per essere indirizzato alla scheda sul sito di provenienza

Bene di astegiudiziarie.it