Riferimento annuncio 303724
        
    
    Negozio Capo Ceraso Condominio Li Cuncheddi, 07026 Olbia (SS)
                
                0
            
        
€ 472.770    
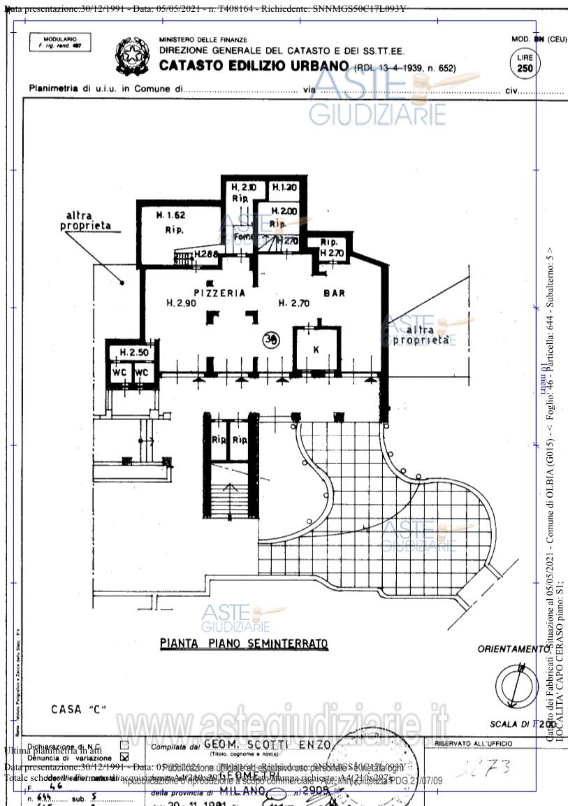
                Vendita all'asta Senza incanto - LOTTO 1:  diritto di proprietà per la quota di 1/1 del locale a destinazione Pizzeria e Bar, piano seminterrato, sito in Comune di Olbia loc. Capo Ceraso Condominio Li Cuncheddi, superficie commerciale mq 199,95 oltre a porticato in muratura sup. mq 61,00 e area frontestante in larga parte coperta da porticato in legno e canne, sup. mq 160, area e porticato parti comuni, porticato di competenza della pizzeria. Prezzo base € 472.770,00 (offerta minima € 354.577,50). Data vendita 18/12/2025 ore 15:30. Giudice Antonia Palombella. Professionista delegato alla vendita Avv. Tulllio Cuccaru - Email "tulliocuccaru@hotmail.it"; Tel. 079294279. Custode Giudiziario  Ivg Tempio Pausania - Email "visite.ivgtempio@gmail.com"; Cell. 079630505.  Rif. Tribunale di Tempio Pausania - Esecuzione immobiliare post legge 80 n. 127/2018
            
   
| Superficie | mq | 
|---|---|
| Vani | |
| Bagni | |
| Piano | 0 | 
| Tipologia di vendita | Giudiziaria | 
|---|---|
| Modalità di vendita | Presso il venditore | 
| Termine presentazione offerte | 01/01/1900 ore 00:00 | 
| Data e ora inizio gara | 18/12/2025 ore 15:30 | 
 
                         
                         
                         
                         
                         
                         
                         
                         
                         
                        