highlight_off
Riferimento annuncio 146814 info

Negozio Via Torino 120-122, 70016 Noicattaro (BA)

0
€ 99.470
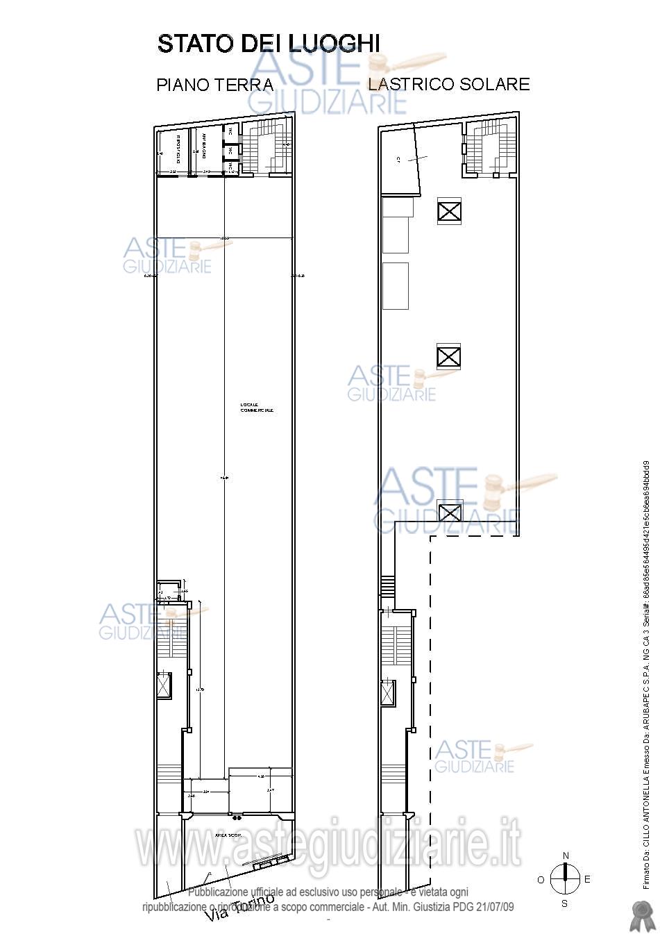
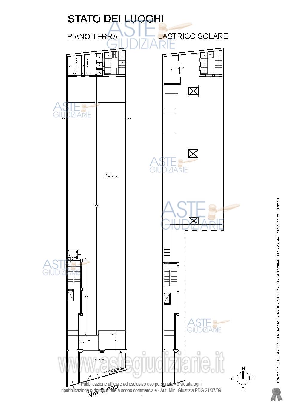
Vendita all'asta Senza incanto, con gara telematica asincrona - LOTTO UNICO: Locale commerciale al piano terra, con retrostante zona a cortile e antistante area scoperta pertinenziale nonché con sovrastante lastrico solare di esclusiva pertinenza di circa mq. 300. Prezzo base € 99.470,00 (offerta minima € 74.603,00). Data inizio operazioni di vendita: 25/09/2026 ore 17:00. Giudice: Dott. Antonio Ruffino. Professionista delegato alla vendita: Avv. Grazia Carella - Email "gra.carella@gmail.com". Custode Giudiziario: Avv. Grazia Carella - Email "gra.carella@gmail.com". Rif. Tribunale di Bari - Esecuzione immobiliare post legge 80 n. 281/2020

Superficie mq
Vani
Bagni
Piano 0

Tipologia di vendita Giudiziaria
Modalità di vendita Asincrona telematica
Termine presentazione offerte 18/09/2026 ore 12:00
Data e ora inizio gara 25/09/2026 ore 17:00
Codice ID astegiudiziarie.it 4252207
0
€ 99.470

Ti interessa questa vendita?

north_east

Clicca qui per essere indirizzato alla scheda sul sito di provenienza

Bene di astegiudiziarie.it