highlight_off
Riferimento annuncio 325261 info

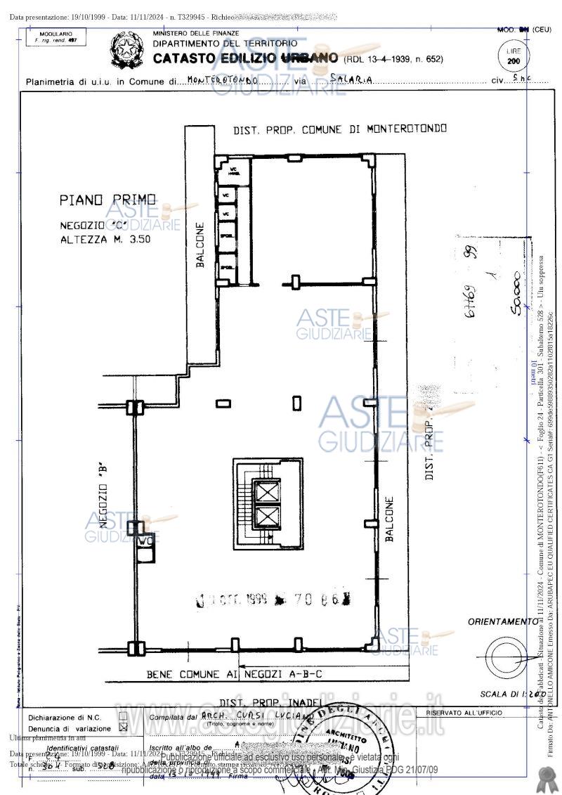
Negozio VIA MONVISO N. 2, 4, 6, 8, 10, 00015 Monterotondo (RM)

0
€ 1.320.000
Vendita all'asta Senza incanto, con gara telematica asincrona - LOTTO UNICO: Porzioni di fabbricati adibiti a negozio siti nel Comune di Monterotondo (Roma, raggiungibile da Via Monviso, asse stradale collegato alla Via Salaria (antica Strada Consolare - SS4). I numeri civici che caratterizzano gli accessi ai due beni sono i N° 4, 6 e 8, mentre i N° 2 e 10 consentono il raggiungimento dei piani superiori;Bene 1: Identificato al catasto Fabbricati - Fg. 24, Part. 301, Sub. 536 Cat. C/1;Bene 2: Identificato al catasto Fabbricati - Fg. 24, Part. 301, Sub. 537 Cat C/1. Prezzo base € 1.320.000,00 (offerta minima € 990.000,00). Data inizio operazioni di vendita: 24/03/2026 ore 14:00. Professionista delegato alla vendita Dott. Paola Saioni - Email "paolasaioni@studiosaioni.it"; Cell. 3381240300. Custode Giudiziario Ivg Di Roma - Email "pvp@visiteivgroma.it"; Tel. 0689569801. Rif. Tribunale di Tivoli - Espropriazione immobiliare (cartabia) n. 302/2024

Superficie mq
Vani
Bagni
Piano 0

Tipologia di vendita Giudiziaria
Modalità di vendita Asincrona telematica
Termine presentazione offerte 23/03/2026 ore 23:59
Data e ora inizio gara 24/03/2026 ore 14:00
Codice ID astegiudiziarie.it 4344300
0
€ 1.320.000

Ti interessa questa vendita?

north_east

Clicca qui per essere indirizzato alla scheda sul sito di provenienza

Bene di astegiudiziarie.it