highlight_off
Riferimento annuncio 302114 info

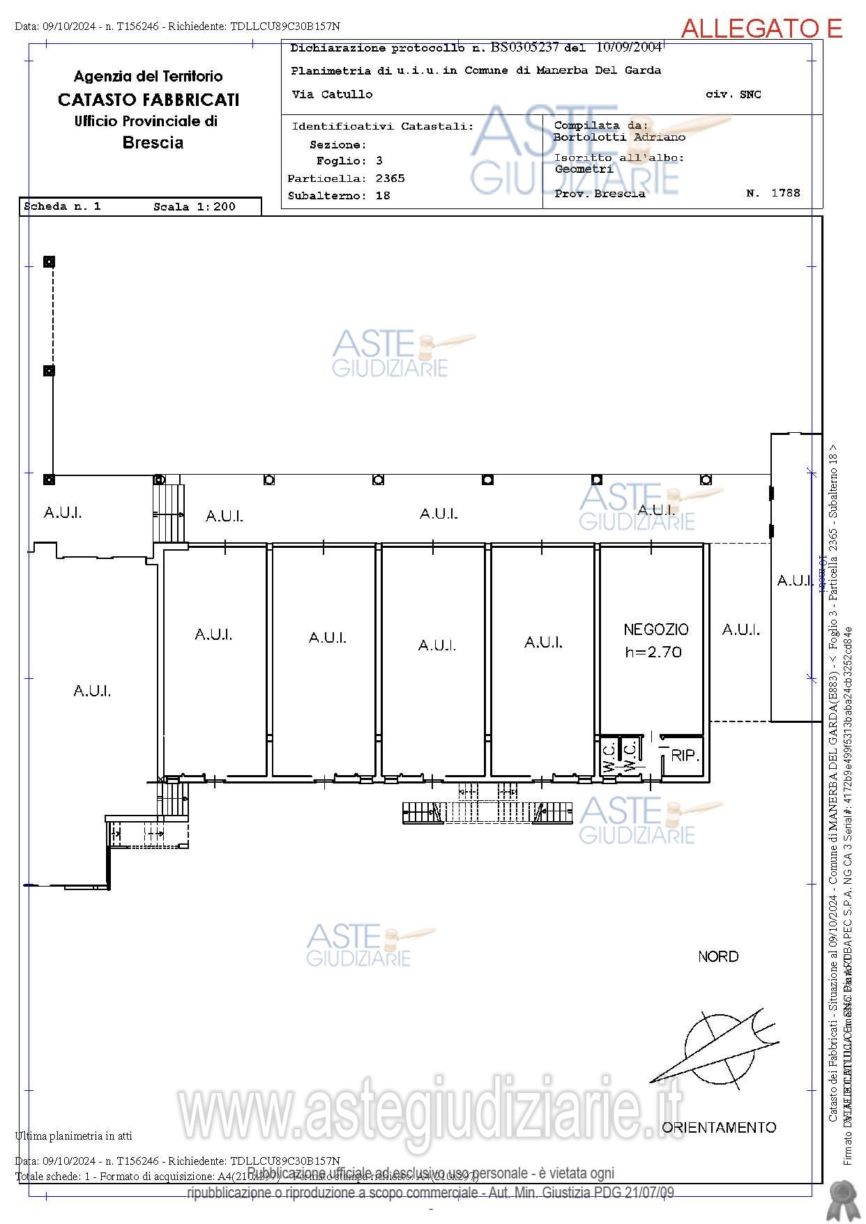
Negozio Piazza Silvia, 1, 25080 Manerba del Garda (BS)

0
€ 87.375
Vendita in attesa dell'emissione del nuovo bando d'asta. LOTTO 4: Piena proprietà di negozio al piano terra di edificio a destinazione turistica alberghiera, residenziale e commerciale. Ultimo prezzo base € 87.375,00 (offerta minima € 65.531,25). Professionista delegato alla vendita Dott. Gianluca Sanzogni - Tel. 0305780453. Custode Giudiziario Dott. Gianluca Sanzogni - Email "info.bsimmobiliare@gmail.com". Rif. Tribunale di Brescia - Espropriazione immobiliare (cartabia) n. 286/2024

Superficie mq
Vani
Bagni
Piano 0

Tipologia di vendita Giudiziaria
Modalità di vendita Asincrona telematica
Termine presentazione offerte 01/01/1900 ore 00:00
Data e ora inizio gara 10/10/2025 ore 10:30
Codice ID astegiudiziarie.it 4325466
0
€ 87.375

Ti interessa questa vendita?

north_east

Clicca qui per essere indirizzato alla scheda sul sito di provenienza

Bene di astegiudiziarie.it