highlight_off
Riferimento annuncio 299237 info

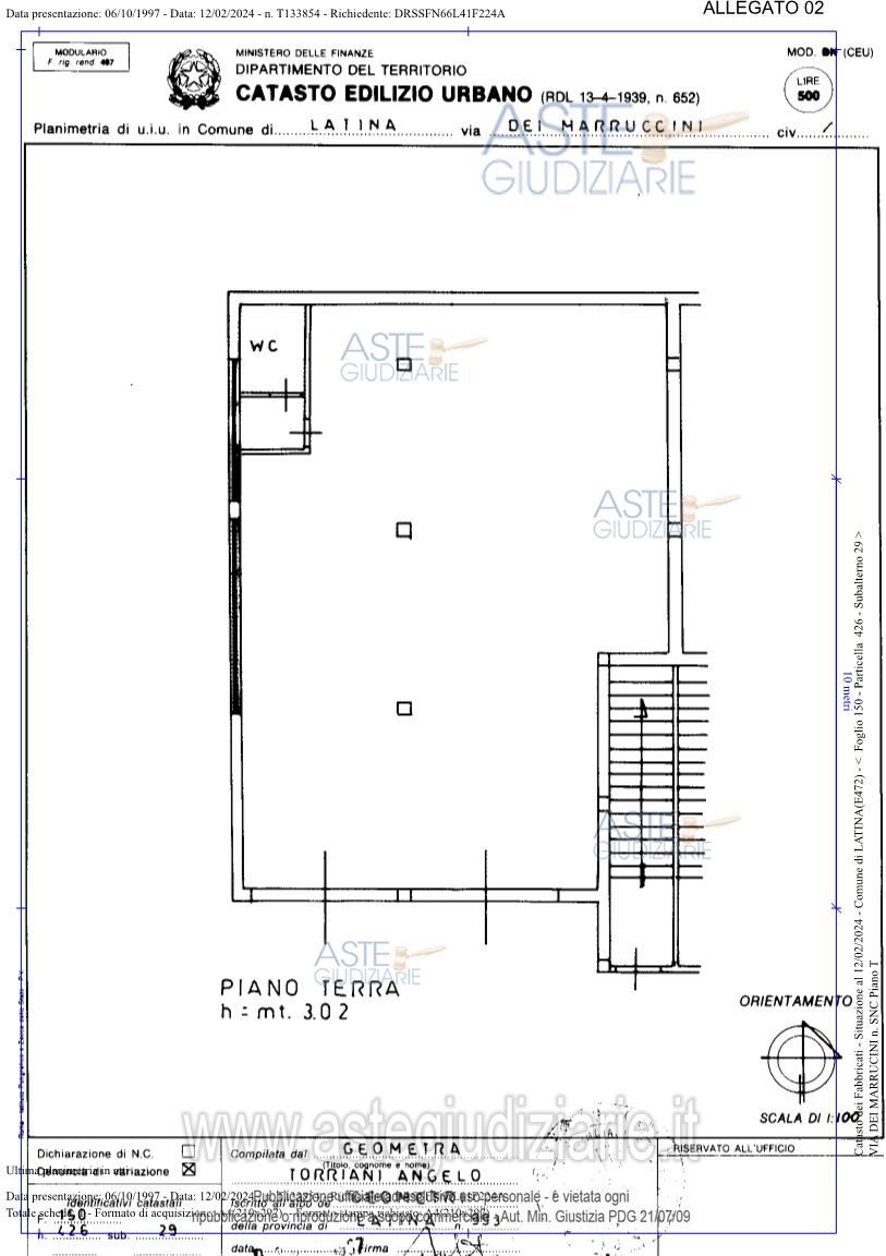
Negozio via dei Marrucini, 37/39, 04100 Latina (LT)

0
€ 104.838
Vendita all'asta Senza incanto, con gara telematica asincrona - LOTTO 1: Piena proprietà del locale commerciale ubicato in Latina, via dei Marruccini n. 37 /39 – piano T, e, precisamente: locale commerciale composto da due ambienti distinti ma comunicanti tra loro, uno destinato ad uffici e l’altro a deposito. Entrambi sono provvisti di servizi igienici e di accesso verso l’esterno. Prezzo base € 104.838,00 (offerta minima € 78.628,50). Data inizio operazioni di vendita: 13/01/2026 ore 11:00. Professionista delegato alla vendita Avv. Ioselita Susanna Trotta - Email "ioselitatrotta@libero.it"; Cell. 3487238544; Tel. 0773400003. Custode Giudiziario Avv. Ioselita Susanna Trotta - Email "ioselitatrotta@libero.it"; Cell. 3487238544; Tel. 0773400003. Rif. Tribunale di Latina - Esecuzione immobiliare post legge 80 n. 19/2023

Superficie mq
Vani
Bagni
Piano 0

Tipologia di vendita Giudiziaria
Modalità di vendita Asincrona telematica
Termine presentazione offerte 12/01/2026 ore 13:00
Data e ora inizio gara 13/01/2026 ore 11:00
Codice ID astegiudiziarie.it 4323160
0
€ 104.838

Ti interessa questa vendita?

north_east

Clicca qui per essere indirizzato alla scheda sul sito di provenienza

Bene di astegiudiziarie.it