highlight_off
Riferimento annuncio 313409 info

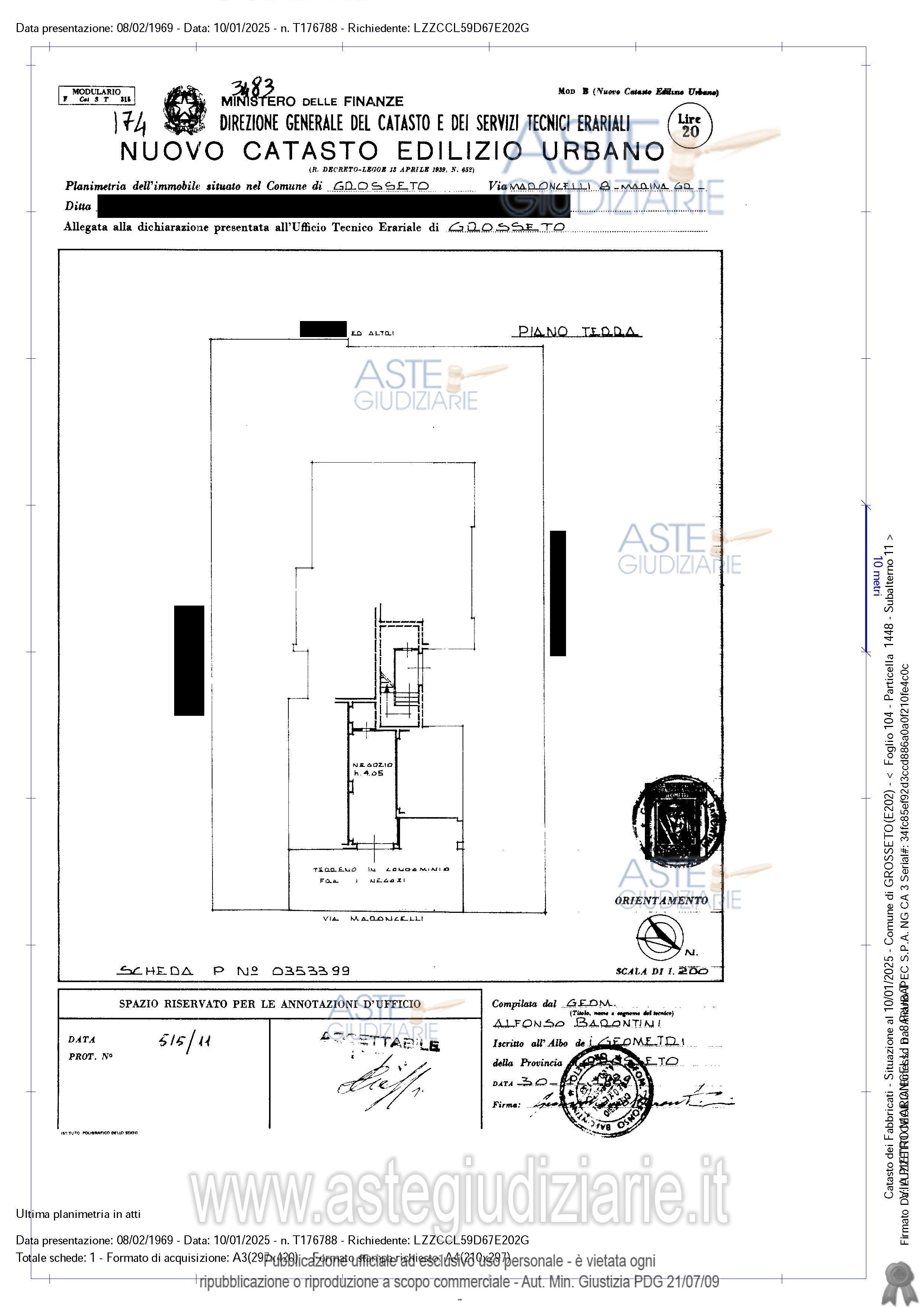
Negozio Via Pietro Maroncelli, 6, 58100 Grosseto (GR)

30,00
0
€ 97.200
Vendita all'asta Senza incanto, con gara telematica asincrona - LOTTO 5: Quota pari all’intero del diritto di piena proprietà su due unità immobiliari ad uso negozio, porzioni di un più ampio fabbricato, site nel Comune di Grosseto, nella frazione di Marina di Grosseto, alla Via Pietro Maroncelli nn. 8 e 6, piano terra . . Prezzo base € 97.200,00 (offerta minima € 72.900,00). Data inizio operazioni di vendita: 05/11/2025 ore 11:00. Professionista delegato alla vendita Dott. Silvia Signori - Email "silviasignori68@virgilio.it"; Cell. 3472986024; Tel. 05641792054. Custode Giudiziario Lucia Ghelli - Email "ivggrosseto@astagiudiziaria.com"; Cell. 3426598791. Rif. Tribunale di Grosseto - Espropriazione immobiliare (cartabia) n. 7/2024

Superficie 30,00 mq
Vani
Bagni
Piano 0

Tipologia di vendita Giudiziaria
Modalità di vendita Asincrona telematica
Termine presentazione offerte 01/01/1900 ore 00:00
Data e ora inizio gara 05/11/2025 ore 11:00
Codice ID astegiudiziarie.it 4334777
30,00
0
€ 97.200

Ti interessa questa vendita?

north_east

Clicca qui per essere indirizzato alla scheda sul sito di provenienza

Bene di astegiudiziarie.it