highlight_off
Riferimento annuncio 300732 info

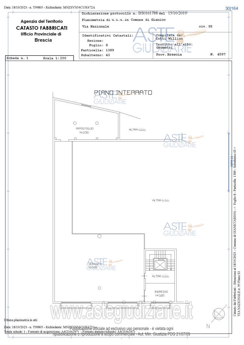
Negozio Via Nazionale, 25040 Gianico (BS)

0
€ 967.500
Vendita all'asta Senza incanto, con gara telematica asincrona - LOTTO UNICO: Piena Proprietà e quota di 1/2 su Parte di complesso artigianale-commerciale dedicata alla vendita di abbigliamento e attività accessorie con area di pertinenza e cabina elettrica. Competono le proporzionali quote sulle parti comuni dell’edificio. Prezzo base € 967.500,00 (offerta minima € 725.625,00). Data inizio operazioni di vendita: 21/01/2026 ore 10:30. Professionista delegato alla vendita Dott. Stefano Caprioli. Custode Giudiziario Dott. Stefano Caprioli - Email "s.caprioli@capriolirossinisegala.it". Rif. Tribunale di Brescia - Espropriazione immobiliare (cartabia) n. 325/2023

Superficie mq
Vani
Bagni
Piano 0

Tipologia di vendita Giudiziaria
Modalità di vendita Asincrona telematica
Termine presentazione offerte 20/01/2026 ore 12:00
Data e ora inizio gara 21/01/2026 ore 10:30
Codice ID astegiudiziarie.it 4324349
0
€ 967.500

Ti interessa questa vendita?

north_east

Clicca qui per essere indirizzato alla scheda sul sito di provenienza

Bene di astegiudiziarie.it