highlight_off
Riferimento annuncio 258874 info

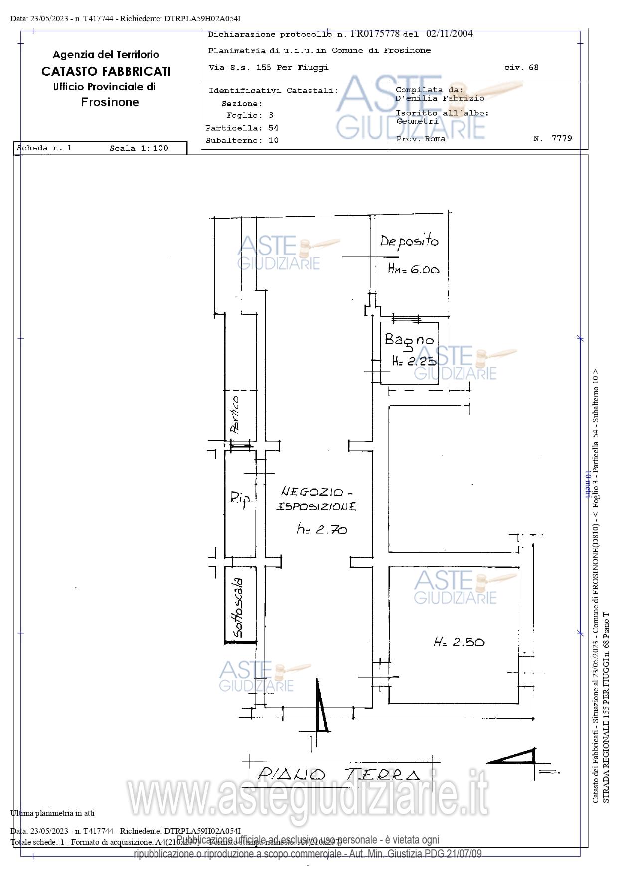
Negozio VIA SS 155 PER FIUGGI 68, 03100 Frosinone (FR)

5,00
515,00
1
0
€ 57.771
Vendita all'asta Senza incanto, con gara telematica asincrona - LOTTO UNICO: Il bene 1 è individuato al NCEU Fg. 3, Part. 54, Sub. 10, Zc. 2, Categoria C1 - Fg. 3, Part. 54, Sub. 11, Zc. 2, Categoria A4 - Fg. 3, Part. 1044, Zc. 2, Categoria C1 . Il bene consiste in un fabbricato a destinazione commerciale . Il bene 2 è individuato al NCT al Foglio 3 particella 1323 e Foglio 3 particella 1250. Identificato al catasto Terreni - Fg. 3, Part. 1323, Qualità Seminativo arborato irriguo - Fg. 3, Part. 1250, Qualità Sedime. Prezzo base € 57.771,34 (offerta minima € 43.328,50). Data inizio operazioni di vendita: 19/11/2025 ore 16:00. Giudice Andrea Petteruti. Professionista delegato alla vendita Dott. Marco Vincenzo Viscogliosi - Email "marco.viscogliosi@libero.it"; Cell. 335474598; Tel. 0775871885. Custode Giudiziario Dott. Marco Vincenzo Viscogliosi - Email "marco.viscogliosi@libero.it"; Cell. 335474598; Tel. 0775871885. Rif. Tribunale di Frosinone - Esecuzione immobiliare post legge 80 n. 123/2022

Superficie 515,00 mq
Vani 5,00
Bagni 1
Piano 0

Tipologia di vendita Giudiziaria
Modalità di vendita Asincrona telematica
Termine presentazione offerte 18/11/2025 ore 12:00
Data e ora inizio gara 19/11/2025 ore 16:00
Codice ID astegiudiziarie.it 4292967
5,00
515,00
1
0
€ 57.771

Ti interessa questa vendita?

north_east

Clicca qui per essere indirizzato alla scheda sul sito di provenienza

Bene di astegiudiziarie.it