highlight_off
Riferimento annuncio 144350 info

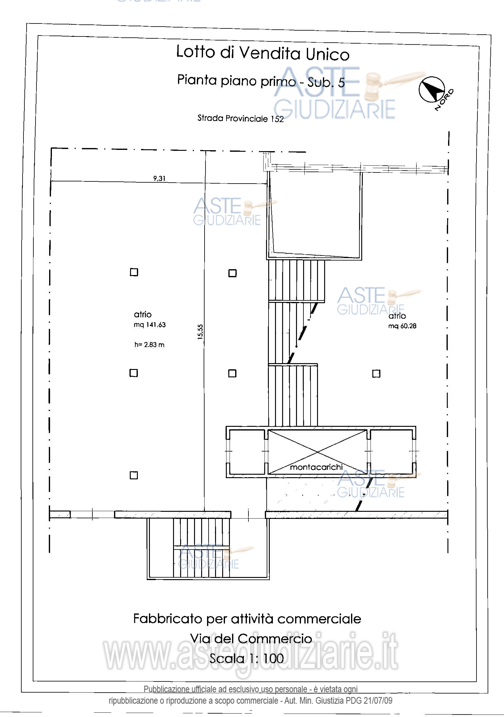
Negozio Via del Commercio n 15, 58022 Follonica (GR)

1196,31
0
€ 1.004.200
Vendita all'asta Senza incanto, con gara telematica asincrona - LOTTO UNICO: PIENA PROPRIETA’ di porzione di edificio composto da unita` immobiliari ad uso commerciale poste in un fabbricato per attivita` commerciale, sito nel comune di Follonica (GR), localita` Follonica, Via del Commercio 15, piano primo sottostrada, terra, primo, secondo, corredato di corte esclusiva, con ingressi pedonali e carrabili dalla pubblica via, con affacci su via del Commercio, strada provinciale SP 152 Aurelia Vecchia, altre proprieta`. Prezzo base € 1.004.200,00 (offerta minima € 753.150,00). Data inizio operazioni di vendita: 13/01/2026 ore 10:00. Professionista delegato alla vendita Avv. Avv Riccardo Guerra - Email "riccardoguerra1569@gmail.com"; Tel. 056428693. Custode Giudiziario Avv. Avv Riccardo Guerra - Email "riccardoguerra1569@gmail.com"; Tel. 056428693. Rif. Tribunale di Grosseto - Esecuzione immobiliare post legge 80 n. 7/2020

Superficie 1196,31 mq
Vani
Bagni
Piano 0

Tipologia di vendita Giudiziaria
Modalità di vendita Asincrona telematica
Termine presentazione offerte 01/01/1900 ore 00:00
Data e ora inizio gara 13/01/2026 ore 10:00
Codice ID astegiudiziarie.it 4249975
1196,31
0
€ 1.004.200

Ti interessa questa vendita?

north_east

Clicca qui per essere indirizzato alla scheda sul sito di provenienza

Bene di astegiudiziarie.it