highlight_off
Riferimento annuncio 226035 info

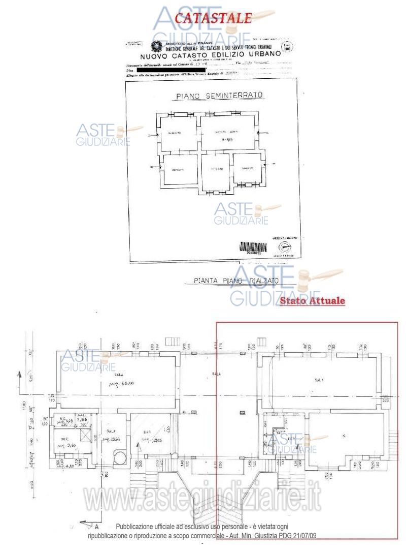
Negozio 85020 Carciuso PZ, Italia, 85020 Filiano (PZ)

213,00
0
€ 28.731
Vendita all'asta Senza incanto - LOTTO 1: piena ed intera proprietà (1/1) di terreno con annessa porzione di fabbricato, ubicato in FILIANO (Pz) alla Contrada Carciuso,. Prezzo base € 28.731,42 (offerta minima € 21.548,56). Data vendita 19/05/2026 ore 17:00. Professionista delegato alla vendita: Avv. Francesco Missanelli - Email "francescomissanelli@gmail.com"; Tel. 0971/443116. Custode Giudiziario: Avv. Francesco Missanelli - Email "francescomissanelli@gmail.com"; Tel. 0971/443116. Rif. Tribunale di Potenza - Esecuzione immobiliare post legge 80 n. 46/1996

Superficie 213,00 mq
Vani
Bagni
Piano 0

Tipologia di vendita Giudiziaria
Modalità di vendita Presso il venditore
Termine presentazione offerte 01/01/1900 ore 00:00
Data e ora inizio gara 19/05/2026 ore 17:00
Codice ID astegiudiziarie.it 4271903
213,00
0
€ 28.731

Ti interessa questa vendita?

north_east

Clicca qui per essere indirizzato alla scheda sul sito di provenienza

Bene di astegiudiziarie.it