highlight_off
Riferimento annuncio 287703 info

Negozio Viale Aurelio Zonghi, 57, 60044 Fabriano AN, Italia, 60044 Fabriano (AN)

616,00
0
€ 218.675
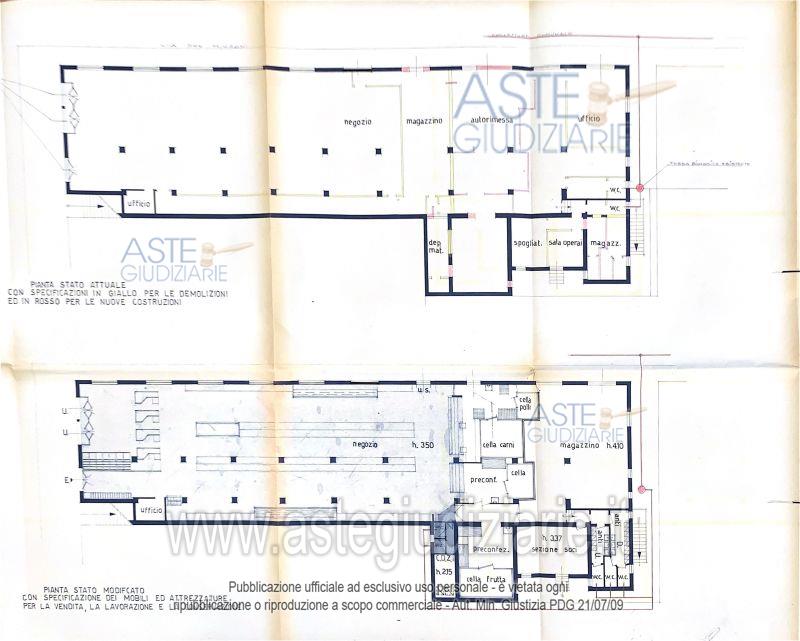
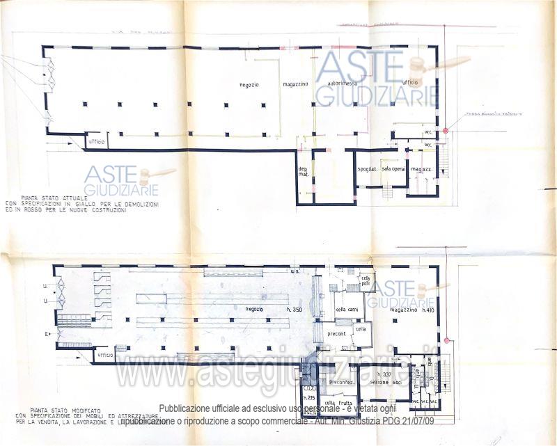
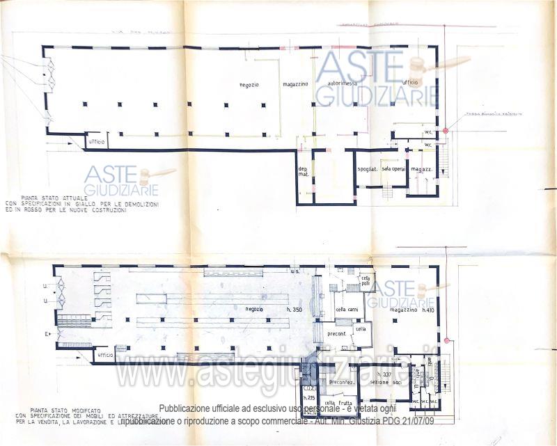
Vendita all'asta Senza incanto, con gara telematica asincrona - LOTTO UNICO: Per la piena ed intera proprietà di locale commerciale, piano S1 – T in una strada a forte scorrimento, oltre beni mobili di varia tipologia. Prezzo base € 218.674,75 (offerta minima € 164.006,06). Data inizio operazioni di vendita: 13/01/2026 ore 11:30. Giudice Dott. Giuliana Filippello. Custode Giudiziario Aste Giudiziarie Inlinea Spa - Email "visiteancona@astegiudiziarie.it"; Tel. 0586 201480. Curatore Avv. Andrea Bucci. Rif. Tribunale di Ancona - Liquidazione giudiziale(cci) n. 21/2023
Vendita all'asta Senza incanto, con gara telematica asincrona - LOTTO UNICO: Gewerbefläche im Untergeschoss - T in einer Straße mit starkem Verkehr. Anlagen und Ausrüstungen (Kälte- und Belüftungsanlagen der Räume im Untergeschoss, Kühlräume, Beleuchtungs- und Videoüberwachungsanlagen, etc.), Möbel für die Einrichtung der Räumlichkeiten, verschiedene Waren (nicht abgelaufene Lebensmittel; Weine und Schaumweine; Spirituosen; diverse Aussteller; Hygiene- und Kinderprodukte; Küchenprodukte; elektrisches Material und Schreibwaren, Haushaltsreinigungsprodukte und verschiedene Produkte); alles wie in der Liste und/oder Schätzung des beweglichen Vermögens angegeben, die diesem Verkaufshinweis unter den Rubriken "Einrichtung-Möbel-Ausrüstung", "Nicht abgelaufene Waren", "Weine und Schaumweine", "Spirituosen", "Aussteller", "Regale", "Kinderprodukte", "Verschiedene Küchenprodukte", "Elektrisches Material", "Schreibwaren", "Haushaltsreinigung", "Verschiedene Produkte", "Haushaltsprodukte", "Wagen", "Aufgehängte Waren", "Gänge" und "Verkaufstresen" beigefügt ist. . Prezzo base € 218.674,75 (offerta minima € 164.006,06). Data inizio operazioni di vendita: 13/01/2026 ore 11:30. Giudice Dott. Giuliana Filippello. Custode Giudiziario Aste Giudiziarie Inlinea Spa - Email "visiteancona@astegiudiziarie.it"; Tel. 0586 201480. Curatore Avv. Andrea Bucci. Rif. Tribunale di Ancona - Liquidazione giudiziale(cci) n. 21/2023
Vendita all'asta Senza incanto, con gara telematica asincrona - LOTTO UNICO: Commercial space on the S1 floor - T in a high traffic road. Facilities and equipment (basement refrigeration and ventilation system, cold storage rooms, lighting and video surveillance systems, etc.), furnishings, various goods (non-expired food products; wines and sparkling wines; liquors; various displays; hygiene and childcare products; kitchen products; electrical equipment and stationery, household cleaning products and various items); all as better indicated in the inventory and/or valuation of movable property attached to this sales notice under the headings "Furnishings-Furniture-Equipment," "Non-expired Goods," "Wines and Sparkling Wines," "Liquors," "Displays," "Shelves," "Children's Products," "Various Kitchen Products," "Electrical Equipment," "Stationery," "Household Cleaning," "Various Products," "Household Products," "Trolleys," "Hung Goods," "Aisles," and "Checkout Counter". . Prezzo base € 218.674,75 (offerta minima € 164.006,06). Data inizio operazioni di vendita: 13/01/2026 ore 11:30. Giudice Dott. Giuliana Filippello. Custode Giudiziario Aste Giudiziarie Inlinea Spa - Email "visiteancona@astegiudiziarie.it"; Tel. 0586 201480. Curatore Avv. Andrea Bucci. Rif. Tribunale di Ancona - Liquidazione giudiziale(cci) n. 21/2023
Vendita all'asta Senza incanto, con gara telematica asincrona - LOTTO UNICO: Local commercial au niveau S1 - T sur une route à fort trafic. Installations et équipements (système de réfrigération et d'aération des locaux au sous-sol, chambres froides, système d'éclairage et de vidéosurveillance, etc.), mobilier des locaux, divers produits (Aliments non périssables ; Vins et champagnes ; Spiritueux ; Présentoirs divers ; Produits d'hygiène et pour bébés ; Produits de cuisine ; matériel électrique et papeterie, produits de nettoyage maison et divers produits); tout étant indiqué au mieux dans l'inventaire et/ou estimation des biens meubles joints au présent avis de vente sous les rubriques « Ameublement-Mobilier-Équipements », « Produits non périssables », « Vins et champagnes », « Spiritueux », « Présentoirs », « Étagères », « Produits pour bébés », « Produits divers pour la cuisine », « Matériel électrique », « Papeterie », « Produits pour le nettoyage de la maison », « Produits divers », « Produits pour la maison », « Chariots », « Produits suspendus », « Allées » et « Arrière-caisse ». . Prezzo base € 218.674,75 (offerta minima € 164.006,06). Data inizio operazioni di vendita: 13/01/2026 ore 11:30. Giudice Dott. Giuliana Filippello. Custode Giudiziario Aste Giudiziarie Inlinea Spa - Email "visiteancona@astegiudiziarie.it"; Tel. 0586 201480. Curatore Avv. Andrea Bucci. Rif. Tribunale di Ancona - Liquidazione giudiziale(cci) n. 21/2023
Vendita all'asta Senza incanto, con gara telematica asincrona - LOTTO UNICO: Торговое помещение на уровне S1 – Т на улице с интенсивным движением. Оборудование и инструменты (оборудование для охлаждения и вентиляции помещений на подвальном этаже, холодильные камеры, освещение и видеонаблюдение и т. д.), мебель для помещений, различные товары (непросроченные продукты питания; вина и игристые вина; ликеры; различные экспонаты; средства гигиены и для детей; продукты для кухни; электрические материалы и канцелярские товары, продукты для уборки дома и различные товары); все как указано в инвентаризационном списке и/или оценке движимого имущества, приложенном к настоящему оповещению о продаже, под пунктами «Мебель-Оборудование», «Непросроченные товары», «Вина и игристые вина», «Ликеры», «Экспонаты», «Полки», «Товары для детей», «Различные продукты для кухни», «Электрические материалы», «Канцелярские товары», «Уборка дома», «Различные товары», «Товары для дома», «Тележки», «Повешенный товар», «Ряды» и «Касса». . Prezzo base € 218.674,75 (offerta minima € 164.006,06). Data inizio operazioni di vendita: 13/01/2026 ore 11:30. Giudice Dott. Giuliana Filippello. Custode Giudiziario Aste Giudiziarie Inlinea Spa - Email "visiteancona@astegiudiziarie.it"; Tel. 0586 201480. Curatore Avv. Andrea Bucci. Rif. Tribunale di Ancona - Liquidazione giudiziale(cci) n. 21/2023

Superficie 616,00 mq
Vani
Bagni
Piano 0

Tipologia di vendita Giudiziaria
Modalità di vendita Asincrona telematica
Termine presentazione offerte 12/01/2026 ore 12:00
Data e ora inizio gara 13/01/2026 ore 11:30
Codice ID astegiudiziarie.it 4314336
616,00
0
€ 218.675

Ti interessa questa vendita?

north_east

Clicca qui per essere indirizzato alla scheda sul sito di provenienza

Bene di astegiudiziarie.it