highlight_off
Riferimento annuncio 119198 info

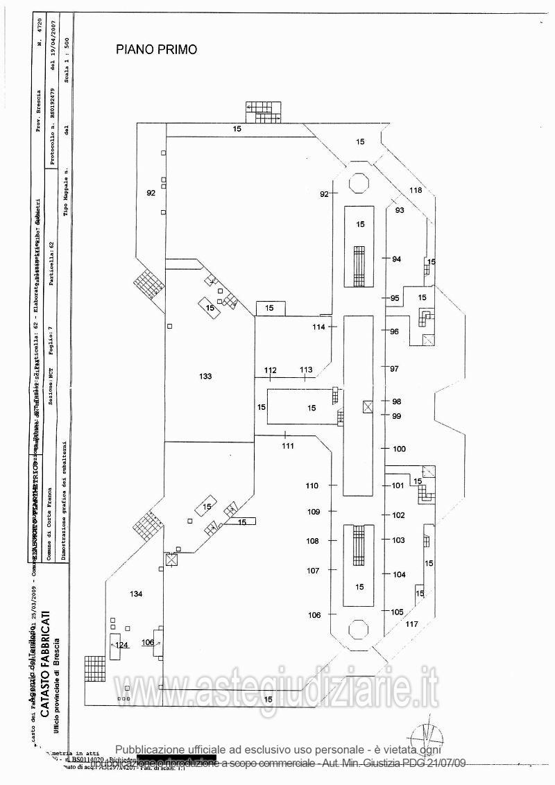
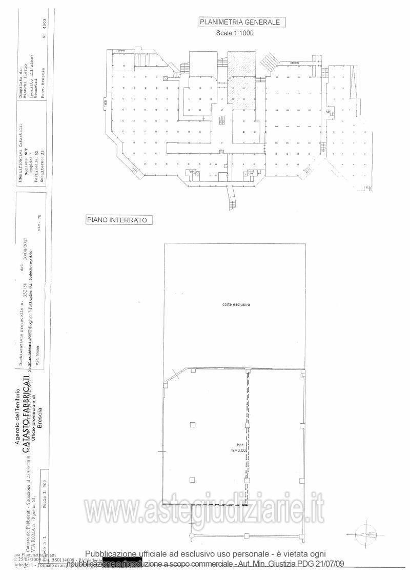
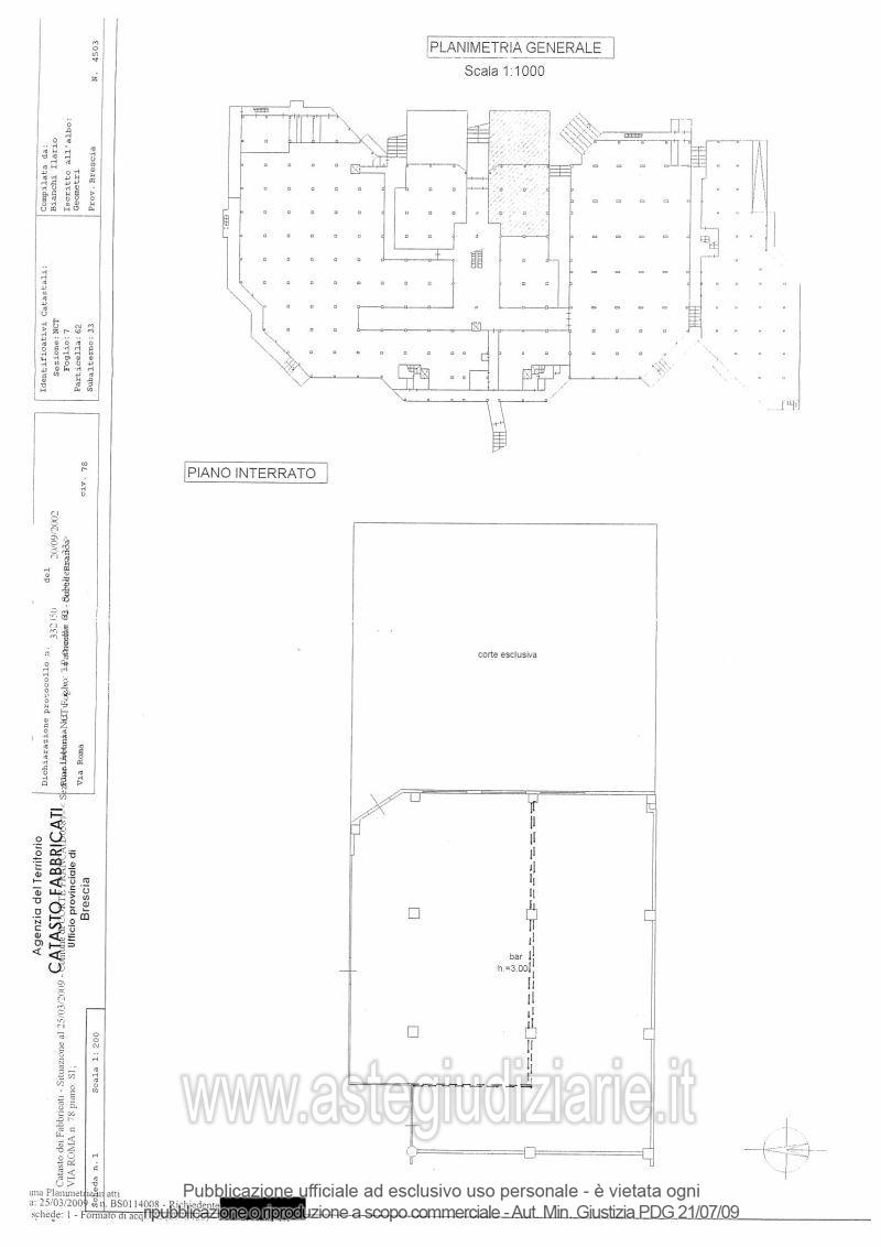
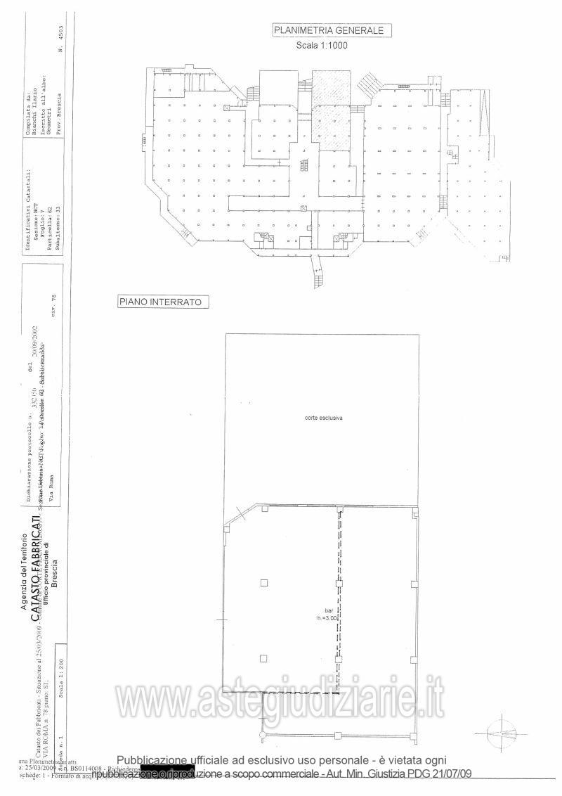
Negozio Localita' Timoline - Via Roma 78, 25040 Corte Franca (BS)

0
€ 66.331
Vendita all'asta Senza incanto, con gara telematica asincrona - LOTTO 1: Bar con corte esclusiva. Competono le proporzionali quote delle parti comuni. Prezzo base € 66.330,65 (offerta minima € 49.747,99). Data inizio operazioni di vendita: 19/11/2025 ore 09:30. Professionista delegato alla vendita Not. Luigi Grasso Biondi. Custode Giudiziario Dott. Istituto Vendite Giudiziarie Di Brescia Soccov Srl - Email "ivgvisitebs@gmail.com". Rif. Tribunale di Brescia - Esecuzione immobiliare post legge 80 n. 118/2008

Superficie mq
Vani
Bagni
Piano 0

Tipologia di vendita Giudiziaria
Modalità di vendita Asincrona telematica
Termine presentazione offerte 18/11/2025 ore 12:00
Data e ora inizio gara 19/11/2025 ore 09:30
Codice ID astegiudiziarie.it 363597
0
€ 66.331

Ti interessa questa vendita?

north_east

Clicca qui per essere indirizzato alla scheda sul sito di provenienza

Bene di astegiudiziarie.it