highlight_off
Riferimento annuncio 323748 info

Negozio Via Giuseppe Garibaldi, 41, 62014 Corridonia MC, Italia, 62014 Corridonia (MC)

3,00
57,00
0
€ 32.063
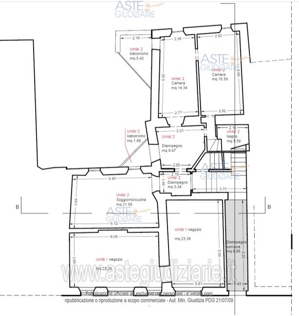
Vendita all'asta Senza incanto, con gara telematica sincrona mista - LOTTO 01: Diritto di piena proprietà (1/1) su fabbricato adibito a abitazione, con annessa una cantina e un ripostiglio/ingresso, in corso di ristrutturazione, che occupano una porzione dei piani terra e primo seminterrato compreso in un più ampio fabbricato condominiale ubicato nel centro storico del Comune di Corridonia, in Via Garibaldi nn. 41 (Lotto 1) e 43 (Lotto 2). Prezzo base € 32.062,50 (offerta minima € 24.046,87). Data vendita 17/03/2026 ore 15:00. Professionista delegato alla vendita Avv. Emanuela Scaleggi - Email "avvemanuelascaleggi@gmail.com". Custode Giudiziario Avv. Emanuela Scaleggi - Email "avvemanuelascaleggi@gmail.com". Rif. Tribunale di Macerata - Espropriazione immobiliare (cartabia) n. 28/2024

Superficie 57,00 mq
Vani 3,00
Bagni
Piano 0

Tipologia di vendita Giudiziaria
Modalità di vendita Sincrona mista
Termine presentazione offerte 16/03/2026 ore 12:00
Data e ora inizio gara 17/03/2026 ore 15:00
Codice ID astegiudiziarie.it 4329892
3,00
57,00
0
€ 32.063

Ti interessa questa vendita?

north_east

Clicca qui per essere indirizzato alla scheda sul sito di provenienza

Bene di astegiudiziarie.it