highlight_off
Riferimento annuncio 330285 info

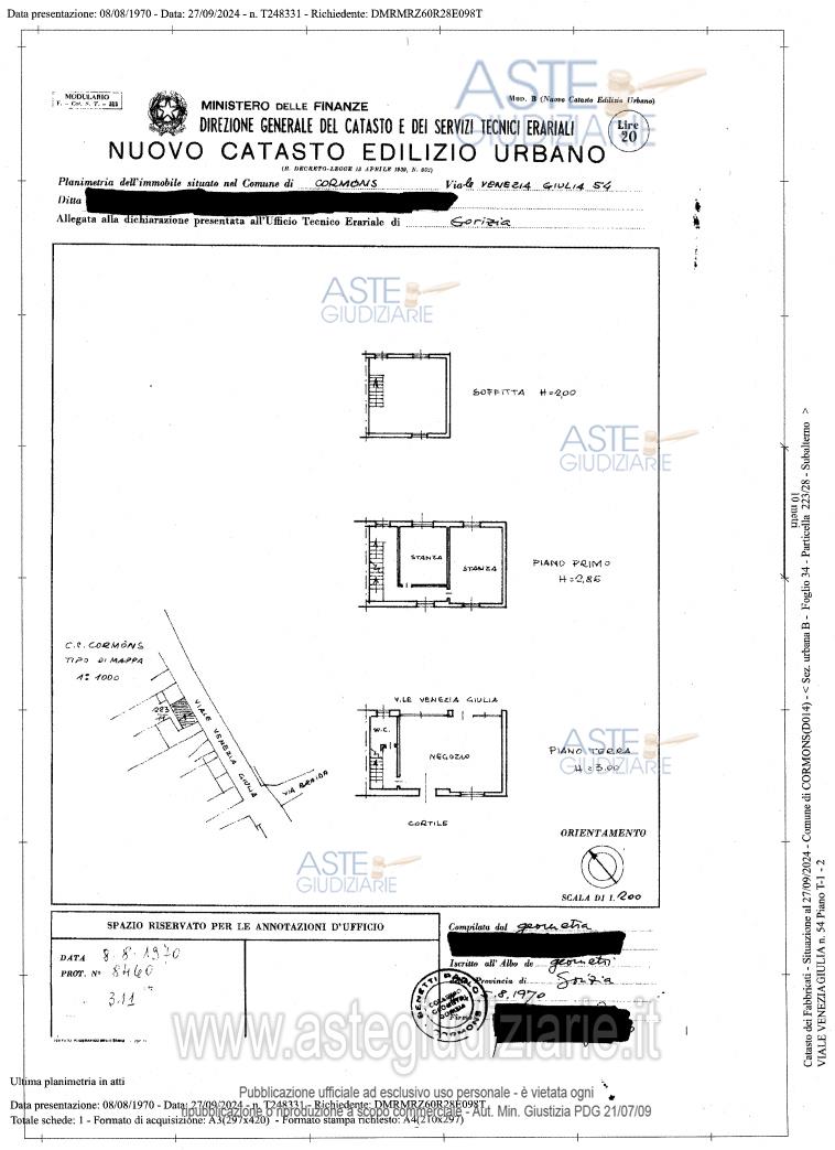
Negozio Viale Venezia Giulia 54, 34071 Cormons (GO)

246,00
0
€ 30.896
Vendita all'asta Senza incanto, con gara telematica sincrona mista - LOTTO 1: Negozio della superficie commerciale di 150,28 mq per la quota di 1/1 di piena proprietà e terreno residenziale della superficie commerciale di 96,00 mq per la quota di 1/4 p.i.(cortile in comproprietà). L’immobile risulta composto al piano terra da negozio, wc e corridoio, al primo piano da vano scala e n.2 stanze e da soffitta al secondo piano. Per quanto riguarda la corte di pertinenza ai fabbricati, la particella risulta in comproprietà con soggetti terzi e la quota del lotto 1 è pari a 1/4 del totale. Prezzo base € 30.896,00 (offerta minima € 23.172,00). Data vendita 19/05/2026 ore 11:00. Giudice: Valeria Zingaro. Professionista delegato alla vendita: Avv. Michaela Trombetta - Email "avv.michaela.trombetta@tin.it"; Cell. 347/3676036. Custode Giudiziario: Michaela Trombetta. Rif. Tribunale di Gorizia - Espropriazione immobiliare (cartabia) n. 53/2024

Superficie 246,00 mq
Vani
Bagni
Piano 0

Tipologia di vendita Giudiziaria
Modalità di vendita Sincrona mista
Termine presentazione offerte 15/05/2026 ore 12:00
Data e ora inizio gara 19/05/2026 ore 11:00
Codice ID astegiudiziarie.it 4347812
246,00
0
€ 30.896

Ti interessa questa vendita?

north_east

Clicca qui per essere indirizzato alla scheda sul sito di provenienza

Bene di astegiudiziarie.it