highlight_off
Riferimento annuncio 105781 info

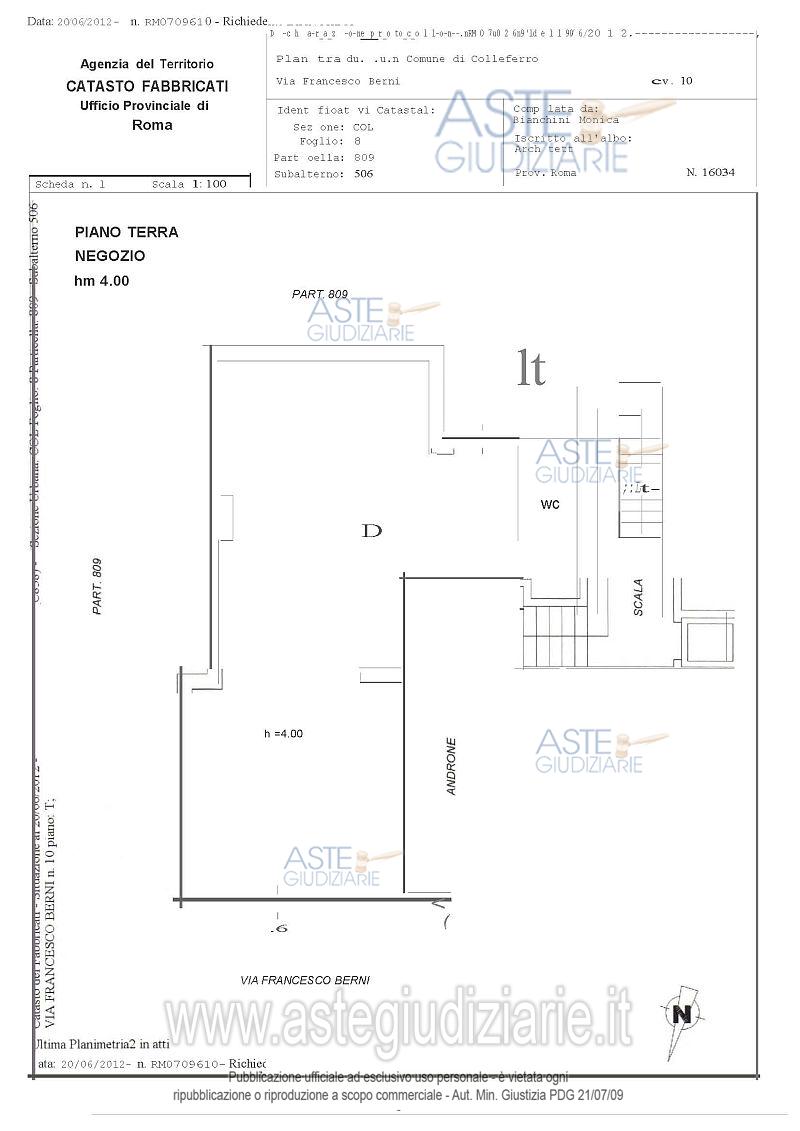
Negozio Località Valle Purera, via Francesco Berni n.10, 00034 Colleferro (RM)

110,00
0
€ 39.500
Vendita all'asta Senza incanto - LOTTO 2: Locale negozio posto al piano terra. Prezzo base € 39.500,00 (offerta minima € 30.000,00). Data vendita 20/11/2025 ore 10:00. Professionista delegato alla vendita Avv. Antonio Tagliaferri - Email "antoniotagliaferri@inwind.it"; Tel. 0696154061. Custode Giudiziario Avv. Alessandro Novelli - Email "studio.novelli@inwind.it"; Tel. 069304418. Rif. Tribunale di Velletri - Esecuzione immobiliare post legge 80 n. 128/2006

Superficie 110,00 mq
Vani
Bagni
Piano 0

Tipologia di vendita Giudiziaria
Modalità di vendita Presso il venditore
Termine presentazione offerte 01/01/1900 ore 00:00
Data e ora inizio gara 20/11/2025 ore 10:00
Codice ID astegiudiziarie.it 274477
110,00
0
€ 39.500

Ti interessa questa vendita?

north_east

Clicca qui per essere indirizzato alla scheda sul sito di provenienza

Bene di astegiudiziarie.it