Riferimento annuncio 312001
        
    
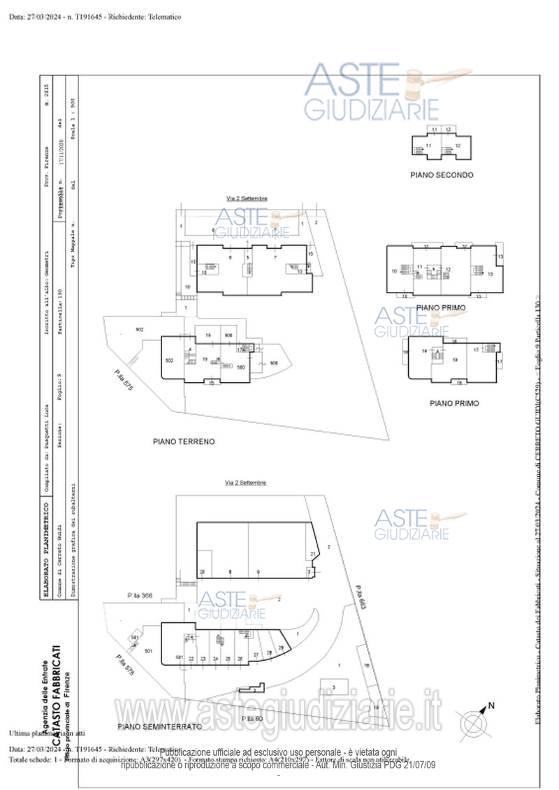
    Negozio VIA 2 SETTEMBRE 316, 50050 Cerreto Guidi (FI)
                
                188,00
            
            
                
                0
            
        
€ 174.400    
                Vendita all'asta Senza incanto, con gara telematica sincrona - LOTTO UNICO:  Fondo Commerciale di mq 188 libero composto da ampio vano vendita con 3 vetrine sulla via principale, tre ripostigli, un bagno. Prezzo base € 174.400,00 (offerta minima € 130.800,00). Data vendita 18/12/2025 ore 11:00. Rif. Tribunale di Firenze - Liquidazione giudiziale(cci) n. 123/2023
            
   
| Superficie | 188,00 mq | 
|---|---|
| Vani | |
| Bagni | |
| Piano | 0 | 
| Tipologia di vendita | Giudiziaria | 
|---|---|
| Modalità di vendita | Sincrona telematica | 
| Termine presentazione offerte | 11/12/2025 ore 11:00 | 
| Data e ora inizio gara | 18/12/2025 ore 11:00 | 
 
                         
                         
                         
                         
                         
                        