highlight_off
Riferimento annuncio 306584 info

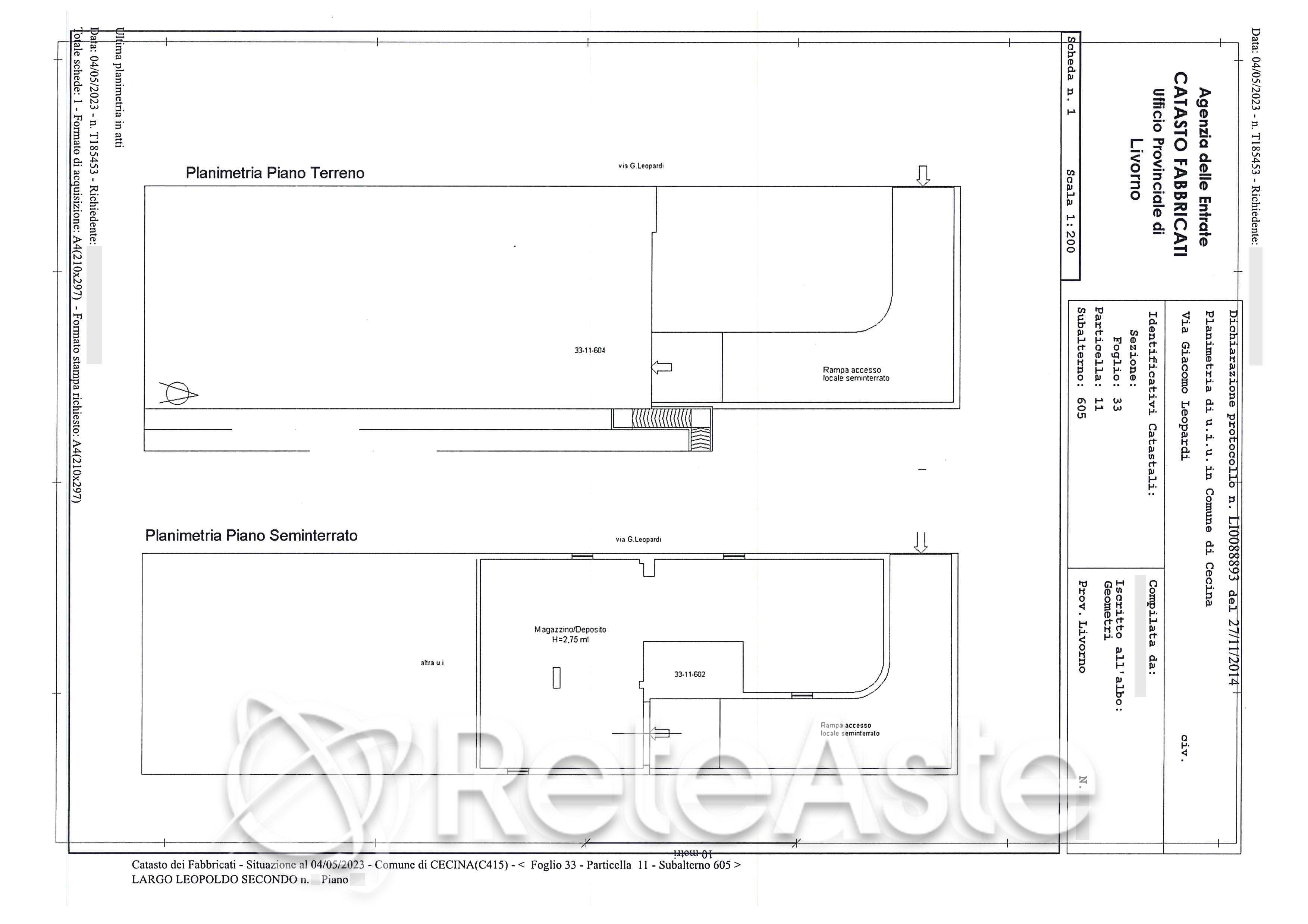
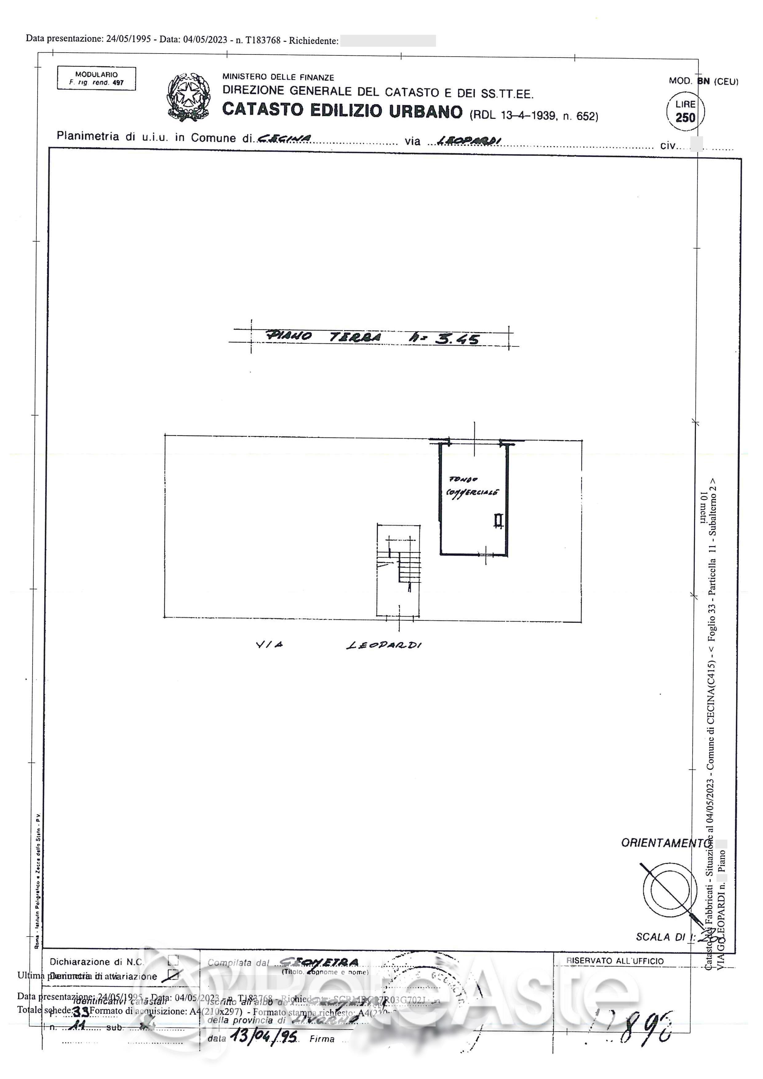
Negozio Via Leopardi, 57023 Cecina (LI)

425,00
0
€ 685.440
Vendita all'asta Invito a manifestare interesse - LOTTO 408: Il complesso edilizio è posto all'interno di un'area residenziale e commerciale sviluppato su quattro piani, di cui tre fuori terra ed un interrato. Prezzo base € 685.440,00. Data vendita 25/11/2025 ore 09:00. Rif. Tribunale di Livorno - Ricorso per omologazione piano di ristrutturazione n. 1/2024

Superficie 425,00 mq
Vani
Bagni
Piano 0

Tipologia di vendita Giudiziaria
Modalità di vendita Presso il venditore
Termine presentazione domande 01/01/1900 ore 00:00
Data e ora inizio gara 25/11/2025 ore 09:00
Codice ID astegiudiziarie.it 4302522
425,00
0
€ 685.440

Ti interessa questa vendita?

north_east

Clicca qui per essere indirizzato alla scheda sul sito di provenienza

Bene di astegiudiziarie.it